Утепление и обшивка крыши и стен
Принципы отделки примерно одинаковы для обоих элементов, можно рассмотреть состав пирога таким образом:
- Наружная финишная обшивка (например, черепица – для крыши, сайдинг – для стены);
- Фанера, обшивка из досок или древесно-плитные материалы;
- Ветрозащита (гидроизоляция);
- Утеплитель (чаще всего, минвата), укладывается в каркас стены/крыши;
- Пароизоляция;
- Внутренняя отделка (например, листы фанеры, с последующим монтажом декоративных панелей, обоев).
Особенностью строения является необходимость защиты каркаса от влаги, исходящей снаружи дома, и выпуску пара изнутри дома, который может приводить к накоплению конденсата в утеплителе, вследствие чего он теряет свои основные свойства.
Так как обшивка каркаса наружных стен является усилением всей конструкции, толщина фанеры или других используемых материалов не должна быть меньше 12 мм.
Для разных видов местности толщина стен может меняться, как и состав утеплителей. Например, в районах с «мягким» климатом, возможно, лучшим вариантом будет комбинация слоя утеплителя с панелями шумоизоляции.
А если предполагается наступление суровых зим, то лучше положить в каркас два слоя минваты.
Высокие двускатные кровельные системы
Несмотря на значительную площадь, создать сложную планировку в такой мансарде не удастся. Обычно эти помещения используют для спальных комнат, ведь подняться в полный рост в них удастся только в центре. Если учесть пространство, которое занимает лестница, то, скорее всего, здесь будет располагаться пара комнат для сна и отдыха, возможно обустройство рабочего или творческого кабинета. При обустройстве высоких двускатных кровель в каркасных домах 8х8 возникают проблемы с освещением: не удается достичь высокого уровня естественного освещения. От мансардных окон в кровле в таких системах обычно отказываются.
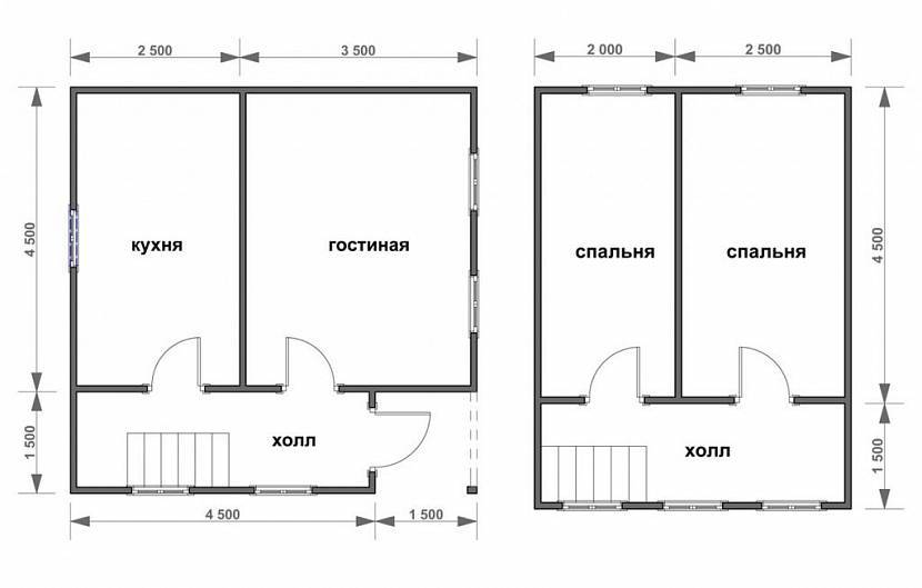
Двухэтажные дома 6х6: особенности планировки
Выбирая двухэтажный каркасный дом 6 на 6, проекты можно пересматривать долго, ведь такая конструкция дает больше возможностей, касаемо планировки жилья. Проекты домов с двумя этажами отличаются друг от друга количеством комнат, их расположением и многими другими параметрами. Двухэтажные дома размером 6х6 являются наиболее оптимальным вариантом для проживания семьи из четырех человек и более, по сравнению с одноэтажной конструкцией.
Пример планировки двухэтажного каркасного дома 6х6 Источник uralleskom.ru
Стоимость двухэтажного каркасного дома будет выше, чем одноэтажного, ведь, по сути, придется построить два дома 6х6, только на одном фундаменте и с одной крышей. Существенные затраты уйдут на лестницу. Но не стоит расстраиваться, ведь дом будет каркасным, а значит и фундамент под него, и сама конструкция в целом обойдутся намного дешевле, чем строение, например, из кирпича.
Двухэтажный каркасный дом 6х6 Источник himcomp.ru
Планировка каркасного двухэтажного дома зачастую предполагает расположение помещений общего пользования на первом этаже, как правило, это прихожая или холл, гостиная, кухня и санитарный узел. Размещение санузла на первом этаже объясняется не только тем, что помещением будут пользоваться гости, которые приходят в дом, но и стоимостью системы коммуникации.
Двухэтажный каркасный дом 6х6 с маленьким крыльцом Источник himcomp.ru
Второй этаж чаще всего состоит из комнат для отдыха членов семьи, гостевых помещений, в которых будут периодически останавливаться родственники и друзья. Личный кабинет тоже лучше расположить на верхнем этаже. При желании на втором этаже делают второй санузел.
Балкон хоть и не является обязательным атрибутом двухэтажного дома, но его наличие в значительной степени повышает комфорт проживания. Именно на балконе можно высадить цветы в летнее время, организовать удобное место для чтения на свежем воздухе и наслаждаться потрясающими видами заката.
Пример планировки двухэтажного каркасного дома 6х6 Источник himcomp.ru
каркасный дом 6на6 Двухэтажный каркасный дом 6х6 с балконом Источник himcomp.ru
Определение типа грунта
Каждый дом стоит на фундаменте, который опирается на грунт. На большой части территории нашей страны – глинистые почвы, обладающие пучинистостью – свойством увеличиваться в объеме при зимнем замерзании.
Пучинистость характерна для глинистых, суглинистых и супесчаных грунтов, а также гравелистых песков и крупнообломочных пород с содержанием глины от 10 %.
В большой степени морозное пучение зависит от влажности почвы. При высоком УГВ вода по мельчайшим капиллярам поднимается к поверхности земли, где зимой превращается в лед.
Поверхностные талые и дождевые воды также насыщают грунта влагой. Они способны при замерзании выдавить из земли фундамент или его часть. В конструкциях появляются трещины и деформации, что приводит к преждевременному разрушению строения.
Каркасный дом намного легче кирпичного или бетонного. Он не требует возведения мощных фундаментов, опирающихся на глубокие плотные слои земли ниже уровня промерзания. Но противостоять силам пучения, создавая встречное давление большой массой, он не может.
Чтобы построить каркасный легкий дом 6 на 6 своими руками и избежать его преждевременного разрушения, на этапе проектирования, возведения и эксплуатации применяют методы борьбы с пучением:
Конструкция фундамента должна обеспечивать подвижку строения вместе с сезонными колебаниями грунта или не реагировать на них. В первом случае это плита, во втором – винтовые сваи;
Не допускать переувлажнения подстилающих слоев почвы. Это достигается дренажом, устроенным под подошвой фундамента, отмосткой вокруг строения, отведением дождевых вод и стоков с помощью ливневки;
Утепление отмостки, цоколя и фундамента поможет избежать замерзания воды в прилегающих слоях земли;

Плюсы каркасных построек
- Кратчайшие сроки возведения — даже без опыта срок строительства может достигать 1-2 месяца.
- Достаточно простая технология возведения каркасного дома — обучающие видео-уроки и фото домов из каркаса можно найти в интернете.
- Плюсы каркасных домов в том, что можно обойтись минимальными затратами в сравнении с покупкой готового жилья.
- Легкость возводимой конструкции обеспечит экономию средств на материалах фундамента и стойках опоры.
- Неплохим подспорьем будет покупка готового комплекта каркасного дома или самостоятельная закупка материалов.
Каркасное строительство в проекции.
Устанавливаем каркас. Пошаговая инструкция
Алгоритм установки каркаса:
Формирование нижней обвязки, соединённых между собой по типу «шип-паз» и подогнанных таким образом, чтоб при монтаже не возникло зазоров. Если дерево плохо обработать антисептиком – при длительном соприкосновении с металлом (то бишь с крепежами) оно начнёт гнить, и в таком случае вместо данного типа крепежа лучше использовать деревянные нагели.
Монтаж вертикальных досок. Их высоту определяют в зависимости от планируемой высоты потолков. В области монтажа вертикальных досок устанавливаются нагели.
На нагели устанавливаются стойки. Далее вертикально выравнивают брусья. Чтобы угол был правильно зафиксирован, целесообразно применение временной распорки.
После того, как все стойки будут укреплены и зафиксированы исключительно в вертикальном положении, проводится верхняя обвязка
Важно учесть, что пазы верхней обвязки должны находиться строго под 90-градусным углом по отношению к нижней.
Затем крепятся потолочные балки. Их распределяют шагом в 50см, и в обязательном порядке они должны совпадать с вертикальными стойками.
После этого устанавливаются дополнительные опорные брусья
Их распределяют в области межкомнатных перегородок с целью поддержки балок потолка и исключения их провисания.
Выполнив данный алгоритм установки каркаса можно приступить к утеплению дома и сооружению крыши.
Возведение фундамента дома
Весь процесс строительства планировалось совершить собственными силами, однако выполнение фундамента все-таки доверили строительной фирме. Строить нужно было быстро. Каркас решили делать на винтовых сваях, поскольку они имеют ряд преимуществ:
- Такой фундамент делается на любом виде грунта, в данном случае участок неухоженный, непаханый, растет дерн;
- Строительство занимает немного времени – поставили фундамент за один день;
- Строительство на винтовых сваях обойдется значительно дешевле традиционного фундамента;
- Сваи можно близко прикручивать к инженерным коммуникациям;
- Такой фундамент простоит более 80 лет, а если его залить бетоном – намного дольше.
Сотрудники фирмы доставили материал и установили винтовые сваи. Цена за фундамент с работой составила 1100$.

Вальмовая крыша
Как только возведен основной несущий каркас каркасного садового домика, можно приступать к строительству стропильной системы крыши.
Конек вальмовой крыши с центральными стропилами.
С типом крыши и ее уклоном мы определились еще на стадии составления проекта будущего дома. Маленький каркасный домик будет иметь вальмовую крышу, с минимальным уклоном для того типа крыши в 20 градусов. В вальмовой крыше два ската имеют трапециевидную форму, два других – треугольную форму.
Каркасный летний домик имеет вальмовую крышу, что обеспечивает дополнительную защиту всей конструкции за счет того, что все скаты наклонные.
На первом этапе возведения стропильной системы производится монтаж мауэрлата – специального деревянного бруса или доски, который устанавливается по всему периметру каркасных стен. В данном случае мы обошлись без муэрлата, а нагрузку распределили по верхней обвязке, которая имеет хорошую жесткость из-за того, что стоит на торцевой части доски.
Силовой каркас вальмовой крыши.
На следующем этапе монтируется коньковый прогон, размер которого должен быть рассчитан правильно, так как именно на эту составную часть крыши приходится основная нагрузки. Коньковый прогон длиной два метра и центральные стропила собирались на земле, и только потом поднимались наверх и монтировались.
После фиксации конькового прогона занимаются монтажом диагональных стропил, которые, как и сам конек, сделаны из доски 150 на 50 мм. Диагональные стропила упираются одним краем в конек, а другим краем в угол, где сходится верхняя обвязка дома. Все крепления производятся с помощью обычных металлических гвоздей, что никак не сказывается на прочности конструкции.
Когда силовой каркас вальмовой крыши готов можно продолжать строить крышу дальше. Крепятся промежуточные стропила и нарожные стропила, которые мы сделали из двух сколоченных между собой дюймовок.
Стропильная система вальмовой крыши.
После установки стропильной системы, необходимо монтировать обрешетку вальмовой крыши. Мы ее выполнили из дюймовки и начали прибивать с карнизного свеса по направлению вверх к коньку, с одинаковым расстоянием между досками обрешетки.
Обрешетка стропильной системы крыши.
Одноэтажный каркасный домик можно накрыть кровельным покрытием и использовать обычный металлопрофиль. С таким кровельным материалом легко работать, он покрыт специальными веществами, защищающими от коррозии и преждевременного разрушения. К другим преимуществам данного кровельного материала можно отнести небольшой вес, доступную стоимость и огромный цветовой ассортимент.
Перед установкой материала необходимо побеспокоиться о дополнительной защите конструкции. Для этих целей можно использовать гидроизоляционный материал, который крепится непосредственно к стропильной системе металлическими скобами. Но мы его не применяли по той причине, что каркасный дом не будет утепляться.
Крыша из металлопрофиля.
Установка металлопрофиля начинается с торца крыши. Главное правильно установить первый лист, именно от него зависит расположение всех последующих. Первый лист металлопрофиля прикрепляется к коньковому прогону с помощью саморезов, все последующие укладываются внахлест с предыдущими листами и соединяются саморезами между собой.
Преимущества
Коттедж 6х8 имеет площадь практически 50 кв. м. Такая планировка частного дома обладает следующими достоинствами:
- Невысокий уровень расходов на строительство. Доступная цена необходимого объема строительных материалов позволит нанести не слишком значительный ущерб бюджету семьи в сравнении с другими проектами;
- Период сдачи объекта уменьшается. Даже если применяется кирпич, постройка коттеджа займет не более трех месяцев. Постройка из дерева или каркаса возводится за месяц;
- Компактный размер подходит для маленькой семьи. В таком доме легче убираться, проводить ремонтные работы.
Вам будет интересно: Все этапы при проектировании и строительстве навеса во дворе частного дома
Коттедж используют в качестве постоянного проживания, дачного отдыха. Если на участке есть дом больше, здание 6х8 применяют как домик для гостей. Тогда необязательно возводить мансарду, чердак и подвал.
Если одноэтажный дом 6х8 – это главное жилое здание, можно сделать мансарду с ломаной или двускатной крышей для увеличения пространства. Возвести ее лучше из клееного бруса. Это более затратный вариант в сравнении со стандартным деревом, зато он долговечен и прочен. Строительство из такого материала можно начать почти в любое время года, так как они дают меньшую усадку, чем оцилиндрованные бревна.
Инструкция к фундаменту
Поэтапное строительство каркасного дома своими руками начинается с фундамента. Это — основа дома, большая, ровная и прочная «подставка», на которой держится вся каркасная конструкция. Её можно вылить из бетона или собрать из готовых бетонных блоков.
Ленточный фундамент для каркасника.
Каркасное строительство называют «лёгким». Стены каркасника значительно меньше давят на поверхность земли, чем капитальные сооружения из кирпича или монолиты из бетона. Каркас также легче брусового деревянного дома. Поэтому вашему строению понадобится небольшой мелкозаглубленный фундамент, при этом глубину можно сделать на 100-300 мм.
На заметку
Решая, как самому построить каркасный дом своими руками, неизменно сталкиваешься с вопросом выбора конструкций и материалов. Для каркасных строений сооружают мелкозаглубленные ленточные фундаменты или плиты. В некоторых случаях для каркасников делают фундаменты глубокими.
В некоторых случаях для каркасников нужна большая глубина фундамента. Это бывает, когда грунт – зыбкий, подвижный, сыпучий и строение планируется на берегу водоёма. В таком случае устанавливают свайно-винтовой фундамент, который будет опираться на глубокие и неподвижные слои грунта.
Ленточный фундамент
Представляет собой каменную ленту, дорожку, заглубленную в землю на 100-400 мм. Над поверхностью земли фундамент возвышается на 100-300 мм. Таким образом, общая высота ленточного фундамента для каркасного дома составляет 200-700 мм.
Опалубка ленточного фундамента с арматурной сеткой
На заметку
Можно сделать фундамент глубже и выше – но это уже на ваше усмотрение, при желании израсходовать больше строительных материалов и получить более массивную конструкцию основания дома.
Ленту фундамента заливают в подготовленные заранее траншеи. Бетон для заливки можно замешивать самостоятельно. Перед заливкой в траншеи насыпают слой песка и тем самым делается так называемая песчаная подушка (толщина до 100 мм) и укладывают металлические арматуру.
Плитный фундамент
Плитный фундамент также называют плавающим. Каркасный дом будет подниматься и опускаться вместе с ним, при сезонных расширениях грунта . Поэтому плита должна быть достаточно прочной, чтобы можно было возводить здание в два этажа и выше.
Плитный фундамент заливают из бетона и арматуры, при этом арматуру связывают проволокой. Арматурная сетка обеспечивает плите каркасного дома необходимую прочность, жестко фиксируя монолитную плиту.
Расчет фундамента производится по принципу повышенной нагрузки, применяют арматуру разного диаметра. Плюс можно менять расстояние между прутьями, и это поможет увеличить прочность фундамента. Стоимость зависит от сложности работы и потраченных материалов на создание.
Фундамент залит монолитной плитой
Плитное основание можно минимально заглубить в грунт на 100-200 мм, или лить бетон на гравийную подушку без заглубления. Общая высота плиты должна составлять 200-300 мм.
Для плиты фундамента важно обеспечить стойкость к подъёму грунтовой влаги. Поэтому при замешивании бетона в него добавляют водостойкую добавку
Это обеспечит водостойкость бетонной плиты и сухой пол внутри будущего помещения. А также продлит долговечность фундамента и всего строения.
Свайно-винтовой фундамент
Для получения свайно-винтового фундамента можно использовать асбестовые трубы или металлические готовые сваи. Для асбестовых труб готовят ямы, в которые устанавливают трубу и заливают в неё бетон. Предварительно – армируют, т.е. ставят металлическую арматуру внутрь трубы. Металлические сваи вкручивают в землю без вынимания грунта, не выкапывая ямы.
Для того чтобы было легче и понятнее, как монтировать свайно-винтовой фундамент и каркасный дом своими руками – пошаговое фото.
Набор свай для винтового фундамента
Вкручивание свай для фундамента вручную
Соединение винтовых свай фундамента между собой
Свайно-винтовой фундамент
Каркасные дома 6 на 6 с мансардой
Основным преимуществом каркасного дома 6х6 с мансардой является увеличение полезной площади практически при одинаковых затратах с одноэтажным жильем. Мансарда не является полноценным этажом, а ее ограждающие конструкции объединены с кровлей. Большая часть расходов уйдет лишь на увеличение площади кровли и на отделку внутренних стен.

Пример планировки каркасного дома 6х6 с мансардойИсточник karkasnik-stroy.ru
Как эффективно составить планировку каркасного дома 6х6 с мансардой
Зачастую дом 6 на 6 с мансардой, также как и двухэтажный, предусматривает, что все помещения общего пользования будут располагаются на первом этаже, включая санузел, а комнаты для отдыха – на втором. Недостатком является высота потолков в помещениях, расположенных на мансардном этаже, она будет ниже, чем в основной части дома.
Возведение стен
Главные приёмы, которые гарантировали энергоэффективность дома 6 на 6 без ущерба его прочности, это:
- соблюдение расположения относительно друг друга элементов каркаса: лагов, стропил и стоек;
- устройство стяжек верхних досок металлической пластиной;
- использование разнесённых балок проёмов;
- устройство проёмов без балок в ненесущих стенах;
- за счёт крепления балок металлическими пластинами отсутствие двойных стоек в проёмах.
Для стоек отбирался качественный материал, а шаг между ними рассчитывался с учётом размеров листов утеплителя и гипсокартона – 2,45 м и 0, 625 м, соответственно.
Положение окон и дверей определялось шагом между стойками. Балки в проёмах крепились металлическими пластинами, подоконники — уголками 40х40х40.
При сбивании досок стенового каркаса, как и везде в последующем, гвозди не сразу вбивались по шляпку, оставляя возможность оценить завершённую часть работы и внести поправки.
Для подъёма стены пришлось верхний край и фундамент соединить верёвкой ограниченной длины для исключения опрокидывания, а нижний – соединить с полом лентой для предотвращения скольжения. Поднятые стены крепились гвоздями к основанию и дополнительно – укосинами.
Минусы каркасных построек
- Частые проблемы с утеплителем — порча или износ, из-за поселения насекомых или грызунов, сложности решаются с помощью специальной обработки.
- Низкая шумоизоляция при неправильном монтаже систем вентиляции.
- Минусы домов-каркасников — высокая пожароопасность при использовании дерева и легковоспламеняющихся утеплителей.
- Не долговечность конструкции, небольшой срок эксплуатации.
- Относительная устойчивость конструкции — излишние вибрации, как например от стиральной машины, могут нарушить устойчивый баланс.
Свести риски к минимуму поможет правильный подбор качественных строительных материалов и грамотная противопожарная обработка.
На заметку
Очень часто к минусам домов из каркаса относят холод и продуваемость в зимний период, поэтому стоит заложить в проект утепление внешнего фасада с помощью кирпича или каменных панелей, это позволит сохранить тепло и быстро прогреваться дому.
Из чего строить
Для строительства стен могут использоваться следующие виды материалов:
- Кирпич. Характеризуется прочностью, долговечностью. Обладает высокими показателями шумоизоляции, морозоустойчивости, пожаробезопасности.
- Строительные блоки. Материал обойдется значительно дешевле, чем кирпич. Из преимуществ отмечаются прекрасные теплоизоляционные свойства, за счет чего в доме создается благоприятная атмосфера.
- Дерево. Довольно популярный материал в современном строительстве, что объясняется экологичностью, уютом, теплом и экономичностью. Дома из массива обладают многими плюсами, среди которых прочность, низкий уровень теплопроводности и способность «дышать», создавая тем самым оптимальный климат в помещении.
- Каркас из дерева или ЛСТК. Из главных преимуществ отмечается приемлемая стоимость, быстрый монтаж и легкость конструкции, что позволяет значительно сэкономить на фундаменте. Дома такого типа не дают усадки, имеют отличные теплоизоляционные свойства, а их сооружение возможно в любую пору.

Каркасный дом 6 на 8Источник santorpack.ru
Каждый из материалов обладает своими положительными качествами, что поможет принять правильное решение и сделать свой дом максимально комфортным, эргономичным и удобным.
Типы фундаментов (кратко)
Ленточный тип фундамент
После анализа типа грунта следует понять, какой вид основания подходит для каркасного дома. Фундамент – важнейший элемент, который впоследствии практически невозможно изменить, от правильности его расчёта зависит надёжность всей постройки. Специалисты руководствуются при разработке оснований зданий СНиП 2.02.01-83.
Разновидности фундаментов:
- ленточный – рекомендуется для тяжелых домов, а также тогда, когда в доме будет оборудован погреб. Особенности: подошву основания делают на 20-30 см ниже, чем расположен промерзающий грунт. Можно использовать как заливку раствором, так и готовые блоки, что ускоряет процесс постройки;
- монолитный (плитный или плавающий) – в виде единого элемента. Такой тип годится для небольших и лёгких домов на нестабильных грунтах;
- столбчатый – делают под малыми и средними постройками. Отличается от ленточного меньшим расходом стройматериалов: столбики устанавливают под несущими стенами и важными узловыми соединениями – то есть, там, где нагрузка будет максимальной. После внедрения столбов в землю их обвязывают балками;
- фундамент на винтовых сваях – основывается на стальных элементах, которые вкручиваются в землю. Хорош для неровных участков, так как позволяет устанавливать сваи на разную глубину, а за счёт их верхних концов основание (система балок) подгоняется под нужный уровень;
- шведская плита – состоит из нескольких слоёв: песок, слой пенополистирола, арматурный каркас. Коммуникации допускается проводить внутри;
- комбинированные типы – рекомендуются для использования на нестандартных грунтах, часто их предпочитают частные строительные фирмы. Плюс таких фундаментов в том, что можно получить уникальное основание под конкретный вид почвы, а также снизить расходы, применяя разные материалы.
Столбчатый фундамент
Стандартный фундамент – прямоугольник со сторонами 6х6 метров, 6х8 или 6х4. Для возведения потребуется отдельный чертёж.
Материалы для строительства
Свой дом можно возвести из различных стройматериалов — помимо вашего желания и внешнего вида важно учесть природные условия места и приблизительный бюджет. Не лишним будет знать особенности, плюсы и минусы каждого из материалов, которые можно использовать в строительстве:. Дерево — один из самых популярных материалов для частных домов
Главным его плюсом, конечно же, является природное происхождение, за счёт чего атмосфера и т.н. «климат» дома будет куда приятнее. Жизнь в доме из бруса или брёвен снизит головную боль и позволит сохранить экологичный уголок даже в центре города
Дерево — один из самых популярных материалов для частных домов. Главным его плюсом, конечно же, является природное происхождение, за счёт чего атмосфера и т.н. «климат» дома будет куда приятнее. Жизнь в доме из бруса или брёвен снизит головную боль и позволит сохранить экологичный уголок даже в центре города.
Пример деревянного дома
Кирпич — оптимальный вариант для городского дома: прочный, устойчивый материал,
который не позволит вам замёрзнуть зимой и обеспечит шумоизоляцию.
Пример дома из кирпича
Газобетон — довольно практичный материал, не пропускающий лишний шум и весьма удобный при строительстве за счёт небольшого веса. Однако надо быть аккуратным при выборе производителя — особое строение газобетона требует тщательного подхода, и не каждая компания может его предоставить.
Пример дома из газобетона
Пеноблок — пористый бетон, который порадует вас низкой ценой и долговечностью. Однако стоит помнить и о недостатках — например, отсутствии прочности, вероятности покупки брака, необходимости дожидаться усадки. Внешний вид тоже не порадует глаз — эстетически пеноблоки выглядят непривлекательно. Однако это всё ещё хороший вариант при ограниченном бюджете.
Пример дома из пеноблока
Каркасное домостроение — обычно выполняется из древесины. Является лучшим способом при нехватке времени — нет необходимости дожидаться усадки фундамента. При том скорость работы не сказывается на теплостойкости и прочих свойствах — дом будет полностью пригоден для обитания.
Каркасный дом
Считается, что планировка домов и коттеджей с двумя этажами отлично подходит для проживания пары или небольшой семьи. Как правило, подобная недвижимость может иметь как несколько просторных комнат, так и ряд небольших и компактных, а также состоять из одного и даже двух этажей.
Вариант планировки двухэтажного дома 6х8
Как правильно проектировать каркасный дом своими руками
Особенности проектирования каркасного дома 6х8
Схема внешних и внутренних стен каркасного дома.
Строительство каркасных домов требует соблюдения определенных правил при выборе их месторасположения. Оно не должно отличаться сыростью. Лучше всего, если рядом будут находиться большие деревья и будет создана эффективная дренажная система. Все работы можно выполнить своими руками, не прибегая к услугам опытных мастеров.
Выполнение работ по каркасному домостроительству своими руками приобретает все большую популярность. Строительство осуществляется по современным финским, канадским и другим технологиям, позволяющим использовать все строительные материалы с максимальной эффективностью. Овладеть навыками профессионального мастерства каркасного строительства домов не представляет особой сложности. Зато от проведения свободного времени в новых постройках можно получить массу удовольствия.
Схема конструкции кровли каркасного дома.
Каркасный дом в любом случае должен состоять из легкого каркаса, который состоит из стоек, расположенных вертикально. Конструкция должна включать и горизонтальные обвязки. Отделка внешних и внутренних стен производится современными облицовочными материалами. Пустота, находящаяся между щитами, заполняется материалом для термоизоляции, что и дает возможность жить в каркасном доме зимой. Количество и качество теплоизолирующих материалов позволяет использовать каркасные дома в зимний период времени. В качестве теплоизолятора используют пенополистирол либо минеральную вату, как дополнительные материалы для утепления возможны и другие виды утеплителя.
Проектирование фундамента
Строительство каркасных домов распространено в малоэтажном строительстве, то есть опытные профессионалы не рекомендуют возводить дома, в которых два и более этажей. Это должны быть одноэтажные постройки, не требующие укладку глубокозалегающего фундамента. Для таких домов приемлем мелкозаглубленный ленточный фундамент, сборный, состоящий из бетонных блоков или столбчатый. Контур любого из приведенных фундаментов является жесткой пространственной рамой. Элементы, которые придадут фундаменту необходимую жесткость:
- Мелкозаглубленный ленточный фундамент — арматурный каркас.
- Сборный — прочная и надежная нижняя обвязка.
- Столбчатый — монолитный ростверк.
Схема фронтона каркасного дома.
После того как сделан выбор фундамента, например, столбчатого, необходимо определить его параметры. Данные параметры определяются с учетом следующих характеристик:
- Типа грунта в зоне строительства, то есть опирания фундамента (расстояние 1,5 м над поверхностью грунта).
- Уровня грунтовых вод.
- Уровня промерзания грунта.
- Приблизительный общий вес будущего строения.
С целью определения примерного веса каркасного дома берется во внимание расчетная величина, составляющая 1 погонный м при высоте стен 3 м, а весе 1,7 тонн. Следует учесть и вес крыши, перекрытий, полов, полезной нагрузки и т.д
При одноэтажном доме результат умножается на периметр, если двухэтажный, то на 2. Так, для одноэтажного дома 6х8 периметр берется, равный 28 м, который умножается на 1,7, итого 47,6. Для двухэтажного — 47,6*2, получаем 95,2. Более подробные расчеты на подготовительном этапе смысла не имеют.
Далее планируют расположение каждого столба фундамента. Они могут располагаться с шагом 1,5 м, находясь на пересечении каждой стены в углах строения. Поскольку запланирована постройка каркасного дома 6х8 своими руками, то все параметры фундамента должны соответствовать схеме на рис.1. Из схемы можно вычислить необходимое количество столбов или опор. Согласно таблице на рис.2 определяем нагрузку в тоннах на одну опору. Исходя из этого, принимается расширение столба, равное 500 мм. Перед установкой фундамента необходимо представить, как он будет выглядеть и из каких элементов состоять, что представлено на рис. 3. Следует определить размеры и способ армирования элементов, состав бетонного раствора именно для заливки данного вида фундамента. Основными элементами фундамента, согласно схеме, являются столбы и ростверк.
Расчет пропорций бетона.
Бетонный состав для заливки будет зависеть от ее условий, то есть определяться:
- Температурой воздуха.
- Уровнем грунтовых вод.
Если температура будет выше +5°С при заливке, то применяется стандартный бетон В15-В25, состав которого включает цемент и песок 1 к 3, щебень используется тоже как заполнитель. Консистенция густой сметаны зависит от количества добавок воды.
Если температура ниже +5°С и бетонная смесь изготовляется бетономешалкой, то добавляют противоморозную добавку, соблюдая пропорции.
Перепланировка дома — легко и просто
Если вы никак не можете определиться с тем, какие функции раздать помещениям в новоприобретенном доме, то на помощь придет программа «Дизайн Интерьера 3D». Установив софт на ПК, вы сможете воссоздать точный виртуальный аналог своего жилища: для быстрого начала работы вам нужно лишь отсканировать готовый план дома, а затем просто загрузить его в программу.

Воссоздание дома в программе по плану
Также можно нарисовать все помещения вручную в редакторе. После вы можете «испытать» все комнаты в той или иной роли. Тогда планировка дома 6 на 8 покажется не таким страшным делом, как могло померещиться изначально. Также, в программе за несколько кликов вы можете добавить второй этаж, расставить лестницы и нарисовать нужные пристройки.

Двуэтажный план дома в Дизайне Интерьера 3D
А если у вас в голове хоть раз в жизни мелькали мысли вроде: «как бы выглядел мой дом, если бы окно находилось в другом месте?», то есть хорошая новость. Ведь при работе с программой вы сможете вдоволь поэкспериментировать: сместить окна и двери, возвести в помещениях перегородки или даже добавить пристройку, а после оценить результат и решить, стоит ли что-то глобально менять.

В программе можно передвигать окна и двери, добавлять перегородки




































