Габариты парилки

На выбор габаритов парной влияют такие параметры:
- частота использования;
- количество отдыхающих;
- рост и другие индивидуальные особенности людей;
- размещение полок;
- дизайн оформления.
Потребности хозяев различаются. Кому-то хватает маленькой баньки из двух комнат, другим потребуется возвести двухэтажный банный комплекс для полноценного отдыха.
Размеры полок выбирать нужно исходя из положения приема процедур:
- Чтобы париться лежа, придется сделать длину полки 2 м. При длине в 1,5 м отдыхающим придется лежать с полусогнутыми ногами.
- По ширине полки от стены должны быть минимум 0,4 м. Этого хватит, чтобы сидеть было удобно.
- Чтобы ноги не касались пола, ширину увеличивают до 0,8 м.
- При конструкции полок в виде лежаков расстояние от стены делают в 1,5-1,8 м.
Вариант 3
Для настоящих ценителей красоты русского зодчества приятной находкой окажется одноэтажный дом-баня площадью 49,7 м². Привлекательная наружная архитектура и удобное размещение помещений – это заслуга оригинальной планировки.

Баня-дом площадью 49,7 м² (рис. 16)
Общая площадь постройки – 49,7 м². Просторная комната отдыха (11 м²) с большим окном и открытая терраса (8,4 м²) обеспечивают полноценных отдых проживающих. С террасы можно пройти в небольшой тамбур, откуда есть вход в комнату отдыха. Из нее можно попасть сначала в душевую площадью 3,7 м², а затем и в парную или отдельный санузел. Площадь парной – 5 м², а значит в ней легко может уместиться 4-5 человек.

Проект бани-дома (рис. 17)
Дополнительное удобство представленного одноэтажного строения заключается в открыто террасе, где можно расположить стол или лавочки, а также принадлежности для барбекю. Кроме того, проектом предусмотрена кухня-каминная, совмещенная с жилым помещением.
Визуализация дома представлена на рис. 18, 19, 20, 21.
Это интересно: Отделка ванной комнаты плиткой (фото) (видео)
С мансардой
Идея увеличить жилую площадь за счет мансардного этажа приходит часто. Считается что расходы на строительство при этом не сильно возрастают, так как большая часть надстройки — видоизмененная кровля. В действительности же если мансарда будет эксплуатироваться круглый год, разница в ценнике на двухэтажный дом и одноэтажный с мансардой будет небольшой. Ведь надо учесть, что площадь помещений мансардного этажа значительно меньше, а затраты будут велики, так как требуется хорошая тепло-, звуко-, пароизоляция.

Для кого-то дом мечты выглядит так
Мансарды под двускатной крышей
Действительно дешево обойдется дачный дом с летней мансардой. Но при этом надо учесть, что в солнечные дни без утеплителя там будет слишком жарко, так что теплоизоляция все-таки необходима, но не настолько «серьезнае» как для зимней эксплуатации.

Дачный дом 6*6 с верандой и мансардой
Действительно дешево обойдется дачный дом с летней мансардой. Но при этом надо учесть, что в солнечные дни без утеплителя там будет слишком жарко, так что теплоизоляция все-таки необходима, но не настолько «серьезная» как для зимней эксплуатации.

Небольшой дачный дом 5*4 на две жилых комнаты с мансардой
Проекты дачных домов, представленные выше, предназначены для сезонного посещения. В них предусмотрены только жилые комнаты. В комнате первого этажа можно организовать кухонный уголок.
Ниже приведена планировка маленького садового или дачного дома размером 5 на 5 метров с выделенной кухней
Обратите внимание на то что крыльцо пристроено и на плане его нет

План дачи 5*5 с мансардой и кухней
Все эти домики спроектированы как каркасные. С небольшими изменениями эти проекты подойдут для домов из любого другого материала. Только надо будет учесть толщину стен, правильно выбрать фундамент.

Дача с крытой верандой и мансардой 6*10 метров: поэтажная планировка
При желании крытую веранду можно сделать открытой. Хотя, обычно происходит наоборот. Построив открытую, ее остекляют или выгоняют до половины стены, ставят одинарные рамы. Если хочется свежего воздуха, окна всегда можно распахнуть, а площадь можно отвести под летнюю столовую или кухню.
Как увеличить площадь мансардного этажа
Все проекты дачных домов с мансардным этажом сделаны под двускатную крышу. Это хорошо в том плане, что снег на таких крутых скатах задерживаться не будет. Второй плюс — несложная стропильная система. Минус — малая площадь «полноценной» комнаты на верху. Слишком много неэффективного пространства по краям. Там можно сделать шкафы, но для жилья эта площадь непригодна.

Если крыша мансарды двускатная, много площади теряется
Если вам важно увеличить жилую площадь, кровлю можно сделать ломаной. Она сложнее в устройстве и дороже, но площадь помещений на мансардном этаже значительно больше

Проект дома для дачи 7*7 с мансардой под ломанной крышей и эркером
Еще один способ увеличить площадь — стены выгнать выше уровня первого этажа. Говорят, построить «полтора этажа». Этот вариант хорош для дач, которые посещаются и в холодное время года. Крышу можно делать как вам нравится, но большая площадь комнат все также получается под ломанной.

Пример «полуторного этажа»
При выборе проекта дачного дома с мансардой для периодического посещения лучше делать мансарду холодной, а перекрытие делать утепленным. На лестнице, которая ведет на второй этаж, надо предусмотреть дверь/крышку, которая будет отгораживать верхний ярус. В противном случае на отопление уходить будет много топлива и времени. Зимой людей, обычно, меньше, посещения кратковременные. Разогревать оба этажа слишком долго и дорого, так что решение неплохое.
Обзор проектов
Проекты брусовых бань
Постройка даже одноэтажной маленькой парилки всегда будет связано с проблемой освобождения территории около дома. По этой причине требуется искать проекты самых маленьких построек бани. Брус отличается таким великолепным свойством, как то, что из него есть возможнсть выстраивать любые по размерам бани, вплоть до размеров будки для собаки. Одним из вариантов бани 2*2 метра есть ниже. Парилка сделана из бревен, остальные детали брусовые. В результате этого получилась одноэтажная недорогая сауна, долговечная и теплая. Стены из бруса плохо сохраняют тепло, и потому комната традиционного облицовывается сайдингом или их оббивают блок-хаусом. Другим, более цивилизованным вариантом является обустройство навес и маленькой летней террасы. Эти конструкции весьма популярные для маленьких загородных дач и домов, у которых большая часть площади занята фруктовыми деревьями, грядками и кустарниками.
Каждая сауна во дворе всегда будет иметь проблемы с талым снегом, образованием луж, и как следствие, необходимость борьбы с грунтовой водой. Пренебрегать такой проблемой нельзя, так как цокольная часть сруба бруса выгнивает за 3-5 лет. Требуется хотя бы сделать полноценную отмостку основания, проложить дренаж и отлить бетонную пешеходную дорожку. Если небольшую баню требуется ставить на малоподготовленном участке, то требуется сразу установить коробку парилки на столбчатое основание или даже на сваи.
Проекты планировки бани малого размера
Самыми популярными проектами маленькой бани являются те, где есть разделение комнаты на три отделения. Вход в постройку по проекту может быть расположен с фронтальной части постройки или сбоку. В первом варианте удобное размещение входной двери дает возможность добиваться комфорта по максимуму для летнего отдыха на участке около парилки. На таком случае непосредственно для комнаты отдыха и пристроенную террасу отведена максимальная площадь, и обычно ее площадь бывает не меньше, чем от 4 до 7 квадратных метров, и остаток внутренних типов помещений выделяется под парилку и маленькую мойку. Боковой вход в комнату бани применяется в основном для проектов бани с планировкой помещения «вагонного» типа. Конструкция получится весьма простой в изготовлении, и можно применять более короткие бревна или брус, что сильно удешевляет строительный процесс.
Как показала практика, тандемное размещение комнат считается вынужденной мерой. Такие проекты применяют в том случае, когда получилось недорого купить материал для постройки, или формат участка не допускает строительство более теплой и экономичной бани с квадратной планировкой. Даже самые маленькие бани могут быть выстроены по проекту, в которых помещение делится лишь на пару комнат – парилку с предбанником (раздевалкой) и мойкой. Такое упрощение в проекте теперь считается вынужденной мерой, увеличение количества помещений на уровень комфорта или атмосферу в парилке почти не влияет, а дополнительные перегородки в небольшой бане лишь приводят к бессмысленным потерям полезного места.
Как оформлять маленькие бани
Самым удобным и практичным специалистами признан проект с малой крытой террасой на входе в постройку. Проект с террасой можно развивать и объединять баню с беседкой под одной кровлей. Самое большое число заявок получают проекты бань одноэтажного типа с пристройкой для камина или барбекю. По сути, это новый формат летней кухни со встроенной небольшой баней для участка за городом. Разработчики старались создавать одноэтажную постройку из бруса, самым лучшим образом удовлетворяющие запросы отдыхающих.
Такая постройка выглядит весьма красиво и необычно, и наверняка вызывает множество вопросом у знакомых и соседей. По сути, это новая идея по составлению проектов, где банное помещение все меньше похоже на старый деревянный «скворечник».
Проекты малогабаритных бань
Строительные работы начинаются с подготовки проекта будущей бани
Здесь важно учитывать все основные параметры: габариты и внутреннюю планировку, место расположения, строительные и отделочные материалы, мебель и оборудование
Наиболее распространенными являются следующие размеры бюджетных бань:
3×3
Квадратная одноэтажная постройка на 9 кв. м – самый доступный вариант малогабаритной бани. Он предусматривает наличие парилки и моечной, расположенной на 4 квадратах с минимальным набором мебели, а также предбанника на 4 кв. м со складным столом и скамейками. Здесь же можно организовать раздевалку и зону для отдыха. Небольшой коридор предназначается для удобного хранения банных принадлежностей.
4×3
Проект бани на 12 кв. м предусматривает бюджетную постройку, рассчитанную на небольшую компанию из 2-3 человек. Общее пространство бани можно разделить на несколько функциональных зон тонкими перегородками из бруса: парную, моечную и предбанник. В моечной комнате установлен небольшой поддон со сточным отверстием. Для такой бани рекомендуется выбирать компактную металлическую дровяную каменку или электрическую печку.
4×4
Проект бани на 16 кв. м достаточно востребован благодаря своей вместительности. Стандартное строение возводится в один этаж и может включать следующие помещения: парилку, моечную, предбанник, санитарный узел и комнату отдыха. В некоторых случаях такой проект предусматривает наличие открытой террасы. Баня может иметь второй этаж, обустроенный под комнату для гостей, игровую комнату или рабочий кабинет. Для возведения подобной бани используется брус, бревно, шлакоблоки и кирпич.
4×5
Бюджетный проект дачной бани на 20 кв. м включает в себя минимум конструктивных элементов. Как правило, строение возводится в один этаж и разделено на парилку, моечное отделение, комнату для отдыха и террасу. В парилке устанавливаются отопительное оборудование и мебель, в моечной обустраивается зона с душевой и санитарным узлом, в комнате для отдыха монтируются бытовая техника и мебель. В данном проекте может отсутствовать предбанник, что позволяет получить достаточно практичный летний вариант бани.
6×4
Самый востребованный проект малогабаритной бани на 24 кв. м, которая состоит из парилки и моечной одинаковой площади, предбанника, небольшой комнаты для отдыха, совмещенной с террасой. Подобные габариты строения позволяют использовать его для компании из 4-6 человек. Для экономии места в парной могут быть установлены многоярусные складные полки. По желанию можно уменьшить площадь комнаты для отдыха, выделив небольшое помещение для раздевалки.
Выбор строительных материалов для бани
Выбор материалов для постройки в настоящее время очень велик. Рассмотрим некоторые:
Каркасная баня – такой тип постройки справляется со своим назначением на отлично. К тому же стоимость его вполне доступна. В связи с небольшим весом конструкции, строительство фундамента также будет бюджетным.
Дерево – это излюбленный материал для несущих конструкций бань. Стоимость его дороже предыдущего варианта, но сэкономить можно на утеплителе, так как, в отличие от каркасного строения, деревянное в нем не нуждается.
Кирпич не так часто покупается именно для бани. Для кирпичной бани нужен очень надежный фундамент, а это, в свою очередь, дополнительные расходы и денежных средств, и времени, и сил.
Баня из арболита получается прочной и хорошо сохраняющей тепло. Стоимость ее, при этом, вполне доступная. Постройка может быть, как монолитной, так и блочной.
Стандарты высоты потолков в бане, сауне
Фото: расчет высоты полоков в финской сауне и русской бане
Основной критерий высоты потолков в бане – максимальный рост отдыхающих, поэтому минимальный показатель высота потолка – 2,1 м, оптимальный (для удобного размаха веником) – 2,5 м.
Чтобы париться сидя, к уровню верхней полки добавляют 1 м. Для массажных процедур с веником придется прибавить еще полметра. Уровень верхней полки делается выше, чем слой камней на печке.
Порог перед входом в парилку делается высоким, хотя бы на 10 см выше уровня пола. Так пар будет лучше и дольше удерживаться внутри комнаты.

В сауне подход к определению оптимальной высоты несколько другой. Здесь идет равномерная циркуляция воздушных потоков снизу-вверх и не нужно размахивать веником. Отдыхающие парятся в сидячем положении.
Варианты проектов небольших бань для дачи
Проекты небольших бань – оптимальные решения для любителей загородного отдыха, обладающих небольшим участком и огромным желанием хорошо проводить время с пользой для здоровья. Перед тем как выбрать наилучший проект маленькой бани, нужно решить несколько вопросов: провести все необходимые расчеты самому, воспользовавшись типовым проектом, или привлечь профессионалов. Если владелец участка чувствует в себе уверенность, он должен быть готов стать дизайнером, архитектором и строителем в одном лице.
Проект бани с необходимыми чертежами
Небольшая баня: в чем выгода?
Преимущества маленькой бани для дачи очевидны:
- Баня небольшого размера не займет много места, но принесет массу положительных эмоций владельцу и его родным.
- Экономичность. «Натопить» баню будет несложно, потребуется небольшое количество дров.
- Невысокая стоимость строительства. Для возведения маленьких домов не понадобится много материалов.
- Скорость возведения. При правильном подходе постройку можно возвести в кратчайшие сроки.
Современные бани для дачи – это сооружения, оборудованные всем необходимым для комфортного отдыха. Для возведения используются качественные, надежные материалы, а также применяются самые современные технологии. Существует множество вариантов обычных домов со встроенной баней, но можно и отдельно построить баню с применением разнообразных строительных технологий (канадской и других).
Проекты маленьких бань
Маленькая баня – вполне функциональное сооружение, несмотря на его компактность. Чтобы баня гармонично расположилась на участке среди домов и прочих построек, не занимая лишнего полезного пространства, необходим проект. На сегодняшний день есть несколько весьма популярных вариантов небольшой бани. Проекты маленьких бань бывают в следующих вариантах.
Проект “3х4”. Самый бюджетный и популярный вариант для обустройства бани за городом. Одно из оптимальных решений для маленьких участков. Строится всего за 3-4 дня. В проекте есть все необходимое для полноценного отдыха: парилка, моечная и комната для отдыха, из которой происходит топка печи. В моечной в случае необходимости устанавливается душ с поддоном. Благодаря отлично продуманной панировке, баня хоть и маленькая, но вместительная. В изготовлении применяются характерные для данного класса бань строительные технологии и материалы. Печи для бань бывают двух типов – газовые и на твердом топливе, и устанавливаются туда, куда пожелает владелец. Большим преимуществом проекта “3х4” является возможность корректировки, так как все помещения – блоки, которыми можно манипулировать на свое усмотрение.
Проект “3х6”. Конструктивно состоит из 3 помещений одинакового размера, расположенных друг за другом. В каждом помещении есть окно, которое включено в общую систему вентиляции. Если позволяет площадь дачного участка, такой проект можно дополнить большой террасой, получив место для отдыха. Материалом для возведения постройки служит брус. Чтобы построить такую баню, нужно потратить около 9 дней. Пол теплый, из двух слоев, кровля выполняется с помощью ондулина.
Проект “4х4”. Постройка, состоящая из 3 частей. Комната для отдыха имееет размер 2х4 м, но при этом она достаточно просторна. В ней предусмотрены 2 оконных проема с двойными стеклопакетами. Размеры парного отделения и мойки одинаковы, их габариты 2х2 м, благодаря чему там может разместиться несколько человек одновременно. В моечном отделении можно установить душ. Оконный проем всего один, его размеры 0,5х0,5 м, но для такой бани его вполне достаточно. При необходимости можно внести коррективы в проект, изменив места расположения дверей и окон. Высота потолков – 2м. Из всех проектов “4х4” является самым распространенным вариантом. При хорошей погоде баня возводится за 7 дней. Проект подразумевает обязательное строительство фундамента. Также можно установить печь любой модели.
Проект “4,5х5”. Обладает оригинальностью и особым дизайном. Предусмотрена большая терраса размером 1,5х4 м. Постройка отлично выглядит и обладает хорошей планировкой. Вход в баню через крыльцо, напротив которого устанавливается дверь в саму баню. Полезная площадь террасы изолирована от выходящих и заходящих людей. За дверью расположена комната отдыха с двумя окнами, одно из которых выходит на террасу. Внутренняя дверь из комнаты отдыха открывает путь в моечную, а следующая ведет в парилку. Обе части имеют одинаковый размер 2х2 м. Если в моечной установить душ с поддоном, в ней желательно будет сделать еще и маленькое окно. Материал изготовления постройки – брус.
Независимо от конструкции, баня – это всегда полезный и приятный отдых. По желанию владельца можно пригласить друзей или попариться самому.
Полезные рекомендации
Возведение небольшой частной бани на приусадебном участке – сложное и ответственное мероприятие. Чтобы получить достойный результат своих трудов, специалисты рекомендуют составить детальный план строительного процесса. Это упростит прохождение основных этапов работ и позволит избежать серьезных ошибок.

Пошаговая инструкция по строительству мини-бани предусматривает следующие этапы:
- Выбор места на участке под застройку.
- Возведение основания для бани.
- Строительство стен, перегородок и межэтажных перекрытий.
- Установка стропильной системы.
- Теплоизоляция, гидроизоляция и пароизоляция стен, потолков и полов.
- Наружное утепление и обшивка.
- Монтаж отопительного оборудования и дымохода.
- Настилка полов, установка дверных и оконных конструкций.
- Подвод коммуникаций.
- Внутренняя облицовка помещений.
- Выбор и расстановка мебели, банных принадлежностей.
Проект бани для 2-3 человек
Одним из проектов планировки бани может стать совмещение парной и моечной (фото), которая будет занимать 4 кв. В такой баньке могут париться 2-3 человека.
Бани должны строиться с расчетом на 2-3 человека, ведь в ней не только моются, но и общаются. Париться вдвоем-втроем будет безопаснее, так как люди присматривают за самочувствием друг друга.
Поэтому лучшим вариантом будет объединить маленькую парилку с моечной комнатой.
- Совмещение парной и моечной, правда, совсем неудобно, так как влажность воздуха будет высокой, а температура воздуха будет ниже, например, чем в бане с раздельными помещениями. Придется выполнять неудобные условия: сначала всем париться, а после проветривания помещения всем мыться.
- От душа в совмещенном варианте придется отказаться совсем и стараться воду не разбрызгивать. Иначе огромное количество пара может плохо сказаться на самочувствии даже здорового человека.
- Преимущество небольших бань – быстрый нагрев помещения и возможность самостоятельного строительства без привлечения специалистов-каменщиков.
- Отапливаться это помещение может печью из металла, так как возможности небольшой площади для установки печи – каменки нет.
Внутреннее обустройство

Как расположить комнаты, зависит от вида бани. Моечная и парная в русской бане могут находиться в одном отсеке. А вот в финском варианте мойка и парилка должны быть отдельно друг от друга. Парная, как самая важная комната, занимает 8 м2. На такой площади комфортно помещается печь и 2-3 лежака.
Обратите внимание! По нормам, на 1 человека в парилке отводится 2 м2. Но владельцы маленьких бань отмечают, что, если сделать минимальную парилку 1,5×2 м, места хватает на размещение 2 человек
Но владельцы маленьких бань отмечают, что, если сделать минимальную парилку 1,5×2 м, места хватает на размещение 2 человек.
Строить или нет другие банные помещения, зависит от желания хозяина. Маленькая душевая комната или помывочная придают дополнительные удобства и комфорт. После парилки в них смывают грязь и освежаются.
Выбор места под строительство дачной бани
На малогабаритном участке строить баню лучше вблизи имеющихся строений – жилого дома, летней кухни, санитарного узла. Подобный вариант обладает массой преимуществ, поскольку позволяет не только эффективно соединить полезную площадь различных построек, но и существенно экономить на строительных и отделочных материалах.

При возведении бани необходимо учитывать основные рекомендации:
- Баня должна быть удалена от любых водоемов на безопасное расстояние, чтобы избежать возможного затопления помещений.
- Удаленность постройки от гидросооружения должна составлять 15 метров, от соседних участков – 5 метров.
- Лучше располагать баню на заднем дворе или южной стороне участка.
- Не стоит возводить строение вблизи дороги, поля и сада.
- При совмещении бани с жилыми строениями должны быть соблюдены все правила пожарной безопасности.
- При разработке проекта учитывается грамотная организация вентиляционной и сточной систем, а также безопасное обустройство паро- и теплоизоляционной защиты.
Фото маленьких бань на даче своими руками
В этом разделе собраны интересные решения мастеров банных дел – фото мини-бань для дачи своими руками, созданных по индивидуальным проектам.
1 из 6






В заключение можно сказать, что постройка мини-бани для дачи вполне осуществимая идея, как в финансовом плане, так и в плане работы своими руками
Нужно и важно отметить, что строительство маленькой баньки на дачном участке займёт немного времени и сил, но в тоже время гарантирует ощущение комфорта свободными вечерами. Надеемся, что наш небольшой обзор поможет определиться с выбором
Ну а если у вас есть опыт в строительстве/покупке или же остались вопросы, то приглашаем поучаствовать в обсуждении.
Интерьер
Watch this video on YouTube
Вариант 1
Проект одноэтажного дома площадью 35,7 м², совмещенного с парной (5,8 м²), несет в себе функциональность жилого обустроенного помещения и парного комплекса. Это очень популярный вариант строительства, пользующийся повышенным спросом у собственников, работающих в сфере туристических услуг, поскольку такое строение позволит клиентам не только получить удовольствие от банных процедур, но и отдохнуть в просторной комнате отдыха (10,3 м²).

Баня-дом из сруба 35,7 м² (рис. 4)
Проектом дома-бани (рис. 5) комната для отдыха совмещена с кухней, где присутствуют все необходимые атрибуты (плита, рабочее место, стол). Просторная благоустроенная терраса станет идеальным местом для отдыха гостей в теплое время.

Проект бани-дома (рис. 5)
Такой вариант бани-дома считается привлекательным не только для обычного дачника, но и для преуспевающего человека. Причин несколько:
- отсутствие лестниц, которые зачастую «съедают» пространство;
- дом, совмещающий в себе два строения (жилой дом и баню), позволяет сэкономить на строительстве отдельно стоящего дома, что в конечном счете позволяет более рационально использовать площадь участка.
Визуализация дома-бани представлена на рис. 6, 7, 8, 9 (Визуализация).
Это интересно: Баня из поддонов своими руками
Советы по расположению и планировке
Соблюдая правила пожарной безопасности, лучше располагать баню на расстоянии не менее 15 м от других строений. Так в случае пожара огонь не перекинется на дом. Подходящий грунт – песчано-гравийный. В противном случае надо выкопать яму под фундамент глубиной 1,5 м.
- Двери лучше располагать с южной стороны, если для региона характерны суровые снежные зимы. В таком случае придется меньше расчищать проход перед банными процедурами.
- Также не стоит забывать об окнах. Это простейшая вентиляция и дополнительный источник освещения, поэтому их лучше расположить с западной стороны, чтобы вечером обеспечить больше естественного света. Оптимальный размер – 40х40 см.
Что касается планировки внутри бани 3 на 3, то независимо от ее типа, можно попробовать реализовать один из следующих вариантов:
- С раздевалкой и парной. Это простейший вариант с делением помещения на 2 более-менее равные части. В одной располагается раздевалка, скамейки и стол для отдыха. В другой находится парная.
- С парилкой и мойкой. В этом случае раздевалка занимает около 4,5 м?. Обмывочную зону можно выделить, разделив парилку на 2 равные части. Такой вариант позволит создать отдельные помещения для плавного изменения температуры прогрева.
- С верандой. Если климат в регионе достаточно теплый, столы можно расположить под навесом снаружи бани. В таком случае для раздевалки выделяется минимальное пространство, а парилка расширяется.
Полностью отказываться от предбанника не стоит. Это буфер, который препятствует появлению сквозняков и защищает от быстрого падения температуры при каждом открывании входной двери.
Разновидности конструкций дома-бани
Проекты дома с баней обычно выполняют в трех основных вариантах, каждый из которых соответствует основному условию – совмещение двух функциональных строений в одном.
В первом случае парная и моечная являются основными помещениями, которые располагаются на первом этаже строения, и дополняется комнатой отдыха на втором.
Такому проекту больше подойдет название баня с мансардой или гостевой дом с банейИсточник multilisting.su
При использовании второго варианта, баня пристраиваются к дому в виде дополнительного помещения. Баня может стоять вплотную к дому или между ними делается какое-то подобие тамбура, но в любом случае и дом и баня накрываются одной крышей.
Баня в таких проектах может быть построена сразу вместе с домом или пристроиться к нему позжеИсточник skalice.ru
Пристройка бани к основному дому с обустройством единой кровельной системыИсточник pinterest.com
Также дом с баней может быть cпроектирован изначально, и в этом случае парная и моечная будут находиться непосредственно внутри периметра коттеджа, заменяя собой один из санузлов.
Планировка дома с баней и бассейномИсточник tvoya-banya.ru
Функционально всего эти варианты достаточно схожи между собой и существенным отличием между ними будет лишь размер строения, который в полноценном жилом доме с баней будет значительно больше.
Вариант 5
Для тех, кто предпочитает максимум функциональности при минимуме изысков оптимальным вариантом станет баня-дом из сруба общей площадью 40м², изображенная на рисунке. Такое компактное и внешне привлекательное строение станет прекрасным местом как для размеренного отдыха в кругу друзей, так местом для приятного уединения на фоне природы.

Баня-дом из сруба 40 м², (рис. 28)
Ключевая особенность проекта состоит в том, что заказчику предоставляется право выбрать материал строительства (оцилиндрованные бревна или древесина ручной рубки). Эстетичная и в меру демократичная постройка идеально впишется в любой ландшафт, будет хорошо смотреться в любом уголке участка. Размеры бани-дома позволяют разместить ее даже в условиях ограниченного пространства. Хорошо продуманы и внутренние помещения: гостиная с кухней (общая площадь 10,5 м²), большая моечная с отдельным санузлом, просторная парная (6 м²), удобный тамбур и терраса (7,4 м²), где спокойно уместится большая компания за праздничным столом.

Проект бани-дома (рис. 29)
Удобное расположение помещений внутри строения, компактность и презентабельность постройки – это несомненные плюсы данного проекта. Особую торжественность бани придает оригинальная отделка веранды и белоснежные оконные проемы.
Детально рассмотреть одноэтажную баню-дом со всех ракурсов можно с помощью визуализации на рис. 30, 31, 32, 33.
Популярные проекты домиков с баней для гостей
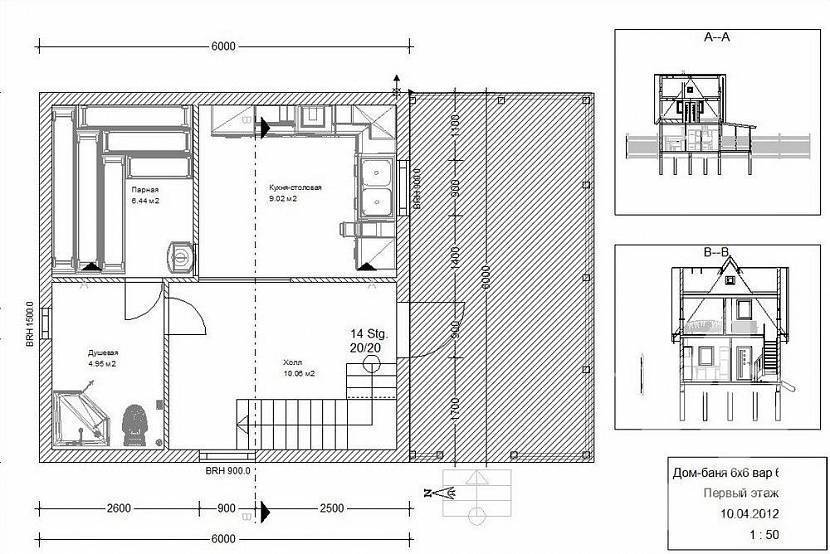
Проект небольшого гостевого дома 6х6 подойдет для возведения на небольшом дачном участкеИсточник s-sauna.com
Очень компактный, но при этом вместительный гостевой дом с баней и мансардным этажом. Несмотря на скромные размеры, помимо обязательных парной и душевой здесь есть все необходимые помещения для полноценного отдыха: холл, кухня-столовая и спальни. Вместо крыльца на входе расположена большая открытая терраса, на которой можно провести время на свежем воздухе.
Дом 7,1 на 6,9 м с террасой под крышейИсточник prefer.ru.net
Планировка второго этажа дома баниИсточник anapasunsity.ru
Несмотря на бо́льший периметр постройки, полезная площадь этого гостевого домика ограничена размерами 5,5 на 5,5 метра не считая террасы. Даже таких размеров вполне достаточно для временного или постоянного проживания небольшой семьей или периодическими посещениями дружеской компании.
Угловой дом с парной – еще одно необычное решение с возможностью сэкономить пространствоИсточник dom-usadba.com.ua
Угловой одноэтажный гостевой домик с баней – это интересное решение для небольшого участка. Здесь есть все необходимое для отдыха, но переночевать, при необходимости, получится, только разместившись на диване в комнате отдыха – отдельных спален в домике не предусмотрено.




















![Баня 2 на 3 [проект]: из чего строить и как обустроить?](https://terem-ermaka.ru/wp-content/uploads/a/3/a/a3afa6c6a545702a1cc104ec73529f2d.jpeg)







![15+ этапов строительства бани 2 на 4 [+10 фото]](https://terem-ermaka.ru/wp-content/uploads/4/0/9/40973c0d04f57a62e1608a48dc387243.jpeg)
![2 варианта проекта бани 2х3 [+обзор основных материалов]](https://terem-ermaka.ru/wp-content/uploads/6/3/e/63e3054f1be3e919125197fae88939e4.jpeg)







