Во сколько обходится содержание самостроя?
Сейчас набирает популярность индивидуальное строительство своими силами, когда покупается земельный участок без подряда, на котором планируется построить дом. Собственники сами разрабатывают проект, выбирают материалы и отделку в соответствии со своим бюджетом.
Такой дом может возводиться в течение длительного периода времени, порой нескольких лет. Поэтому посчитать точные расходы здесь довольно проблематично.
Содержание самостроя в виде дачи, коттеджа или сруба зависит от полноты благоустройства. Если внутри проведены не все отделочные работы, то ежемесячные расходы на протяжении длительного времени будут включать в себя приобретение необходимых стройматериалов и декора.
Отсутствие подключения к централизованной канализации создаст хлопоты в виде регулярной очистки сливной ямы и т.д. В подобных условиях сумма расходов зависит от исходных параметров. К примеру, дом под ключ от частного застройщика – это готовое решение для владельцев, которые будут лимитировать свои ежемесячные расходы в соотношением с уровнем заработка. Сумма может варьироваться от 3 тыс. руб./месяц до индивидуального максимума.
Финансы — что учесть на каждом этапе
Финансовые вложения условно разбивают на части: фундамент, стены, крыша и отделка фасада, инженерные коммуникации, внутренняя отделка. На каждом этапе строительства есть моменты, когда от принятого решения существенно меняется цена.
Фундамент
Выбор вида фундамента зависит от материала и площади. Для каркасных и брусовых домов подходят недорогие мелкозаглубленные ленточные или блочно-опорные фундаменты. Стоимость — от 100 тыс. руб.
Кирпич и газосиликатные блоки — более тяжелые материалы, поэтому для них ленточный фундамент заливают ниже глубины промерзания грунта — 1-1,5 м. Плитный фундамент выдержит любой вес здания, но стоимость увеличивается в разы, по сравнению с мелкозаклубленным.
Одноэтажный или двухэтажный
Если главное — бюджет, сравнивают стоимость обоих вариантов. Плюс одноэтажного проекта — отсутствие лестницы и мощных перекрытий. При одинаковой общей площади, периметр одноэтажного дома на 25% больше, чем двухэтажного. Если нужен ленточный фундамент, то он «съедает» экономию, полученную при строительстве стен.

Самостоятельное строительство или бригада
На работу тратится не менее четверти стоимости дома и соблазн сэкономить велик. Однако если вы строите впервые, неизбежны переделки и дополнительные траты, съедающие экономию. Время строительства часто увеличивается и вместо того чтобы уже жить в доме, хозяева оказываются втянуты в долгострой.
Отделка фасада
Оценивая, во сколько обойдется строительство дома, отделку фасада рассматривают как одну из статей экономии. Газосиликатные блоки и кирпич часто оставляют «как есть», не облицовывая снаружи. Брус достаточно тонировать, хотя, некоторые владельцы обшивают фасад.

Каркасные дома облицовывают сайдингом, блокхаусом или клинкерной плиткой. Самый экономичный вариант — сайдинг. Отделка фасада клинкерной плиткой, при условии, что материал качественный, приближает стоимость каркасника к кирпичному дому.
Что включает смета
Основные позиции сметы, влияющие на то, за сколько будет стоить построить дом:
- Стоимость котлована для фундамента, аренда экскаватора или оплата рабочих.
- Бетон и арматура, аренда бетононасоса.
- Материал для стен (кирпич, блоки, сэндвич-панели, пиломатериалы, утеплитель).
- Кровельное покрытие и материалы для кровельного пирога.
- Крепеж.

Внутренняя отделка — дело вкуса, необходимый минимум определить трудно. Отопление и канализация определяются не только желанием и финансовыми возможностями владельцев, но и наличием централизованных коммуникаций.
Частный дом: за или против?
Содержание дома и постоянное проживание в нем требует определенных расходов, начиная с транспорта и заканчивая коммунальными услугами. Если вы боитесь чрезмерно высоких расходов, возможно стоит подождать с покупкой загородной недвижимости. При среднем уровне дохода можно позволить себе приобретение небольшого коттеджа в облагороженном поселке. Альтернативный вариант – это дом, построенный собственными руками, или дача для летнего отдыха.
В целом, по сравнению с проживанием в квартире, в загородном жилье ощущается свобода в распоряжении своими ресурсами. Ты сам себе хозяин и можешь самостоятельно планировать расходы. В тех вещах, где не хочется переплачивать, можно выйти из положения за счет находчивости и физического труда. Не стоит бояться переезда в собственный дом, если у вас есть средства и на то нет основательных причин.
Строительство дома
Отделочные работы
Отделочные работы следует отнести к наиболее непредсказуемым по расценкам на их выполнение. Многообразие отделочных материалов в разных ценовых группах, с применением опять же множества расходных крепёжных, клеящих, окрашивающих и прочих дополнительных материалов требуют длительного и тщательного изучения.
Для приблизительной оценки расходов на выполнение отделочных работ опытные строители исходят из негласного правила: стоимость работы должна быть немного ниже стоимости материала. В целом внутренняя отделка по индивидуальному дизайн-проекту может составить от 30 до 50 % сметной стоимости дома.
Если ориентироваться на рыночные предложения по строительству домов площадью 200 м² по типовым проектам, то возведение такого дома обойдётся заказчику:
- с применением стеновых блочных материалов или бутового кирпича: 4900 тыс. р.;
- с отделкой фасада из облицовочного кирпича: 6500 тыс. р.;
- внутренняя отделка по индивидуальному дизайн-проекту может составить 3200 тыс. руб.
Итоговая стоимость постройки дома из кирпича 200 кв. м под ключ составит примерно 10-20 тыс. р. за м²
Наглядно про стоимость каменного дома смотрите в видео:
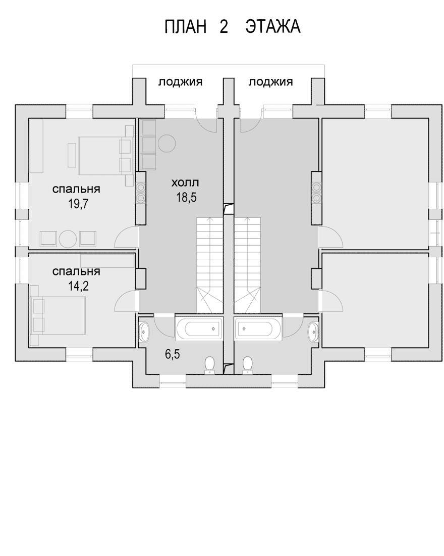
Проект дома на две семьи
Представленный проект дома из кирпича до 200 кв. м разработан для постоянного жилья двух семей. Особенность проекта в том, что дом состоит из двух жилых секций, в которых есть все для комфортного проживания.

Кроме первого и второго этажа здесь предусмотрен цокольный этаж с гаражом, мастерской, кладовой и котельной.
На первом этаже для каждой секции – гостиная, кухня-столовая, санузел и еще одна комната, которую можно использовать под кабинет.

На втором этаже – две спальни и ванная. Комнаты для отдыха расположены вокруг лестничного холла, а из него через потолочный люк можно попасть на чердак. По желанию владельцев чердак также можно оборудовать и использовать как полноценную жилую комнату.

Логистика
Многие люди недооценивают стоимость «доставок», а при нынешних ценах на топливо, они сжирают заметную бюджета.
Когда дом небольшой, то материалов, естественно, меньше. При этом не факт, что уменьшится количество доставок и их стоимость. Конечно, логистику можно оптимизировать, но далеко не все материалы получится привезти «одной машиной».
К примеру, вряд ли кому-то придет в голову одной машиной везти окна и пиломатериал или арматуру.
Загрузив машину “по максимуму” можно привезти на место не материалы, а поломанный мусор
Соответственно разница в доставке окон на большой дом и на маленький, особенно если расстояние большое, будет либо незначительной, либо вообще равняться нулю. Ситуация может быть парадоксальной – когда стоимость перевозимого материала ниже, чем стоимость его доставки.
Агрегирование доставок через склад комплектации или объезд поставщиков, так же внесет свою лепту в стоимость, иногда выгоднее сделать отдельные доставки, чем пытаться все привезти за раз.
Как минимизировать затраты на эксплуатацию дома?
Во время строительства или выбора недвижимости важно обратить внимание на качество и устойчивость сооружения. Самые большие неприятности по части ремонта создают появившиеся в фундаменте или на стенах трещины. При покупке загородного жилья достаточно пригласить эксперта, который достоверно оценит состояние постройки
При покупке загородного жилья достаточно пригласить эксперта, который достоверно оценит состояние постройки
Это убережет вас от дополнительных затрат на устранение дефектов и ремонтные работы
При покупке загородного жилья достаточно пригласить эксперта, который достоверно оценит состояние постройки. Это убережет вас от дополнительных затрат на устранение дефектов и ремонтные работы.
Во время ремонта желательно не использовать самые дешевые расходные средства и материалы. Практика показывает, что такие решения приводят к тому, что собственник вынужден проводить ремонт в 2 раза чаще и, следовательно, тратить в 2 раза больше. На этапе оплаты коммунальных услуг в частном доме всегда есть выбор. Вы можете поставить автоматику и светодиодное освещение для экономии электроэнергии. Установка нового котла и утепление здания могут значительно сократить расходы на отопление.
Если у вас в планах установка больших объектов благоустройства (баня, сауна, альтанка, бассейн и т.д.), избавиться от финансовых неожиданностей поможет четкое планирование. К примеру, в конце сезона (осенью), можно потратиться на заливку фундамента и за зиму подкопить денег, чтобы закончить постройку и начать пользоваться обновкой.
Дорого ли содержать свой дом? От чего зависит сумма затрат?
Недвижимость недвижимости рознь. Вы можете купить готовое решение в виде коттеджа от предыдущего владельца, полностью готового к заселению. Альтернативный вариант – покупка дома от застройщика с голыми стенами и необходимостью организации ремонта. Стоимость содержания жилья зависит от ряда параметров, среди которых:
- район и месторасположение объекта;
- состояние (первичный или вторичный жилой фонд);
- габариты дома (1, 2-х, 3-х этажный);
- тип постройки (коттедж, дуплекс, дача, сруб и т.д.);
- наличие приусадебного участка;
- инфраструктура и уровень развития общих зон;
- набор имеющихся коммуникаций.
Если расшифровать каждый из указанных факторов, то окажется, что содержание и приобретение готового дома в Подмосковье обойдется дешевле, чем покупка «голого» участка. Наличие приусадебного участка требует определенных затрат на благоустройство и уход. А отсутствие канализации и подключения газа создаст для собственника дополнительные хлопоты по части жизнеобеспечения.
Инженерные коммуникации
Дом – это же не только коробка. Инженерные коммуникации могут стоить независимо от площади дома или же так же, не кратно зависеть от площади.
Приведу несколько примеров
Септик или ЛОС. Обычно цена очистных сооружений зависит от объема, а объем зависит от проживающих людей. Если в доме – постоянно живет только 3 человека, то стоимость септика будет одинаковой, вне зависимости от его размеров. Даже если кол-во проживающих будет разным, например 5 человек, стоимость не изменится пропорционально.
Бойлер, ведь в доме нет централизованной горячей воды – так же больше зависит от кол-ва проживающих и от кол-ва точек водоразбора, чем от площади.
Отопительный котел, разница в цене может совсем чуть-чуть отличаться в зависимости от мощности.
При разнице в мощности почти в 4 раза, цена отличается только на 18%.
Даже если взять электропроводку. Пусть будет дом на 100 и на 200м2, с одинаковым набором помещений, только разной площади (в первом все будет меньше) – маловероятно, что в доме 200м2 будет в 2 раза больше электроточек – выключателей, розеток, светильников. А соответственно будет одинаковый электрощит и его стоимость. Да, кабелей в большом доме будет больше – но остальное, весьма вероятно, будет стоить так же.
Стоимость кровельных работ
Цены на кровельные работы не включают обработку деревянных изделий защитными красками и антисептиками и стоимость самого материала:
- монтаж мауэрлатов скатной кровли: 450-800 руб\п.м;
- монтаж стропильной системы скатной кровли с коньком, стойками, элементами фронтона: 300-700 руб\п.м;
- монтаж кобылок: 150-450 руб\шт.;
- монтаж обрешётки потолка, контробрешётки, скатной кровли: 75-200 руб\м²;
- гофролист, профнастил, металлочерепица: 150-300 руб\м²;
- еврошифер: 150-250 руб\м²;
- мягкая черепица: 350-550 руб\м²;
- рулонные кровли: 200-500 руб\м²;
- сланцевая черепица:600-900 руб\м²;
- керамическая, композитная, цементно-песчаная черепица: 350-550 руб\м².
Пример расчета стоимости кровли смотрите в видеоролике:
Основные критерии выбора строительной компании для строительство дома:
Срок, который фирма существует — оптимальным вариантом считается от трех лет.
Юридическое сопровождение — это и грамотно составленный договор, и помощь в оформлении документов на постройку, и рекомендации относительно кредитования.
Наличие документации для того, чтобы подписать контракт — подробная смета, график работ, варианты финансирования, тех. задание и пр.
Сотрудники строительной компании должны быть квалифицированными специалистами, работающими на постоянной основе. Положительным моментом является наличие собственного дизайнера и проектного бюро, так как такие сотрудники контролируют процесс строительства и могут оперативно корректировать работы.
Возможность показать готовые объекты не только на фото, но и в реальности, как завершенные так и текущие.
Гарантия на выполненные работы (в большинстве случаев на различные работы предоставляется различный срок гарантии).
Возможность сотрудничества с аналогичными компаниями на предмет привлечения специалистов или спецтехники для определенных работ.
Наличие корпоративного сайта (в наше время это стало обязательным условием на рынке), где можно ознакомиться с сервисом услуг компании, портфолио и т. д.
Наличие рекомендаций и положительных отзывов от других клиентов.
Если говорить о договоре, то перед тем, как подписать его, имеет смысл отдать его на анализ профессиональному юристу (в серьезных компаниях никогда не будут против такого). Не стоит бояться требовать подробный отчет о ходе строительства, ведь процесс строительства — это недешевое удовольствие и заказчик должен знать, за что он платит деньги. Просмотреть расценки на фундаментные работы можно на нашем сайте.
Ростверк-плита и колодцевая кладка
| Стоимость дома: тепловой контур с фасадами | 2,99 млн. руб. (20 тыс. за кв. м) |
| Стоимость дома с черновой отделкой | 3,79 млн. руб. |
| Наружные габариты дома | 14×9 м |
| Площадь помещений | 149 кв. м (вкл. площадь террасы 12 кв. м) |
| Продолжительность строительства | 3,5 месяца коробка, 5 месяцев под чистовую |
| Назначение дома | Для постоянного проживания |
| Использованные материалы | Фасадный утолщённый кирпич от Каменск-Уральского завода стройматериалов (КУЗСМ) и рядовой кирпич от Ревдинского кирпичного завода (РКЗ), сухие смеси Bergauf, мембраны Изоспан, металлочерепица СПК, водосточная система GrandLine двери АРГУС, окна KBE Expert |
| Система отопления | Газовый котёл Protherm, электрический котёл Protherm , радиаторы |
| Тип фундамента | Ростверк-плита |
| Организация-подрядчик | ООО «Высокопрочный пенобетон» (ООО «ВПП») |
В основе коттеджа лежит типовой проект «Гладкий» от студии Murator. В связи с необходимости разместить в доме газовую котельную, ширина постройки была увеличена на полметра. В строительной компании сообщили, что по данному проекту за последние годы они возвели несколько домов из газоблоков и три – по кирпично-монолитной технологии с применением колодцевой кладки.
Фундамент дома – монолитная плита 220 мм, залитая по ростверку (по малозаглублённой ленте). Под плиту уложен слой теплоизоляции – экструдированного пенополистирола «Пеноплекс». Как пояснили в ООО «ВПП», данный фундамент может применяться практически на любых грунтах уральского региона. Он имеет более развитые рёбра жёсткости, хотя и меньшую толщину плиты по сравнению с классическим плитным фундаментом.
На стенах применена колодцевая кладка. Из кирпича выполнены внутренняя и наружная части стены (в полкирпича), которые через каждые 2,5 м соединены кирпичными мембранами (перемычками). Через каждые пять рядов стена армирована стальной кладочной сеткой. Сформированные колодцы заполнены пенобетоном. Иногда описанную технологию возведения стен называют кирпично-монолитной.
Толщина наружных стен 640 мм, в том числе лицевой кирпич – 120 мм, монолитный пенобетон (плотностью 500) – 400 мм, внутренний кирпич – 120 мм. Пенобетон плотностью 500 является конструкционно-теплоизоляционным материалом, дополнительного утепления стен не требуется. Все внутренние стены и перегородки из кирпича. Межэтажное перекрытие (220 мм) из монолитного пенобетона (плотностью 1100).
На кровле применён базальтовый утеплитель «Эковер» (200 мм)
Заказчику дом сдавался с черновой отделкой: оштукатуренными (без шпаклёвки) внутренними стенами и внутренними сетями (электропроводка, водопровод, отопление, канализация), с установленными окнами и наружными дверьми. В такой комплектации стоимость дома составила 3,79 млн. руб. (работа и материалы).
В коттедже имеются просторная гостиная-кухня, котельная, 3 комнаты, 2 санузла. Высота потолков (в чистоте) на первом этаже 2,7 м, на втором – 0,95-2,7 м.
Реальная история и отзыв о большом доме
«Мы с женой безумно мечтали о своей квартирке в Магнитогорске! Отдельной, пусть маленькой, но своей! К сожалению (сейчас понимаю, что даже к счастью) та мечта оказалась несбыточной. Хотя я и работал сразу на 3 работах (в день выходило по 18 часов, без шуток) и в течение 15 лет не знал, что такое отпуск, деваться было некуда.
Но сейчас мы РАДЫ, что нам тогда отказали. Если бы в то время мы получили ипотеку, то мы бы не купили свой земельный участок в наполовину пустом поселке, не построили бы все своими руками, а просто сидели 15 лет в однушке и платили бы ипотеку за стены из бетона и воздух между ними. Да, это было сложно, не обошлось без косяков, которые после исправляли, и денег на дом нужно больше (вы вообще видели цены на лопаты?). О свободном времени забудьте! Но это свой дом, со всеми бонусами в виде шашлыка, гаража, мастерской, надувного бассейна, теплички под помидорчики, прогулки на свежем воздухе в одних шортах и драных шлепках.
Ответ на самый популярный вопрос о том, сколько у нас выходит коммуналка, ведь дом немаленький и рядом есть еще и моя мастерская, которая тоже отапливается. Говорю честно – платим меньше, чем за квартиру. Отопление дома на 200 кв.м. у нас держится на двухконтурном котле БАКСИ (топливо – газ). Отопительная система, можно сказать, бомжацкая – ленинградка с одной трубой. Но мы не экономим на отоплении + у нас отлично утеплен дом.
По этой причине даже в лютые морозы выходит максимум 3700 рублей, а летом вообще меньше 1000 рублей за 3 месяца, хотя котел продолжает нагревать воду. Да, хороший котел, и на нем тоже не экономили, а вот соседушка решил удешевить отопление и уже четвертый год страдает. Воду тоже не экономим – до 600 рублей в месяц. Канализация центральная (и это большой плюс) тоже стоит копейки. Также во всем доме и мастерской есть светодиодные светильники, из крупных потребителей электроэнергии выделим холодильник, 2 большие морозилки (ларцы), ПК, а еще 2 печки в мастерской. Наматывает от 1400 до 1900 рублей. Интернет и ТВ (260 каналов, которые мы почти не смотрим) выходит в 860 рублей месяц.
Подводя итог – зимой в месяц выходит от 5 до 6 тысяч рублей, а летом коммуналка почти в 3 раза меньше (до 2000 рублей). Если вывести среднее число за год, то месяц стоит 3500 рублей, и это за дом в 200 квадратных метров, мастерскую и гараж в 110 метров и участок 8 соток. Невероятно, но факт – теща платит ровно столько же за двушку в 43 квадратных метра, причем она в ней живет одна, а нас в доме пятеро! Теперь еще один подсчет – месячная плата за хорошую трешку в городе составляет около 12 000 рублей, а за 15 лет ипотеки пришлось бы платить за коммуналку почти 2 млн рублей, а дом обошелся в 650 000 рублей. Разницы почти на 1.5 млн рублей. Вот поэтому у нас строят многоэтажки – это прекрасный метод, чтобы собрать с населения как можно больше денег».
Цены на строительство домов
Стоимость строительства дома из газобетона может варьироваться в очень ощутимых пределах, многое зависит от площади здания, особенностей проекта, выбранных строительных и отделочных материалов. Ниже представлены примерные цены, по которым можно представить диапазон сумм.
Ключевые расходы на строительство газобетонного дома:
- Фундамент – монолитный обойдется до 600 000 рублей, ленточный заглубленный до 300 000, мелкозаглубленный до 170 000, свайно-ростверковый стоит около 200 000 рублей для дома 10х10 метров.
- Стены – для дома 10х10 метров с толщиной стен 37.5 сантиметров из блоков D500 с высотой потолков 2.5 метров и общей площадью стен 400 квадратных метров понадобится около 70 кубометров газобетона, что при стоимости в 3000 рублей составит 210 000. Клей обойдется в 27 000.

- Арматура – стены обязательно армируются, если брать по расчетам и стандартам, то понадобится 1000 метров стержней, которые обойдутся в 15 000 рублей, плюс клей 2 000. Отдельно считают армопояс, цена которого составит около 75 000.
- Перекрытие – из дерева обойдется в 50 000 рублей, из газобетонных плит в 250 000, из бетонных пустотелых плит в 120 000, из монолитных ЖБ перекрытий – в 250 000.
- Кровля – для дома площадью 100 кв. м в зависимости от угла ската нужна кровля площадью 120-150 м2 – цена состоит из стоимости стропильной системы (около 100 000 рублей), кровельного материала (70 000-200 000), утепления (20 000-50 000 рублей).
Таким образом, общая сумма составляет от 700 000 и выше для дома площадью 100 квадратных метров.
Дом в 200 квадратов может обойтись в разную сумму в зависимости от этажности, проекта, материалов и т.д. Существенно сэкономить позволяет самостоятельное строительство – в таком случае потратиться придется лишь на материалы.

Проект «Престиж»
Название проекта полностью оправдает ожидания будущих владельцев дома. Архитекторы продумали все для комфортного проживания. Здесь много жилых и вспомогательных помещений.

Проект дома из кирпича до 200 кв. м для постоянного жилья предусматривает гараж на два автомобиля, который связан с домом кладовкой. Поэтому поставив машину в гараж, не придется выходить на улицу, чтобы попасть в дом, что очень удобно.

Нельзя не отметить и просторную гостиную с камином для приема большого количества гостей. Из гостиной и кухни имеется выход на террасу, которая довольна большая по площади, плюс она оборудована печью.
Большая площадь остекления кухни и гостиной делает дом светлым и еще более просторным. Для приятного отдыха здесь предусмотрено три спальни. Одна комната имеет личный санузел, а также есть и общая для всей семьи ванная комната.

Как лучше строить: самому или через подрядчика?
Многие считают, что дешевле всего все делать самостоятельно, чем обращаться в строительную компанию. В этом утверждении есть своя доля истины. Так, если есть понимание в строительстве и «руки», большинство работ можно выполнять и контролировать лично или привлекая недорогих «шабашников». И в итоге затраченная сумма окажется меньше, чем, если бы этим занималась соответствующая фирма.
Но у этого подхода имеются существенные минусы, которые сложно компенсировать сэкономленными средствами:
- Значительные временные потери. И это касается не только непосредственно возведения здания, но и оформления разрешительных документов, и поиск материалов, инвентаря и т. д.;
- Есть риск построить дом некачественно. Ведь строительство – сложный процесс, требующий соблюдения технологий. А все тонкости знают только опытные специалисты, которые построили не один десяток домов. И можно будет считать крупным везением, если нанятая лично бригада сделает все качественно. И даже оформление разового договора мало чем поможет, если они начнут «выдавать халтуру».
Обратившись в строительную компанию, заказчик избавит себя от массы хлопот. Ведь большинство из них предоставляют услуги комплексом, начиная от создания проекта, составления сметы и заканчивая вывозом мусора. Отношения клиент-исполнитель регулируются договором, в котором оговариваются сроки и предоставляемые гарантии качества.
В итоге готовая постройка может обойтись даже дешевле, ведь фирмы имеют и весь необходимый инструмент, и проверенный штат рабочих. У них наработаны каналы поставок и возможны хорошие скидки на стройматериалы. Разумеется, обращаться следует в компанию с хорошей многолетней репутацией.
Проект мансардного дома с эркером
Тем, у кого жизнь наполнена яркими красками, обязательно понравится проект дома как на фото из кирпича до 200 кв. м для постоянного жилья.
При отделке внешнего вида основной акцент направлен на использование натуральных материалов, которые сегодня владельцы домов ценят больше всего. Здесь идеально сочетается кирпичная кладка с деревянными дверями, окнами и другими элементами архитектуры. При этом окна здесь ажурные и большие, поэтому дом внутри всегда будет наполнен светом.

По проекту предусмотрен просторный гараж и мастерская для хранения инструментов.
Самая большая часть дома выделена под гостиную с камином, который отделяет кухню от обеденной зоны. А вот обеденная зона расположена в самой красивой части дома – эркере. Из гостиной имеется еще один выход во двор.
На первом этаже также предусмотрена комната для детских игр или кабинета. На втором этаже – четыре спальни, самая большая из них имеет собственную ванную и большой балкон.

Дом из кирпича – непросто строение, а настоящий семейный очаг для нескольких поколений. При этом кирпич является универсальным материалом, из которого можно построить дом для постоянного жилья в любой климатической зоне.

Такие дома теплые, пожароустойчивые и в течение многих лет сохраняют свой привлекательный внешний вид. Но прежде чем приступать к его возведению, нужно тщательно проект до 200 кв. м, чтобы в таком доме было комфортно жить всем членам семьи.
Post Views: Статистика просмотров 511
Используемые материалы – преимущества и недостатки
Как было сказано выше, основные затраты на строительство дачи или коттеджа под ключ идут на работы и материалы при возведении стен. В среднем, на них приходится 30-40% от всего бюджета. Поэтому будет логичным если мы рассмотрим их особенности более предметно:
Кирпич
К преимуществам кирпича относятся: высокая прочность материала, экологичность, продолжительность срока службы. Он также отличается максимальной стойкостью к воздействию осадков и климата.
Среди недостатков выделяют высокую стоимость, большой вес (а следовательно повышенные требования к обустройству фундамента), резкие потели тепла. Стены имеют большую толщину. Дома из кирпича строятся дольше всех;
Дерево
Среди преимуществ, стоит выделить невысокую стоимость, легкую технологию строительства. Нет необходимости обустраивать сложный фундамент. Можно сэкономить на внешней и внутренней отделке.
К минусам относят длительный срок строительства (для усадки деревянных домов требуется 1-2 года). К тому же, в результате воздействия высокой температуры и влажности, данный материал может гнить, на поверхности могут возникнуть трещины и деформации. Дерево также может быть поражено в результате воздействия насекомых — все это требует специального ухода и постоянных ежегодных затрат. Завершает перечень недостатков древесины — ее сравнительная недолговечность и необходимость в применении утеплителей.
Каркасно-щитовые
Среди достоинств этих конструкций можно выделить сравнительно невысокую стоимость, быстрые сроки возведения. «Каркасники» не требовательны к фундаменту, обладают хорошими теплоизоляционными свойствами и не имеют усадки стен.
К минусам относят сложную технологию строительства — потребуются значительные затраты на строителей. В каркасных домах можно применять только легкие перекрытия, т. е. максимально они ограничены высотой в 2 этажа. После строительства «каркасника» некоторое время приходится заделывать щели и стыковые элементы конструкции.
Пенобетон
Дома из пенобетона доступны и строятся быстро. Например, время укладки одного метра пенобетона будет равно трем кирпича, следовательно, если нужно возвести сооружение в минимальные сроки, такой вариант будет оптимальным.
К минусам можно отнести невысокую теплопроводность, плохую экологичность, по сравнению с кирпичом и древесиной. Отмечается и малая прочность, потребность использования дорогого каркаса. Стены должны быть значительной толщины, в противном случае, под весом конструкции пенобетон может разрушаться. Материал требует качественной защиты от воздействия атмосферных осадков.
Опалубка «Изодом»
Такие дома стоят недорого по сравнению с аналогами из кирпича. Из плюсов: материал досаточно прочный и обладает высокими теплоизоляционными свойствами. Полностью отсутствует усадка здания, хорошая шумоизоляция.
Среди минусов: незнакомая строителям технология, потребуется выполнение подготовительных работ.
Сэндвич-панели
К достоинствам таких зданий относятся: быстрая сборка, обеспечение максимального теплосбережения, высокий показатель шумоизоляции стен. Конструкция не потребует установки мощного фундамента, и времени на усадку. Монтажные работы могут быть начаты в любое время года.
Сэндвич-панели не пропускают воздух, это «не дышаший» материал (в отличие от того же дерева или кирпича). Так что для комфорта в помещениях потребуется установка системы приточно-вытяжной вентиляции. Среди других недостатков эксперты отмечают высокую стоимость, плохие показатели экологичности и пожаробезопасности.
Заключение
Заказчик вправе разбить строительство на отдельные виды работ, предоставив их выполнение узкоспециализированным строительным фирмам. Может это в какой-то мере разумно в плане качества, но в плане экономии можно порекомендовать заказчикам воспользоваться услугами одной, но сильной и проверенной фирмы по комплексному строительству дома под ключ. Выяснить насколько компания сильная можно хотя бы потому, сколько домов на ее счету сдано в эксплуатацию, часто все выполненные работы размещаются в портфолио
Такое решение позволит получить значительные скидки и бонусы, и, что очень важно, юридические гарантии качества на построенный дом
Подведем итоги
Что мы выяснили:
- При уменьшении площади дома, не все строительные конструкции уменьшаются пропорционально площади.
- Логистика при строительстве небольшого дома, может составить гораздо больший процент от стоимости, чем при строительстве дома побольше.
- Инженерное оборудование и сети в небольшом доме, могут стоить столько же или не намного меньше.
- Часть вещей (бытовая техника, мебель) в небольшом доме, будут стоить ровно столько же, сколько в доме побольше.
- Архитектурные особенности – большие террасы, крыши над ними, панорамное остекление, могут очень сильно увеличить стоимость дома, даже если сам дом маленький.
Сложив все вместе, вам станет понятно, почему “небольшой” дом на 60м2, может стоить всего чуть чуть дешевле дома на 100м2.
Поэтому, когда вы думаете – «хочу построить небольшой недорогой домик» помните о том, что его цена не будет линейно зависеть от площади.
Не рассчитывайте, что стоимость дома на 50м2 – будет в 6 раз меньше, чем стоимость дома на 300м2. В пересчете на стоимость м2 – она будет гораздо больше.
Мое мнение такое, если вы хотите иметь дачный, сезонный дом – оптимальная полезная площадь 70-90м2, ниже уже можно получить неудобство, вместо экономии.
Если же вы выбираете дом для ПМЖ – то оптимально это 100-150м2 для среднестатистической семьи.
Последние цифры подтверждены как разными опросами, так и статистикой ( не только нашей), именно в этом диапазоне находится дом «оптимальной площади» для среднестатистической семьи из 3-5 человек.
Так как все-таки сэкономить на строительстве дома? Это уже тема для другой статьи.
(Visited 13 351 times, 1 visits today)




































