Проекты домов из бруса 6 х 6 с мансардой: чертежи и внутренняя планировка
Когда встает вопрос о планировке дома с площадью 6 на 6, следует учитывать, для каких целей он строится. Если это домик для летнего загородного отдыха, то основную часть дома отводят для комнат жилого назначения, а для отдыха оставляют минимальное количество места. Как правило, зону отдыха в дачных домах обустраивают на террасе или рядом с домом на специальной площадке.
Правильное расположение комнат с террасой для отдыхаИсточник Skpomestie.ru
А вот если дом предназначен для проживания в нем круглый год, то площадь для жилых комнат остается небольшая. Ведь нужно место для общих помещений, таких как кладовая или гардеробная, которые помогут содержать дом в чистоте и порядке.
Рациональное расположение комнат с площадью для технического помещения или гардеробнойИсточник Domostroev.com
При планировании двухэтажного дома с такой площадью есть один существенный недостаток. Места для лестницы на второй этаж или мансарду остается очень мало. Как итог – она будет очень крутой, что значительно затруднит по ней подъем пожилых людей и детей.
Для одноэтажного дома
Одноэтажный дом площадью 6х6 имеет не так много вариантов планировки, как двухэтажные дома. Ведь на одной площади необходимо расположить все необходимые помещения и разделить их тонкими перегородками.
Если в доме будет проживать семья из двух человек, то можно сделать просторную кухню, спальню и санузел. Тогда каждое из помещений будет иметь достаточную площадь для комфортного проживания.
Планировка дома для семьи из двух человекИсточник Ooo-skp.ru
Когда строительство планирует семья с ребенком, то необходимо будет оборудовать детскую комнату. Для нее следует отнимать площадь от кухни и родительской спальни.
Планировка дома площадью 6х6 с двумя изолированными комнатами для родителей и ребенкаИсточник Dobrodom75.ru
Не стоит забывать и об обогреве дома. При планировании одноэтажного проекта предусматривается установка печи посередине дома. Такое расположение позволит одинаково обогревать все помещения, а так же разделит кухню и помещения для отдыха.
Для двухэтажного дома
Если предусматривается планировка дома 6х6 с мансардой, то жилая площадь будет уже не 36 кв.м, а 40-44 кв.м. При выборе крыши стоит заранее определиться с количеством спален на чердаке. Если будет одна большая спальня, то крышу можно сделать двухскатную.
Правильное расположение комнат в доме с мансардой и одной комнатойИсточник Daromdoma.ru
А когда в плане указывается две или три небольших комнаты, то стоит остановить выбор на вальмовой крыше. Под такой крышей можно сделать дополнительные помещения, например, гардеробную.
Расположение комнат на первом и втором этаже с отведением места для гардеробнойИсточник Domikbani.ru
На первом этаже здания располагаются кухня, гостиная, санузел и прихожая. А так же уделяется место и для лестницы. А в мансарде уже обустраиваются спальные комнаты.
Планировка такого дома имеет значительные преимущества. Спальные комнаты закрыты от посторонних людей, так как располагаются этажом выше. К тому же расширение жилой площади за счет строительства мансарды позволяет поставить дом для небольшой семьи в ограниченном пространстве.
Чтобы получить дополнительное пространство для отдыха, то следует на втором этаже сделать небольшой балкон или лоджию. Там можно поставить пару кресел и стол, и таким образом получить дополнительное помещение.
Рациональное расположение комнат дома с мансардой и отведением места для оборудования балконаИсточник Banivsem.ru
Специалисты рекомендуют проводить строительство домов такой площади именно с мансардой. Тогда само строение будет выглядеть пропорциональным, а на несущую конструкцию не будет создаваться большая нагрузка, а это защитит от сильной усадки.
При планировании места установки лестницы стоит помнить, что ее минимальная ширина составляет 1 метр. Тогда по ней можно будет безопасно передвигаться и избежать травм.
Для санузла отводится небольшое помещение, в нем лучше располагать не ванную, а душевую кабину: тогда места понадобится меньше.
Рациональная планировка санузла на первом этаже дома с мансардойИсточник Autogear.ru
Если один из членов семьи имеет надомную работу, то на первом этаже можно расположить изолированный кабинет в дальнем углу дома.
Материалы для постройки дома 6х6
Традиционно дачные дома возводят из легких и доступных материалов. В настоящее время все большей популярностью пользуется тип строения каркасный одноэтажный дом. Его можно поставить на участке за считаные дни, работа не требует специальных навыков и участия большого количества людей. Для постройки жилья на даче чаще всего используют:
- деревянный брус;
- доску;
- СИП-панели;
- ОСБ-плиты;
- мягкие кровельные материалы;
- шифер.
Поскольку общий вес такой конструкции весьма незначительный, то фундамент для него делается обычный, ленточного типа. На его изготовление идет песок средней фракции, мелкий щебень и цемент марки не ниже М400.

Вариант проекта коттеджа 6 на 6 метров
В зависимости от выбранного материала для возведения стен, строения делят на каркасные и домов из бруса.
Выбор материалов для строительства
Сруб – экологичный, очень теплый и уютный материал, самый естественный и самый желанный для собственного дома. Но не забывай, что дерево дает усадку, с ним сложнее работать, оно чувствительно к влаге и требует регулярного ухода. Эти проблемы свойственный даже брусу, хотя он удобнее в использовании.
Кирпич тоже теплый, не боится жары и морозов, поддерживает в доме комфортный микроклимат и служит по сто лет. Но кирпичная кладка – долгий и кропотливый процесс, а еще она требует мощного фундамента из-за большого веса. Керамоблоки немного удобнее в укладке, но из-за своих размеров они более хрупкие и дорогие.
Каркасные дома – быстро, просто и доступно, если ты хочешь закончить строительство как можно быстрее. Есть канадские и финские технологии, есть СИП-панели и другие сборные конструкции. Только учти, что у каркасов куда меньшее пространство для экспериментов с формами и планировкой.
Керамзитобетон и газобетон – легкие, теплые и огнестойкие материалы с хорошими изоляционными свойствами благодаря пористой структуре. Но они могут трескаться со временем и не настолько прочные, как кирпич. Арболит крепче и практичнее, но и цена его выше.
Не забывай о теплоизоляции, потому что неутепленные стены обойдутся тебе гораздо дороже. Немного сэкономишь на строительстве – но зато потом столкнешься с уймой трат на обогрев дома. Тем более, утеплитель довольно быстро укладывается и просто обшивается отделкой поверх.
Коротко о главном
Проекты размером 8х10 отличаются удобством и продуманностью с функциональной точки зрения. Они разнообразны по внешнему исполнению и планировочным решениям, а, благодаря компактности, вписываются в небольшие участки и оставляют достаточно места для рационального использования земли.
Популярностью пользуются проекты всех типов: одноэтажные, с мансардой или полноценным вторым этажом. Существуют общие принципы планировки, которые применяются во всех проектах 8 на 10. Вместе с тем, планировочные решения каждого типа имеют свои особенности, которые надо учитывать при выборе.
Планировка двухэтажного дома
Проект двухэтажного дома с размерами 9 на 9 квадратов используется, как правило, в условиях недостаточной площади земельного участка (плотная застройка смежных домов, необходимость удалённости от соседних строений, большое количество дополнительных строений на участке).
Возможный тип планировки:
- Прихожая должна иметь большие размеры, ведь именно здесь устанавливается лестница на верхний ярус. Площадку под лестницей используют с творческим подходом (установка небольшого стеллажа, полок, оборудование места для домашнего питомца). Лестница может быть винтовая, классическая, но обязательно с перилами.
- Гостиная должна занимать не более 40% от общей площади первого этажа. Подобные расчёты позволяют добиться оптимального размещения функциональных зон в доме 9 на 9 квадратных метров.
- На первом ярусе размещают все хозяйственные помещения: ванну, санузел, кухню. Для двухэтажных домов наличие двух выходов продиктовано правилами пожарной безопасности. Как правило, в роли второй двери используется выход на летнюю террасу или в гаражное помещение.
Второй этаж всегда используется под спальные комнаты, детскую игровую и полноценный гардероб.
Варианты застройки частных садовых участков
Установить частный дом 6х9 можно достаточно быстро, если воспользоваться услугами строительных организаций, предлагающих приобрести уже готовые строения. Такая методика застроек загородных зон уже давно имеет большой спрос среди населения.
Популярностью пользуются деревянные конструкции, выполненные из профилированного бруса, каркасно-щитовые варианты и другие конструкции, подпадающие под категорию быстровозводимых.

Желая получить более добротное жильё, которое подойдёт для проживания в зиму, некоторые люди заказывают строительство жилых сооружений из широкого бруса, блока или кирпича. Здесь уже приходится поработать основательно, несмотря на небольшие размеры площади.

Учитывая небольшие параметры, предполагается, что основная часть заинтересованных в данных проектах, люди со средним достатком. Приобретя садовые участки, некоторые из них приступают к самостоятельному строительству. Однако сделать это без подходящего проекта невозможно. Приходится либо чертить план дома 6х9 м., полагаясь на собственные навыки, либо искать типовые чертежи в интернете.

Сегодня, благодаря всемирной сети, этот вопрос решается быстро и конструктивно. Строительная тематика представлена в широкомасштабном формате. Консультации специалистов, статьи на отдельные темы, касающиеся отдельных видов строительства и конечно масса различных проектов. Там же применительно к проектам можно просмотреть и фотографии.
Читайте здесь! Дом с цокольным этажом — 90 фото лучших проектов. Удачные варианты планировки для загородных домов с цоколем

Практически все строительные фирмы, занятые возведением загородных малоэтажных конструкций, имеют свои сайты в интернете, и обнаружить фото частного дома 6х9 м. среди выставленных рекламных рабочих образцов не представляет особой сложности.

Дача из бруса
Обработанная на специальном оборудовании и получившая прямоугольное сечение древесина пришла на смену традиционным для деревянного зодчества бревнам сравнительно недавно. Плюсы такого материала в том, что при монтаже между элементами практически не остается щелей. А новое поколение материалов, которое называют профилированным брусом, позволяет наглухо соединять детали без зазоров. Это улучшает защитные свойства стен, кроме того, повышает надежность сцепления элементов конструкции.
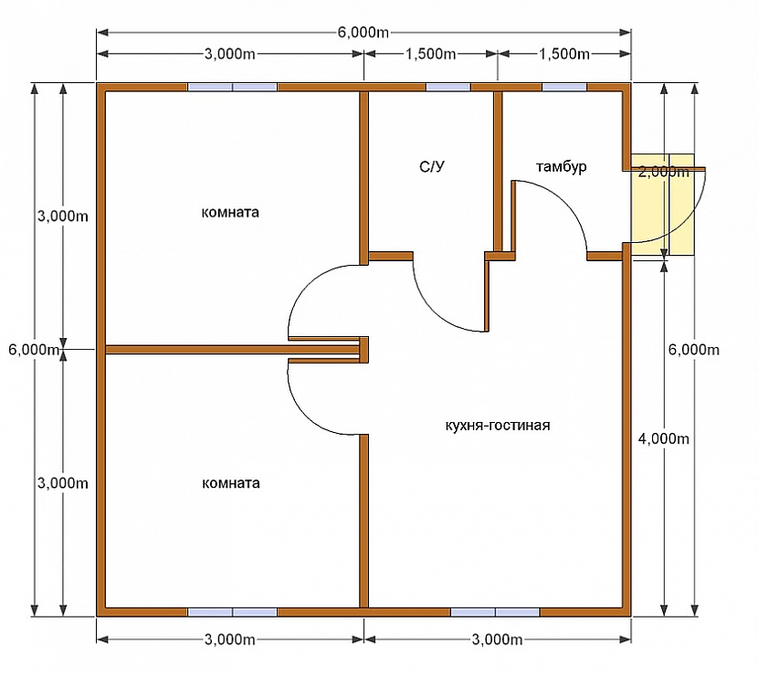
Дом из бруса 6х6 м можно быстро возвести, используя минимум рабочих ресурсов. Это тоже является плюсом такого строительного материала. Просушенная и обработанная от насекомых, плесени и огня древесина может долгие годы сохранять свои свойства. К минусам такого типа строений относится необходимость их дополнительного утепления.

Планировка дачи из бруса 6х6 метров
Однако в регионах, где зимы достаточно мягкие и нет сильных морозов, можно обойтись и без этого. Особенностью постройки домов из бруса является их пошаговая сборка. Опытные мастера советуют поднимать стены по всему периметру здания. Это позволит избежать перекосов и нарушений в технологии.
Сборный дом каркасного типа
В отличие от описанного выше, этот вид строений можно ставить, как конструктор: собрав одну наружную стену, мастера переходят к другой, и так до завершения всей коробки. Несомненным плюсом является быстрота монтажа. В пользу каркасных домов говорит и наличие утепляющего слоя в СИП-панели. В качестве основания под сборный дачный домик 6х6 возводится упоминавшийся выше ленточный фундамент. Остается отметить, что все работы сможет выполнить практически любой домашний умелец, имеющий навыки обращения с молотком, дрелью и пилой.
Проект и оформление каркасного одноэтажного дома 6х6
Все, что потребуется для удачного завершения процесса постройки одноэтажного дома 6х6 м из сборных конструкций, — это наличие проекта.
Типовой план
На 54 квадратных метрах особо не разгуляешься, а ведь именно столько пространства предоставляется для планировки в доме со стенами 6 на 9 метров. Конечно, можно что-то выдумывать и городить, но куда проще взять уже готовый типовой план. При необходимости, такой план можно доработать, но согласитесь, всегда проще создавать, отталкиваясь от чего-то.
Ниже представлен типовой план дома 6 на 9 метров:

Как правило, самую большую комнату отдают под гостиную. Из этой комнаты есть доступ в санузел и на кухню. Кухню и гостиную можно объединить, получив еще больше свободного пространства. Оставшуюся комнату используют как спальню, а если есть второй этаж, то основные спальни стараются разместить там, отдавая первый этаж под общие комнаты. Например, из спальни на первом этаже можно сделать кабинет, или гостевую спальную комнату.
Способы планировки дома с размерами 6х9: особенности, преимущества и недостатки
Одноэтажный или двухэтажный дом 6 на 9 из деревянного бруса для постоянного проживания – вариант экологичный, теплый и комфортный для владельцев небольших загородных участков.
Одноэтажный дом 6х9
Проект одноэтажного дома из бруса 6х9 лидирует в малоэтажном виде строительства, это выгодное решение загородной постройки. Такие проекты часто дополняют верандой, террасой, мансардой и гаражом. Ввиду отсутствия лестницы жилье не представляет опасности для детей, на просторной летней террасе можно принимать гостей, а на застекленной веранде, приспособленной под летнюю кухню, заниматься домашними хлопотами.
Одноэтажный проект дома 6 на 9 – отличный выбор для сезонного дачного строения, в котором летом будет комфортно отдыхать на свежем воздухе.
Типовой вариант
Типовой проект одноэтажного жилья из бруса 6 на 9 идеален для семьи из двух-трех человек. Ниже представлена схема планировки дома 6х9, она проста и функциональна. На входе расположен небольшой тамбур (4,62 м²), откуда идет проход в гостиную, которая является самым большим помещением в доме и занимает почти 19 кв. м. По проекту в угловой части располагается спальня (8 м²), рядом совмещенный санузел (4,6 м²). Далее размещено дополнительное помещение (S – 8 м²), его обычно используют для кухни или столовой.
Вариант планировки
Собственный уютный, теплый и просторный дом, сделанный по проекту из экологически чистого материала – мечта многих, но позволить себе такую роскошь может далеко не каждый. Для тех, кто не желает сдаваться и упорно идет к своей цели, отличным вариантом станут проекты домов из бруса 6 на 9 с мансардой, которые значительно увеличивают полезную площадь обустраиваемых помещений и являются оптимальным вариантом в соотношении цена-качество. На стоимость бревенчатых строений 6х9 влияет количество необходимого материала.
Чтобы попасть в мансарду, требуется предусмотреть наличие лестницы, по желанию хозяев там может располагаться одно просторное помещение (кабинет, спальня, детская комната, тренажерный зал, оранжерея) или несколько, разделенных каркасными перегородками комнат. Если хозяин планирует использовать это помещение постоянно, а не сезонно, стоит его утеплить или провести отопление на второй этаж.
Особые требования выдвигаются также к крыше здания, ведь от её качества полностью зависят условия жизни в данном помещении. Подробнее о проектировании дома с мансардой на нашем сайте отдельная статья.
Типовой план
На 54 квадратных метрах особо не разгуляешься, а ведь именно столько пространства предоставляется для планировки в доме со стенами 6 на 9 метров. Конечно, можно что-то выдумывать и городить, но куда проще взять уже готовый типовой план. При необходимости, такой план можно доработать, но согласитесь, всегда проще создавать, отталкиваясь от чего-то.
Ниже представлен типовой план дома 6 на 9 метров:

Как правило, самую большую комнату отдают под гостиную. Из этой комнаты есть доступ в санузел и на кухню. Кухню и гостиную можно объединить, получив еще больше свободного пространства. Оставшуюся комнату используют как спальню, а если есть второй этаж, то основные спальни стараются разместить там, отдавая первый этаж под общие комнаты. Например, из спальни на первом этаже можно сделать кабинет, или гостевую спальную комнату.
Строительство по индивидуальным проектным разработкам


Помимо всего, в момент выбора строительных материалов, всегда учитывается фактор времени. Хочется, чтобы строительство, даже если оно проводится силами строительной организации, проходило бы в ускоренных темпах.
Представители компаний, куда обращаются будущие клиенты, предлагают различные типы дачных сооружений. Большой популярностью пользуются каркасные типы, в том числе каркасный дом 6 на 9 м.

Так же не меньший спрос имеют каркасно-щитовые конструкции, хотя на сегодня такая система строительства считается относительно новой. Предпочтение такого загородного строения строится на невысокой стоимости, лёгкости конструкции и соответственно отсутствии усадки, жёсткости крепления и долгой эксплуатации.

Особенности проектирования и строительства деревянных домов 6х8
От составления проекта до окончательной отделки дома проходит несколько этапов:
- Проектирование жилого дома или уютной дачи всегда начинается с обследования участка. Это позволяет определиться с оптимальным расположением строения, выбрать необходимый фундамент.
- Составляется чертеж дома с учетом этажности, материала, используемого для строительства, расположения инженерных коммуникаций, рационального распределения нагрузок, архитектурных предпочтений заказчика.
- Создается проект и/или трехмерный макет строения, который согласовывается с заказчиком, вносятся коррективы, касающиеся планировки.
- Делается расчет затрат на материалы и производство работ.
- Выполняется возведение жилого здания – устройство фундамента, возведение стен или сборка каркаса, проводятся коммуникации, устанавливается теплоизоляция, системы вентилирования и отопления.
По окончании строительства и завершения усадки дома приступают к отделке фасада и внутренним работам, начинают благоустраивать территорию.

Прежде чем проектировать дом, необходимо обследовать участок, на котором он будет возводиться
Материалы
Подбор материалов обычно производится ещё на этапе планирования постройки. Нужно понять, из чего лучше создавать наружные и несущие стены. Каждый материал имеет свои собственные характеристики, которые также учитываются на первоначальной стадии строительства.
Бетонные блоки
Пеноблоки, имеющие пористую структуру, часто используются в строительстве одноэтажных домов. Материал имеет несколько преимуществ:
- малый вес;
- теплоизоляционные качества;
- простота в установке;
- проницаемость для паров;
- сравнительно небольшая стоимость;
- экологичность;
- идеальная ровность блоков.
Однако у пеноблока есть и некоторые минусы:
- плиты прекрасно впитывают жидкость (необходима термическая изоляция облицовочной конструкции);
- часто необходимо дополнительное армирование (особенно актуально при использовании газоблоков и пеноблоков).
Древесина
Древесина в качестве строительного материала для одноэтажных домов используется испокон веков. Маленькие деревянные домики с уютной мансардой прекрасно смотрятся, и в них очень уютно жить. Современные вариации из брусьев и брёвен отличаются красотой, практичностью и долговечностью.
При необходимости элементы конструкции из дерева нужно время от времени реставрировать. Однако если речь идёт о небольших по площади домах, то уход за ними не займёт много времени и не потребует сверхсил.
Керамоблоки и кирпичи
Кирпич славится надёжностью и долговечностью. Однако дома из кирпича имеют большую массу, поэтому фундамент для такого жилья должен быть очень основательным.
Керамоблоки гораздо легче обычного кирпича. Материал имеет пористую структуру, а внутри него создаются пустоты. За счёт этого блоки имеют облегченную конструкцию, хорошо сохраняют тепло, хотя их прочность немного ниже.
Каркасный метод
Довольно популярен в последнее время каркасный вариант. Это обусловлено простотой возведения таких конструкций, а также востребованностью используемых материалов. Многие владельцы частных домов проникаются всё большим доверием к каркасным постройкам, поскольку первые каркасники появились ещё несколько десятилетий назад и успешно используются до сих пор.
По сути, каркасный дом можно собрать как обычный конструктор. Возведением постройки можно заняться в любое время года, при этом строения остаются тёплыми и удобными. Однако деревянный каркас требует особого ухода, более тщательного, чем конструкции из брёвен или брусьев.
Одноэтажный дом 6х9
Проект одноэтажного дома из бруса 6х9 лидирует в малоэтажном виде строительства, это выгодное решение загородной постройки. Такие проекты часто дополняют верандой, террасой, мансардой и гаражом. Ввиду отсутствия лестницы жилье не представляет опасности для детей, на просторной летней террасе можно принимать гостей, а на застекленной веранде, приспособленной под летнюю кухню, заниматься домашними хлопотами.
Одноэтажный проект дома 6 на 9 – отличный выбор для сезонного дачного строения, в котором летом будет комфортно отдыхать на свежем воздухе.
Типовой вариант
Типовой проект одноэтажного жилья из бруса 6 на 9 идеален для семьи из двух-трех человек. Ниже представлена схема планировки дома 6х9, она проста и функциональна. На входе расположен небольшой тамбур (4,62 м²), откуда идет проход в гостиную, которая является самым большим помещением в доме и занимает почти 19 кв. м. По проекту в угловой части располагается спальня (8 м²), рядом совмещенный санузел (4,6 м²). Далее размещено дополнительное помещение (S – 8 м²), его обычно используют для кухни или столовой.
Планировка дома 6 на 9
Вариант планировки
Собственный уютный, теплый и просторный дом, сделанный по проекту из экологически чистого материала – мечта многих, но позволить себе такую роскошь может далеко не каждый. Для тех, кто не желает сдаваться и упорно идет к своей цели, отличным вариантом станут проекты домов из бруса 6 на 9 с мансардой, которые значительно увеличивают полезную площадь обустраиваемых помещений и являются оптимальным вариантом в соотношении цена-качество. На стоимость бревенчатых строений 6х9 влияет количество необходимого материала.
Планировка дома с мансардой
Чтобы попасть в мансарду, требуется предусмотреть наличие лестницы, по желанию хозяев там может располагаться одно просторное помещение (кабинет, спальня, детская комната, тренажерный зал, оранжерея) или несколько, разделенных каркасными перегородками комнат. Если хозяин планирует использовать это помещение постоянно, а не сезонно, стоит его утеплить или провести отопление на второй этаж.
Пример планировки дома с мансардой
Особые требования выдвигаются также к крыше здания, ведь от её качества полностью зависят условия жизни в данном помещении. Подробнее о проектировании дома с мансардой на нашем сайте отдельная статья.
Вам будет интересно: Преимущества и нюансы при возведении, планировке двухэтажного дома 9 на 9
Двухэтажный дом
В двухэтажном доме, который занимает участок 6 на 9, с комфортом может разместиться большая семья. Второй уровень дома обычно отводят под спальную зону. Особенности конструкции зависят от количества членов семьи и их образа жизни. Так, например, если в семье есть взрослые дети, можно предусмотреть две гостиные, чтобы представители разных поколений могли отдыхать и принимать гостей, не мешая друг другу. А семьям с пожилыми людьми рекомендуется размещать одну из спален на первом этаже.
Важным элементом двухэтажного дома является межэтажная лестница. Занимает места на первом и втором этажах. Часто при планировке небольших коттеджей для экономии места проектируют узкие и неудобные лестницы, иногда даже винтовые. Однако необходимо помнить, что все конструктивные элементы жилья должны быть, прежде всего, надежными и безопасными. Поэтому лучше установить удобную прогулочную лестницу с широкими ступенями. А в целях экономии места в нише под ступенями можно оборудовать шкаф или хранилище для предметов обихода.

Первый этаж
На первом этаже дома 9х9 в большинстве случаев делают кухню, место для приема гостей или столовую. Если нет цокольного этажа, то на первом в выделенной комнате обычно размещаются различные насосы и котлы, которые поддерживают системы жизнеобеспечение.
Вам будет интересно: Высота потолков в частном доме: советы, нормы и рекомендации
Кухню можно совместить со столовой комнатой или гостиной. Планировка будет оригинальной – рабочая зона перетекает в обеденную, а закончится всё гостиной. Так можно сэкономить жилую площадь, и не загружать весь проект деталями.

На кухне желательно установить большое окно – для естественного освещения. Пространство делится несколькими стеновыми выступами, в которых помещаются раздвижные двери. Это делается для создания помещения, отделяемого друг от друга – для удобства гостей и проживающей семьи.
На первом этаже также располагают ванную комнату, которая может быть совмещена с туалетом – на усмотрение жильцов.
Оптимальные размеры двухэтажного дома
Оптимальным минимальным пятном застройки считается прямоугольник 7х8 метров или квадрат 8х8.

Проект двухэтажного коттеджа 8х8 с террасой и балконом
Именно такие размеры позволяют построить небольшой дачный дом, где будут рационально расположены комнаты, удобно встанет полноценная лестница, а не чердачка, а также останется место не только для кухни, гостиной и хозяйских спален наверху, но и гостям будет, где разместиться.
При меньшем основании строение также может существовать, но тогда планировка двухэтажного дома будет неудобной и нефункциональной. Гостиная превратится в проходную комнату, большую часть полезной площади съест лестница, а наверху, при условии, что строиться будет не полноценный этаж, а мансардный, поместится только одна спальня.

Этот вариант можно рассматривать в качестве дачного домика для одного человека или семейной пары без детей. Верхняя планка размеров двухэтажного дома ограничена только здравым смыслом и конкретными потребностями. Для семьи из двух человек с двумя-тремя детьми вполне будет достаточно двухэтажного дома общей площадью в 110-130 квадратных метров. Если считать общую площадь дома с гаражом, то можно говорить об увеличении площади дома до 200 квадратных метров. Дома свыше этой площади будут очень дороги в эксплуатации и обслуживании, а большая часть помещений, как показывает практика, просто не будет использоваться.
Планировка дома 6 на 9
Планировка дома 6 на 9 должна быть составлена таким образом, чтобы «работал» каждый квадратный метр. Тогда в этом небольшом доме удастся разместить не только основные помещения, но и вспомогательные, а также сделать их максимально-просторными и удобными для эксплуатации. Подобные дома принято относить к вариантам эконом-класса — как по стоимости строительства, так и по площади. Между тем, общая площадь такого строения значительно превышает габариты городской трехкомнатной квартиры, да и по стоимости обходится дешевле.
Одноэтажный дом 6 на 9 метров обычно представлен большой гостиной, кухней, спальной комнатой, санузлом и террасой. В таком исполнении планировка дома 6 на 9 соответствует городской двушке. Если же обустраивается мансарда дома, получается организовать еще одно помещение. Двухэтажный дом предоставляет хозяевам еще больше свободы: в этом случае план дома 6 на 9 (из деревянных или каменных материалов) увеличивается на дополнительные 54 м², которые могут быть использованы для обустройства детских и спальных комнат, а также для гардеробной, ванной и прачечной комнаты.
Площадь двухэтажного дома 6 на 9 достаточна для проживания семьи с 1-2 детьми. Каждый из членов семьи в таком доме может рассчитывать на собственную небольшую комнату. При этом, место останется и для гостей, и для организации подсобных помещений. Таким образом, планировка дома 6 на 9 может быть удобной и функциональной.
Планировки домов 6 на 9 – одноэтажные, с мансардой, двухэтажные
В каталоге планировок частных домов можно выбрать наиболее соответствующую запросам семьи планировку:
- дом 6 на 9 – одноэтажный;
- дом 6 на 9 – двухэтажный;
- дом 6 на 9 – с мансардой, гаражом и печкой, с верандой, террасой или балконом.
Планировка дома 6 на 9 – очень простое и элегантное решение. Дом не узкий и не длинный.
- Комнат 4
- Этажность 1
- Площадь 85
Двухэтажный дом – планировка 6 на 9
Очень успешная планировка 6 на 9 метров, большая гостиная, напротив которой расположена кухня. Санузел прекрасно вписался возле лестницы. Капитальные стены расположены одинаково как на первом, так и на втором этаже, поэтому план раскладки плит перекрытия будет практически одинаков.
- Комнат 3
- Этажность 2
- Площадь 70
Очень приятная планировка 6 на 9 – с террасой и верандой одновременно.
- Комнат 4
- Этажность 1
- Площадь 40
Современные строительные технологии дают возможность создавать дома различных конфигураций и уровней, однако большинство людей до сих пор отдают предпочтение малогабаритным домам с индивидуальной планировкой.
Проект дома 6 на 9 метров – идеальное решение для тех, кто хочет иметь свой дом. На первый взгляд, он кажется маленьким, но в процессе эксплуатации становится ясно, что его площадь позволяет организовать полноценные помещения, с улучшенной планировкой и современной организацией пространства.
Ниже представлены рабочие проекты домов 6 на 9 из:
- пеноблока,
- бруса,
- бревна,
- камня и других, не менее качественных, материалов.
Одноэтажный проект дома 6 на 9
Дома с одним этажом очень комфортны для постоянного проживания. При рациональном планировочном решении, они позволяют выгодно зонировать помещение. Выделенные хозяйственная, жилая, рабочая, техническая зоны, расположенные на конкретном расстоянии между собой, дают возможность разместить в доме семью, включающую разные поколения.
Одноэтажный проект дома 6 на 9 с отличной планировкой и стилевым решением таит меньше опасности для детей и пожилых людей, не требует больших капиталовложений, его проще ремонтировать.
Двухэтажный дом 6 на 9
При ограниченных размерах земельного участка, отдавать предпочтение лучше двухэтажному дому. Кроме того, такой выбор сбережет финансы, отведенные на устройство фундамента и крыши, а его компактность позволит расходовать меньше строительных материалов.
Двухэтажный проект дома 6 на 9 для постоянного проживания будет служить долгое время, если монтировать качественные системы водоснабжения и отопления. Запроектированные дома в два этажа отличаются высокой эргономичностью, экономичностью площади, большой вариативностью наполнения внутреннего помещения.
Дом 6 на 9 с мансардой
Выгода от наличия мансарды не подлежит сомнению. В первую очередь, это архитектурная и дизайнерская привлекательность. За счет наклоненных стен, мансардных окон, выходящихв небо, появляется широкий простор для осуществления дизайнерских решений.
Дома 6 на 9 с мансардой позволяют рационально использовать пространство здания, расширить площадь, не вкладывая больших финансовых средств.




































