Кирпичная баня
Для кирпичей меньше ограничений в плане подбора места для строительства и при реализации особенности помещений. Под баню выбирают огнеупорные материалы.
Достоинства и недостатки
Глина, из которой сделан кирпич – материал природного происхождения, и потому можно говорить про экологичность. На этапе строительства бани материалы обрабатывают посредством препаратов против гнили и антипиренов, которые будут нести с собой вредоносные примеси
Поджечь такие блоки нереально, и это важно, потому что применяют твердотопливные печи, и в их топке уровень температуры может быть +600 градусов. Такая баня прослужит от 65 и больше лет при правильном уходе
Постройка из бруса выдерживает аналогичный срок, но расход на обслуживание больше в пару-тройку раз. Оцилиндрованный или строганный брус не нужно изгибать, что помешает созданию построек дизайнерского типа. Форму банной стены из блоков создают в криволинейном виде, если этого будет требовать проект. При выборе требуется учесть остальные плюсы:
- Основание.
- Стоимость.
- Влагопоглощение.
- Необходимость в утеплении.
- Тепловая емкость.
Тепловая проводимость кирпича куда выше, нежели у дерева, и потому требуется утепление бани посредством изолятора. Микроскопические поры в блоках собирают влагу, разрушаясь от температурных перепадов и теряя прочность. Банный проект из кирпичей может выйти дороже аналогичного по размерам оцилиндрованного бревна. Вес строения требует прочного основания, что тоже увеличит траты и создаст проблемы на нестабильном грунте.
Какие кирпичи лучше
При постройке стен в бане из кирпичей применяют колодезную кладку, и ее особенностью стало наличие прослойки воздуха между плоскостями. Этот подход дает возможность утеплять поверхность внутри, и из блоков используют:
- Красные керамические кирпичи.
- Красные поризованные кирпичи.
Первый вид больше подойдет для кладки и облицовки, причем блоки производят пустотелыми или полнотелыми. Первые обладают огромной несущей способностью, а вторые – свойства тепловой изоляции. полнотелые кирпичи укладывают в пару рядов, если из них выстраивают банные стенки. Пустотелый не подойдет для дымоходов и цоколей. Блоки поризованного типа являются формованной смесью с глиной, а в нее добавляют опилки
При обжигании последние становятся пеплом, образуя пустоты, что важно для свойств тепловой изоляции. тепловая проводимость сравнима с той, которой обладает брус оцилиндрованного типа
Достоинства – звуковая изоляция, прочность и малый вес.
Обратите внимание, что если предусмотрено утепление стен посредством минеральной ваты и создание гидроизоляции, то подойдет и кирпич силикатного типа для строительства
Разновидности кирпичных бань
Проекты кирпичных бань отличаются разнообразием, в зависимости от общей площади конструкции, наличия дополнительных комнат, террасы. Правильность планировки напрямую влияет на эффективность и качество постройки, длительность эксплуатации. Составить проект самостоятельно сложно, тем более начинающему мастеру. Всегда можно воспользоваться готовыми схемами и чертежами. Приведём несколько примеров.
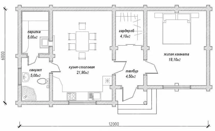
Одноэтажная конструкция 6х4 с террасой
Схемы здесь https://dekoriko.ru/banya/proekty/iz-kirpicha/
В планировку входят три смежные комнаты:
- душевая или моечная;
- парилка;
- комната отдыха.
На схеме проекта планировку допускается изменить, переставив дверные проёмы. Не все приветствуют расположение входа с улицы сразу в комнату отдыха. Это можно исправить наличием террасы, где удобно расположить мангальную зону, мебель для отдыха, обеденный стол.

Строение 6х4 стандартной планировки
Схемы здесь https://2proraba.com/banya/banya-iz-kirpicha.html
Отличная идея для участков с небольшой полезной площадью. Конструкция поделена на три части:
- комната отдыха, которая по совместительству также предбанник. Здесь выведена топка для печи;
- моечная или душевая, совмещённая с санузлом;
- парилка.
В данном проекте моечная становится переходной комнатой из предбанника в парную. Таким образом, весь функционал бани присутствует на относительно небольшом пространстве за счёт совмещения некоторых комнат. То, что душевая является переходной, в этом ничего страшного нет. Здесь как раз поддерживается умеренная температура воздуха при высокой влажности. Плотно закрывающиеся двери помогут решить проблему с продуваемостью и сквозняками.

Угловая конструкция
Схемы здесь https://dekoriko.ru/banya/proekty/iz-kirpicha/
Нестандартные формы всегда привлекают оригинальностью дизайна и особенностью расположения на участке. Здесь парную размещают перпендикулярно к остальным комнатам.
Оригинальная планировка в форме угла даёт сразу несколько преимуществ:
- есть возможность пристроить к основному зданию на участке или летней кухне;
- площадь позволяет сделать бассейн под навесом или без него, либо выстроить платформу для активного отдыха с барбекю, бильярдом, купелью;
- это экономично с точки зрения распределения полезной площади земли;
- снижается теплопотеря, так как печь, расположенная в углу, прогревает сразу все смежные помещения.

Чертежи печей
Самый важный предмет в бане – это печь из кирпича. Ее легко построить своими руками, если есть хотя бы минимальные навыки в строительстве.
Перед устройством конструкции в бане необходимо определиться с проектом печки, схемой порядовки и вести строительство точно по установленному плану.
Такой порядок действий поможет избежать ошибок, приводящих к разрушению кирпичной печи.
Как правило, своими руками строят печи из искусственного камня.
Для этого потребуются определенные материалы, без которых не обойтись при строительстве печи.
- Шамотный огнестойкий кирпич, из которого выкладывают топку;
- Красный обыкновенный кирпич пригодится для строительства всех остальных частей печи;
- Фурнитура из чугуна – дверцы, поддувала, колосниковые решетки, плита и вьюшки;
- Рулонный рубероид для дополнительной защиты от воды;
- Бак, в котором будет греться вода (если планируется его наличие);
- Шнуры из асбеста для крепления чугунного литья;
- Огнеупорная белая глина для раствора. Ее можно заменить обыкновенной, но желательно, чтобы глина была добыта с большой глубины;
- Карьерный кварцевый песок. Речной не подойдет – он слишком гладкий, поэтому не будет давать нужного сцепления с поверхностью.
Перечисленные материалы – это необходимая минимальная комплектация
Важно понимать, что в процессе строительства кирпичной печи в бане и порядовки, могут возникнуть непредвиденные расходы. Сразу стоит определиться, нужна ли печи отделка – простой кирпич сам по себе смотрится вполне эстетично, но допускается отделка другими материалами
Популярностью пользуется отделка изразцами, огнеупорной плиткой и штукатуркой. Обшивка деревом не рекомендуется, так как древесина не выдержит высокой температуры. Она растрескается и будет коробиться, но также может вспыхнуть.
Информация. В процессе подгонки кирпичей можно пользоваться болгаркой, чтобы спиливать выступающие углы и излишки засохшего раствора, если он уже не смывается водой. Использовать печь сразу после возведения нельзя – ей нужно примерно три недели, чтобы полностью просохнуть.
Топить в первый раз нужно не в полную силу – так печь равномерно просохнет изнутри и раствор крепко схватится. Такой подход обеспечит печи долговечность.
Порядовка
По сути, порядовка представляет собой схему, по которой будут уложены кирпичи в печи.
Первым делом укладывается фундамент. Выкапывается углубление в 70 см, на дно которого выкладывают слой утрамбованного песка (около 15 см).
Затем выстраивают арматурный каркас, который заливают бетоном почти вровень с полом.
Следующий шаг – настил рубероида для гидроизоляции и установка нулевого ряда кирпичей. Дальше идет строительство печи согласно порядовке.
Сами схемы могут отличаться, но вот общий принцип строительства печи не меняется.
В первом ряду кирпичей устанавливается прочистная дверца, а ее крепления должны располагаться под кирпичами;
В третьем ряду устанавливается решетка колосников, которая позволяет пеплу опускаться вниз, а дровам оставаться на месте;
В четвертом ряду устанавливается дверь топки
Важно, чтобы между топочной и колосниками был небольшой зазор, чтобы решетка от нагрева не расширилась и не испортила кирпичную кладку;
В девятом ряду производится монтаж чугунной плиты. На ней будут располагаться камни;
Далее ведется строительство основания трубы дымохода до 21-го ряда;
В двадцать первом ряду устанавливается вьюшка;
Далее ведется строительство трубы дымохода до тех пор, пока она не будет возвышаться на 1,5 м над кровлей.
Важно! Нужно обязательно определиться с установкой бака для нагрева воды. Если планируется его наличие, то стоит выбрать его месторасположение
Бак можно вмонтировать в печь, установить к ней вплотную или оставить как отдельно стоящий элемент.
Самым оптимальным вариантом считается такое положение бака, когда он стоит вплотную к печи или располагается на ней. Если в баню проведена инженерная система водоснабжения, то от бака можно отказаться совсем, заменив его небольшой емкостью с водой – этого будет достаточно, чтобы в нужный момент поддать пара.
После окончания строительства весь мусор необходимо убрать. Свежие излишки раствора можно убрать водой или срезать шпателем. Печь отмывают от грязи, а затем оставляют просушиваться. Через три недели печь можно начинать эксплуатировать – за это время можно закончить отделочные работы в бане.
Бассейн в бане
Устройство даже небольшого бассейна в бане потребует определенных дополнительных трудозатрат. Материалом для бассейна может железобетон, пластик, металл, древесина. В зависимости от финансовых возможностей и площади помещения зависят размеры бассейна. Конструкции дна и стен бассейна из железобетона оштукатуривают и облагораживают керамической плиткой.
Специальным способом подготовленные доски из дуба используют для изготовления своеобразных купелей глубиной до полутора метров. Наиболее распространенным металлом для бассейна является нержавеющая сталь. Водоотвод из таких бассейнов периодически осуществляют глубинными насосами в близлежащий пруд.
Баня из кирпича своими руками: пошаговая инструкция
Как уже говорилось, кирпичные бани – это надежные и прочные постройки, которые имеют длительный срок службы
Но чтобы баня действительно радовала вас в течение долгих лет, важно правильно выбрать материал для строительства
Для кладки стен прекрасно подойдут полнотелые глиняные (красные) или силикатные (белые) кирпичи. Они обладают высоким уровнем термостойкости и слабовосприимчивы к механическим воздействиям. Глиняные кирпичи более прочные, но они стоят дороже. Для экономии для монтажа перегородок можно использовать пустотелые кирпичи, они дешевле, легче по весу.
После того, как материалы подобраны, можно начинать строительство бани из кирпича.
Шаг 1. Установка фундамента
Как уже говорилось, кирпичная баня – это тяжелая постройка, нуждающаяся в качественном основании. Нельзя сэкономить на фундаменте и ограничиться облегченным вариантом, т. к. подобный подход приведет к тому, что здание быстро разрушится.
Для строительства бани из кирпича лучше всего подойдет ленточный фундамент. Его нужно заглублять не меньше чем на 1 м, глубина зависит от типа почвы.
Для начала необходимо вырыть котлован, засыпать 15-20 см слоем песка, полить водой и уплотнить. Сверху песок покрывается 10 см слоем щебня, далее снова идет песок.
После нужно сделать опалубку, установить арматурный каркас, подготовить сливные отверстия и залить цементным раствором.
Для теплоизоляции необходимо покрыть основании двумя слоями рубероида.
Более сложным вариантом будет свайный фундамент. Но в некоторых случаях без него не обойтись, к примеру, если вы собираетесь строить баню на склоне.
Шаг 2. Возведение стен
Кладка стен может быть сплошной и облегченной. В первом случае кирпичи укладываются в несколько рядов (минимум два), без пустот. Второй вариант предполагает возведение из кирпича двух стен, между которыми будут пустоты, заполненные теплоизолирующим материалом, например, базальтовой ватой.
Как уже говорилось, внешние стены, а также цоколь лучше строить из полнотелого кирпича, а внутренние перегородки – из пустотелого.
Укладку стен следует начинать с углов. Для работ понадобится строительный раствор, который делают из песка и цемента. Нужно нанести раствор слоем в 2 см и выложить кирпичи по углам в несколько слоев.
Ниже представлены схемы кладки углов кирпичом:
Далее можно переходить к укладке стен. Учтите, что первый ряд должен быть полностью выложен по всему фундаменту, даже если вы планируете делать облегченную кладку.
Со второго ряда можно делать облегченную кладку, начинать ряды стен нужно с наружных кирпичей. При кладке материал нужно смачивать, особенно если стройка ведется в жаркую погоду.
Кирпичи нужно выкладывать строго по рядам. Для возведения опорных конструкций нельзя использовать битые кирпичи.
При укладке стен нужно следить за тем, чтобы все швы были ровными. Они не должны быть слишком толстыми или тонкими, рекомендуемая ширина – 1-1,2 см.
Не забудьте оставить дверные и оконные проемы.
При облегченном типе кладки нужно закрыть пустое пространство теплоизолирующими материалами: смесью опилок, легким шлаком, известью-пушонкой, минеральной ватой и т. д.
Можно сделать внешнее утепление бани пенопластом, но в этом случае понадобится сделать внешнюю отделку.
Шаг 3. Монтаж крыши
Крышу для бани можно сделать одно- или двускатной, в зависимости от личных предпочтений и выбранного проекта. Чаще всего делают двускатную крышу.
Для ее монтажа нужно сделать мауэрлат, прикрепить к нему стропильную систему, покрыть ее обрешеткой и кровельным материалом.
Подробнее о том, как сделать крышу в бане своими руками мы рассказывали в другой статье.
Шаг 4. Внутренняя и внешняя отделка
Для внутренней отделки традиционно используется вагонка – это лучший материал, обладающий множеством преимуществ. Моечную можно покрыть керамической плиткой.
Делать наружную отделку необязательно, конечно, если вы не делали внешнее утепление. Если вы все-таки собираетесь сделать отделку, то можно оштукатурить стены цементно-известковым раствором, покрыть их сайдингом и т. д.
Теперь вы знаете, как построить баню из кирпича своими руками. На этом основные работы закончены, можно переходить к расстановке мебели и эксплуатации бани.
Кирпичная баня – это надежная и крепкая постройка, которая прослужит вам в течение долгих лет
Но чтобы баня была удобной и практичной, важно правильно подобрать проект. На стадии составления проекта торопиться не нужно, важно грамотно составить чертеж, указать все размеры и расположение перегородок, дверей, окон, продумать системы вентиляции, освещения, водоснабжения и водоотведения
Установка стропильной системы
Монтаж стропил
Шаг, №№ Описание Иллюстрация Шаг 1. Сделайте разметку мест расположения стропильных ног. У нас их семь штук, при длине бани расстояние между стропилами буде равняться 85 сантиметров. Это цифра скорее для примера, каждая баня может иметь незначительные отклонения по периметру верхнего венца, это не страшно. Главное, чтобы расстояния между стропилами имели одинаковые значения.
Делаем разметку для установки стропил
Шаг 2. Проверьте горизонтальность верхнего ряда, одно не может отклоняться более чем на 1÷2 сантиметра по крайним углам. Если разброс больше, то придется делать запилы в верхнем венце сруба или в балках потолочного перекрытия. Большой разницы в методе выравнивания плоскости перекрытия нет, выбирайте, как вам удобнее и как легче.
Шаг 3. Поднимите все собранные стропила и каркасы на чердак, аккуратно сложите их одной стопкой около любого фронтона.
Поднимаем стропила наверх
Шаг 4. Начинайте установку первой фронтонной конструкции. Для этого нужно будет приготовить простое приспособление – доску для упора в коньковую часть. Сделайте его в виде рогатки, это полностью исключит соскальзывание конструкции во время подъема.
Установка фронтона
Шаг 5. Два помощника пусть поднимут стропила у коньковой части на максимальную для себя высоту, третий человек при помощи приспособления упрется в коньковую часть и приподнимает ее до вертикального положения. Помощники по бокам должны одновременно ставить нижние части балок перекрытия на место. Как только конструкция займет необходимое положение, следует ее временно, но надежно зафиксировать с помощью любых угловых распорок.
Установка промежуточных стропил
Шаг 6. По такому же алгоритму поднимите и зафиксируйте систему у второго конька
Работы выполняйте не спеша, помните об осторожности. Шаг 7
По коньку натяните веревку, по веревке по очереди устанавливайте все оставшиеся стропила. Прочно фиксируйте ноги к верхнему венцу, используйте металлические самодельные скобы, магазинные уголки и саморезы
Шаг 7. По коньку натяните веревку, по веревке по очереди устанавливайте все оставшиеся стропила. Прочно фиксируйте ноги к верхнему венцу, используйте металлические самодельные скобы, магазинные уголки и саморезы
Различными отрезками досок соединяйте между собой стропила со стороны мансардного помещения. После установки обрешетки временные крепления нужно будет убрать.
Монтаж стропильной системы
Установленные стропила
Мансардная стропильная система – фото
Видео – Мансардная стропильная система
В одном или двух коньках нужно сделать окна, для их установки нужен каркас. Рекомендуем размеры окна 120×100 см. Расскажем, как оно делается на одном коньке, а вы себе сделаете столько, сколько пожелаете.
Выбор места для постройки кирпичной бани
Баня из кирпича, в отличие от сруба, больше боится влажности. Поэтому место для постройки нужно выбирать не ближе 30 м от естественного водоема, так как при весенних разливах не исключается угроза подтопления участка. До закладки фундамента бани необходимо учесть противопожарные правила, которые предписывают строительство бани из кирпича не ближе 12 м от дома ваших соседей при топке ее печи дровами. Если печь планируется электрической или газовой, расстояние между постройками можно уменьшать до 5 м.
Очень удобна кирпичная баня в виде пристройки к жилому дому. Налицо экономия стройматериалов и удобство прокладки инженерных коммуникаций. К тому же зимой не придется разгребать от снега проходы к бане и бегать по двору с охапкой полотенец или белья.
Внутренняя и внешняя отделка сооружения
Утепление является обязательным процессом при сооружении кирпичного здания, стенки бани могут быть отделаны следующими видами утеплителей:
Сыпучие материалы (опилки в смеси со шлаком и известью-пушонкой). Смесь укладывается слоями толщиной до 50 см, каждый следует поливать жидкой известкой.
Плитные материалы
Панели фиксируются внутри с помощью специального крепежа, при монтаже важно обустроить воздушную прослойку. Для этого закрепленные детали разрезаются на полосы, которые устанавливаются с интервалом между друг другом и враспор к стенкам.
Если строим баню, имея малый бюджет, можно использовать минеральную вату
Такой материал применяют между стенок или устраивают внутри реечную поверхность, а между ней и кирпичом укладывают вату. При выборе ваты для утепления важно, чтобы это была разновидность, не вызывающая аллергии и проблем с дыхательными путями, иначе пользоваться баней будет невозможно.
Пенопласт — еще 1 материал, который можно использовать. Его монтируют не в бане, а снаружи, затем оштукатуривают и обшивают классическим либо виниловым сайдингом.
Помимо теплоизоляции, важно гидроизолировать строение, чтобы влага не разрушала его. Стенки промазывают битумом, мастикой, можно оклеивать их рубероидом
В качестве пароизолятора обычно применяют специальный пенополиэтилен, который крепится при помощи брусков либо реечного материала.
Проекты бань из кирпича
Важным этапом начала любого строительства является проектирование объекта. Построить отличную баню из кирпича можно, использовав в качестве основы готовый типовой проект или разработав его самостоятельно с учетом личных потребностей и предпочтений.
Если участок имеет ограниченное пространство, можно обойтись строительством небольшой бани размерами 3Х4.

Самый простой проект небольшой бани размерами 3Х4 Источник mos-logist.ru
Большие площади участка дают свободный полет фантазии и позволяют легко реализовать проект любых размеров.

Проект бани с бассейном Источник pinterest.com
Независимо от размеров, баня включает в себя несколько различных по назначению помещений, расположенных под одной крышей и разделенных перегородками:
- моечную;
- парилку;
- комнату отдыха.
Наличие и расположение других помещений планируют по желанию застройщика. В зависимости от назначения постройки и ее размеров, количество дополнительных комнат не ограничено.

Проект жилой бани Источник banya-ili-sauna.ru
Продуманная внутренняя планировка и удобное расположение необходимых элементов в бане облегчает ее эксплуатацию и уход. Даже небольшие комнатки требуют разделения на функциональные зоны. Это позволит использовать их прямому назначению.
При оборудовании входной двери в комнате отдыха, зимой холодный воздух поступает в помещение и охлаждает его. Этого можно избежать, применив один из предложенных способов:
- строительство утепленного тамбура при входе;
- устройство крытой веранды;
- установка капитальной разделительной перегородки в комнате отдыха.

Пример проекта и планировки бани из кирпича Источник oamin.ru Проекты кирпичных бань включают подробную разработку каждого элемента:
- фундамента;
- стен;
- потолка;
- кровли.
Главным объектом проекта бань является печь. Она должна быть удобна в использовании и отлично прогревать помещение. Размер печи зависит от площади бани. Оборудованное место для хранения небольшого количества дров значительно облегчит обслуживание печи. Ее удобнее всего располагать со стороны комнаты отдыха.

Устройство печи из кирпича для бани Источник yellowmaster.ru
Металлические печи, предлагаемые производителями в самых различных вариациях, быстро нагреваются и просты в установке. Металлическую печь чаще всего обкладывают рядом кирпича, защищающего металл от перегрева.
Проекты бань больших размеров нередко предусматривают строительство санузла, кухни и других помещений. Реализация таких проектов осложнена устройством обогрева, ведь комнаты должны равномерно прогреваться. Для этого устанавливают дополнительные системы отопления:
- газовые котлы;
- электрические обогреватели;
- котлы на твердом топливе;
- конвекторы.

Камин для обогрева комнаты отдыха Источник ninfest.ru Установка комбинированной системы отопления позволяет использовать самый доступный способ обогрева бани из кирпича больших размеров и регулировать расходы.
Особенности
Главная особенность отопительной банной системы состоит в том, что она должна быть особо прочной, способной накаляться по максимуму и, кроме того, она должна длительное время выдерживать произведённые ею высокие температуры. Если в одноэтажных домах подобные требования осуществляются за счёт прокладки паровой системы (отопление в доме не достигает таких высоких температур), то в бане нагрузки ложатся на печь. Таким образом, инженеры рекомендуют изготавливать банную печь из огнеупорного кирпича, поскольку при хорошей кладке данный материал соответствует всем предъявляемым требованиям.


Печь из кирпича состоит из следующих основных элементов:
- топка – приспособление для сжигания дров или угля;
- вытяжка, распложенная над очагом возгорания (топкой);
- труба, называемая дымоходом, приделанная к вытяжке;
- зольник, именуемый в народе подувайлом;
- каменка, являющаяся также дополнительным источником тепла.
Если учесть наличие всех упомянутых элементов, то вес кирпичной печи может достигать, в зависимости от размеров самой отопительной системы, 1200 кг, поэтому нужно позаботиться и об изготовлении качественного фундамента.

Достоинства бань из кирпича
Если вы хоть немного владеете техникой кладки кирпича, вы можете выстроить баню своими руками. Даже если и не умеете класть кирпич, этому можно научиться. Желательно, поприсутствовать на строительстве, посмотреть на процесс, позадавать вопросы. Но если такой возможности нет, есть вполне толковые видеоматериалы о том, как класть кирпич
Только обратите особое внимание на правильность возведения углов — от них зависит геометрия и прочность здания
Если сравнивать с деревянными банями, то есть три весомых плюса:
- кирпич не гниет и не повреждается болезнями и грибками;
- сразу после возведения можно приступать к установке окон дверей и отделочным работам — он не дает такой сильной усадки, как древесина;
- кирпич не горит, потому в плане пожарной безопасности они менее опасны.
Получается, что трудоемкость кладки, с лихвой возмещается отсутствием усадки. В результате париться можно будет намного раньше.
Кирпичные бани имеют солидный вид
Подборка проекта
Данный проект печки подходит для большинства видов бань.
Размеры конструкции позволят отопить помещение (10-15 м2) до 50 градусов, а при подаче пара до 90 градусов. Бак емкостью 180 литров, вмонтирован в печку и удовлетворяет всю необходимую потребность в горячей воде для комфортного процесса мытья всех членов семьи. Для более долгого остывания каменки после завершения топки, предусмотрены железные трубы (6 штук, рядом с баком для воды).
Так же трубы поддерживают камни над топкой. Трубы быстро нагреваются, а после завершения процесса нагрева постепенно отдают тепло. Над булыжниками расположено отверстие, через которое и будет подаваться вода, для образования пара.
Второй этап – вид печки
Необходимо определиться с типом и внешним видом печки для бани. Будет ваша конструкция с баком для воды или нет. Какой вид нагрева будет у горячей воды (с прямым выходом газа через топливник). Какой тип каменки можно применить (открытая каменка или с вынесенными камнями).
Определившись с типом и видом печи для бани (по белому), не стоит забывать и об отводе газа из печи. Благо вариантов здесь не много. С прямым дымоходом или с боковым дымоходом. Зависит это от вашего месторасположения конструкции и возможностью вывода вашего дымохода. Обязательно при строительстве нового дымохода изолируйте расстояние между дымоходом и кровлей термостойким материалом во избежание возгорания кровли.
Утепление крыши бани
После возведения стен и кровли кирпичную баню нужно утеплить
Особое внимание следует уделить крыше строения. Этот процесс проходит следующим образом
- В чердачном помещении бани устанавливается обрешётка с шагом в 50 см.
- На неё укладывают слой стеклоткани.
- Затем идёт слой утеплителя — рекомендуется использовать базальтовую вату или плиты пенополистирола.
- Утеплитель закрывают строительной фольгой и закрывают обрешётку фанерой, пропитанной антисептиками.
Обратите внимание! При теплоизоляции потолка нужно обработать специальной пропиткой все рейки, используемые для обрешётки
Эпилог
Используя приведенную схему порядовки строительства банной печи, вы можете собственноручно построить желаемую печь, приложив достаточно усилий. Рассмотренный проект создан для общего понятия и структурирования правильной последовательности возведения конструкции. Размеры, внешний вид, конфигурацию вы можете менять на свой вкус и цвет.
Сложить кирпичную печь для бани, дело хлопотное и трудоемкое, требующее привлечения специалистов и финансовых вложений, поэтому прежде чем приступать к кладке печи, необходимо тщательно подобрать наиболее подходящую конструкцию кирпичной печи, чтобы результат затраченных усилий не разочаровал, а сложенная печь имела максимально возможную производительность при экономном расходе топлива. И.В.Кузнецов предложил принципиально новую конструкцию печи, в которой газы проходят не по каналам, а передвигаются в свободном движении из одного колпака в другой, за счет чего значительно повышается КПД кирпичной печи. Читайте руководство по выбору электрической печи для бани на этой странице.
На фото представлены колпаковые печи Кузнецова




































