Изготовление ворот своими руками
Тем, кто принял решение делать секционные ворота своими силами, стоит учесть ряд важных факторов, а именно:
- Определенные сложные детали, нужные для процесса сборки, нельзя сделать без специального соответствующего оборудования. Если говорить о самодельных воротах, у них есть ряд недостатков: они отличаются большим весом, холодные, а также с высокой вероятностью будут пропускать холод в помещение.
- Утеплять полотно конструкции можно исключительно изготовленными для этого уплотнителями. Так, не утепленное полотно в итоге окажется куда дороже, чем то, которое заказано у специалистов.
- Многие владельцы, «мастера на все руки», в качестве утеплителя предпочитают использовать пенопластирол и минерально-ватное волокно, однако это незначительно влияет на потерю тепла по причине сквозняков.
- На материалы, транспортные расходы, покраску, а также работу токаря, который изготовит направляющие балки, вал, полотно и пружины, придется потратить значительную сумму денежных средств. В итоге человек выкинет гораздо больше денег, чем если бы он заказал уже сделанный комплект, готовый к установке. К слову, при соблюдении последовательности действий, установка конструкции легко осуществляется самостоятельно.
Далее предлагаем ознакомиться с пошаговым алгоритмом изготовления секционных ворот.
Прежде всего, нужно удалить или должным образом закрепить все покрытия, которые являются непрочными. Далее проверяют, насколько ровный пол (погрешность составляет 1 миллиметр). Если все в норме, можно подготавливать панели к установке. Помните, ворота дорогостоящие, поэтому с полотном необходимо обращаться максимально деликатно, чтобы избежать повреждений.
Нужно нанести отметку, где планируется крепить направляющие. Сначала закрепляются фиксирующие профили по вертикали с помощью монтажных саморезов. Потом крепятся направляющие по горизонтали. Следите за тем, чтобы «рельсы» находились под прямым углом друг к другу, так как в противном случае полотно не будет подниматься.
Если не приобреталось готовое изделие, следующий этап – сборка панелей
Тут важно провести грамотные замеры, чтобы не было перекоса.
На этом этапе закрепляют элементы управления, а также ставят подъемный механизм. Перед работой стоит тщательно изучить инструкцию фирмы-производителя
В целом, эта процедура, при точном следовании правилам, не доставит труда.
В самом конце, когда панели уже установлены, происходит фиксация дополнительных элементов (сюда относятся петли, замки и ручки). Помните, что замок тут играет большую роль, так как именно благодаря ему будет обеспечиваться защитная функция ворот, поэтому экономить на нем не стоит.
Завершающий этап – установка пружин, отвечающих за открытие и закрытие ворот. Тут нужно зафиксировать ограничители движения полотна.
При грамотном подходе и соблюдении правил установки на работу потребуется не более одного дня.
Особенности установки гаражных ворот своими руками
Секционные ворота состоят из секций, соединяющихся петлями. По краям проема прикреплены шины, которые заходят под перекрытие. Именно по ним движутся секции. Когда гараж открывается, они, сворачиваясь, размещаются вверху.
Панели можно выбрать на вкус автолюбителя, но желательно прочесть перед приобретением отзывы. Как рисунок, так и цвет бывают очень разнообразными. Заводы, которые их изготавливают, предлагают множество вариантов. Полимерное покрытие надежно защищает их от нежелательного воздействия коррозии. Секционные ворота оборудованы специальными панелями термоизоляции. Поэтому они хорошо и бесшумно работают при любой температуре – от -50 до +60 градусов.

Существуют некоторые правила, которых желательно придерживаться при установке секционных гаражных ворот:
- При работе пользоваться специальными чертежами;
- Работать с качественными материалами, и только заводского производства;
- Максимально точно вычислить размеры;
- Внимательно размещать детали, стараться это делать точно и правильно.
Приступая к монтажу своими руками, нужно понимать, что этот процесс потребует много сил и терпения. Одному человеку с такой работой справиться не под силу. Поэтому на помощь можно позвать друзей, желательно тех, кто в подобной работе неплохо разбирается. Ведь даже пользуясь инструкцией, одному человеку будет невероятно сложно определить размеры и составить чертежи правильно.
Не следует забывать и об осторожности. В безопасности можно будет себя чувствовать, только надев на голову шлем, а на руки перчатки
И обязательно нужно защитить глаза.
Для этого можно использовать специальные очки. Перед работой нужно проверить наличие гаечных ключей, отверток разных видов, молотка, уровня, дрели и рулетки.
Рекомендации по подготовке проема для установки гаражных ворот
Определиться с размерами проема лучше на этапе проектирования или начала строительства гаража. Это позволит оптимизировать расходы в процессе строительства, а также обеспечит максимальное удобство эксплуатации гаражных ворот.
Чтобы установка ворот не доставила ненужных хлопот необходимо заранее:
- Определить размеры проема.
- Подобрать материал стен.
- Подвести электричество к месту установки электропривода для ворот.
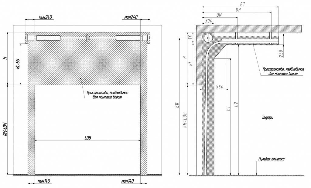
1. Размеры проема
Основными габаритами гаража, которые необходимо учесть для установки секционных ворот, являются:
а) Ширина проема; b) Высота проема; с) Глубина гаража; d) Высота перемычки (притолоки); е) Ширина пристенков.
a) Ширина проема
Для комфортного въезда в гараж проем должен быть на 60-80 см шире кузова автомобиля (с учетом боковых зеркал).
- для легкового автомобиля – оптимальная ширина ворот 2,4 — 2,7 метра;
- для джипа или микроавтобуса – оптимальная ширина 2,8 — 3 метра;
- для двух легковых автомобилей – оптимальная ширина от 5 метров;
Для удобства посадки и высадки пассажиров ширина гаража должна быть на 20-30 см больше ширины автомобиля с открытыми дверьми.
Если вдоль стен планируется размещение стеллажей для хранения инструмента и инвентаря, то ширина гаража должна быть увеличена на ширину стеллажей.
b) Высота проема
Высота проема должна быть на 20-30 см больше высоты автомобиля.
Обратите внимание, что в воротах с ручным управлением имеется свес нижней воротной панели в проем, в результате чего высота проезда уменьшается на 15-20 см. Поэтому для ворот с ручным управлением высота проема должна быть больше высоты автомобиля на 35-50 см
При расчете высоты проема не забудьте учесть возможность установки антенны или багажника на крыше автомобиля.
c) Глубина гаража
Очень часто на эту величину не обращают внимание, а это может привести к серьезным трудностям на этапе монтажа ворот. Если глубины гаража недостаточно, то ворота упрутся в заднюю стенку и не смогут полностью открыться, либо может не хватить места для установки электропривода
Глубина гаража = Высота проема + 100 см для монтажа электропривода
d) Высота перемычки (притолоки)
Перемычка (притолока) – это расстояние от верхнего края проема до потолка. Она необходима для монтажа направляющих профилей и пружинного механизма ворот.
Если площадь ворот будет менее 8 м2, рекомендуем установить высоту перемычки в пределах от 130 мм до 500 мм.
Для изделий площадью более 8м2 и для ворот со встроенной калиткой минимальный размер перемычки должен быть не менее 210 мм.
Это позволит установить ворота без дополнительной наценки за нестандартный тип монтажа.
e) Ширина пристенка справа и слева от проема
Боковые пристенки — расстояния от границ проема до боковых стен помещения. Они нужны для крепления вертикальных направляющих, по которым движется полотно при подъеме и опускании.
Боковые пристенки должны быть не менее 125 мм.
В противном случае придется серьезно дорабатывать проем, что потребует дополнительного времени и ресурсов.
2. Материал стен
Проем рекомендуем выполнить из сплошных материалов: бетон, натуральный камень, цельный кирпич.
В случае выполнения проема из пустотелых материалов рекомендуем оформлять проем конструкцией из металлического фасонного профиля.
Если проем выполнен из пустотелых материалов, и его доработка не представляется возможной, то монтаж ворот осуществляется с помощью специализированных метизов (дюбели для газосиликатных, керамзитобетонных блоков и т.п.). ГК «Алютех» для таких случаев предлагает специальный крепеж от одного из мировых лидеров – компании Fischer (Германия).
3. Подводка электричества к месту установки электропривода для ворот
Автоматика для подъемных ворот облегчает процесс управления и делает эксплуатацию ворот максимально комфортной.
Если вы планируете управлять воротами с помощью электропривода и пульта дистанционного управления, то необходимо заранее подвести кабель питания 220В в зону потолка и установить там розетку.
Розетка устанавливается по центру проема в зоне максимального входа ворот внутрь помещения.
Проектирование и расчет стройматериала
Чтобы смастерить секционное полотно, нужны сэндвич-панели, которые состоят из листов оцинкованного металла, утепленных между собой. В качестве материала для утепления можно взять разные утеплители. Так, на эту роль отлично подойдут пена или полиэстер. Если говорить о самих панелях, они производятся исключительно в промышленных условиях.
К слову, на предприятиях также наносится и само декоративное покрытие
Поэтому, если вы приняли решение самостоятельно сделать секционные ворота, вам необходимо особое внимание уделить проектированию и расчету строительных материалов
Так, например, стоит точно знать габариты транспорта, чтобы, согласно им, заказать ворота подходящего размера.
Виды автоматических ворот
Если вы желаете купить автоматические ворота, то можно отдать предпочтение откатным, распашным, промышленным конструкциям и т.д. Здесь надо сразу определиться с моделью, ведь можно сделать гараж на 2 машины с двумя воротами, а можно применить и просто откатные. Здесь надо определяться от условий установки и типа помещения.
Распашные двустворчатые ворота
Автоматика для распашных ворот
Сразу хочется заявить, что эти ворота принято считать наиболее распространенными на сегодняшний день, ими пользовались еще во времена Советского Союза.
- Такие ворота отличаются простотой изготовления, а это значит, что приобрести их сможет каждый желающий, так что, стоит присмотреться к ним внимательно. Одна створка ворот данного типа выполняется с дополнительным дверным проемом, а ведь это весьма удобно, если, например, вам нужно попасть в гараж за инструментом.
- Нельзя не добавить, что прочность и простота конструкции считаются важными преимуществами таких ворот, кроме того, изготовить и установить их можно самостоятельно, если есть желание и вы знаете принципы сварочной работы (см. Как установить автоматические гаражные ворота распашные и автоматику на них).
- Приобретая современные двустворчатые ворота, вы оцените и то, что они оснащены надежными и прочными многоригельными замковыми механизмами, а это значит, что ворота действительно надежны и безопасны.
- Недостатки таких ворот заключаются лишь в большом весе, кроме того, потребуется пространство.
Секционные гаражные ворота
Гараж на 2 машины с двумя воротами секционными
Многие желают иметь именно такие ворота, так как они, действительно, смогли завоевать доверие потребителей:
- Например, конструкция их является предельно простой: она оснащена металлическими блоками, которые наполнены пенополистиролом. Поэтому и вес у них не значительный.
- Сами блоки обладают видом продольных панелей, они складываются, словно гармошка, в местах соединений. Это значит, что секционные ворота оказываются под потолком вашего гаража, что удобно. Устанавливается такая конструкция внутри помещения.
- Такие конструкции оснащены еще и датчиками безопасности, а это значит, что они способны блокировать опускание ворот, если на их пути встречается препятствие, что, конечно, приятно.
Преимущества секционных гаражных ворот:
- Вы обязательно оцените прекрасное выполнение механизма поднятия ворот данного типа. Если даже поломался пульт, то знайте, что такие ворота можно будет открыть вручную, никаких проблем здесь быть не должно.
- Вы можете забыть о дополнительном пространстве, так как конструкция крепится к потолку, а это весьма удобно, так что, это преимущество вы оцените.
- Вас ждет и широкий ассортимент цветовой гаммы, невысокая стоимость, прекрасные теплоизоляционные свойства и т.д.
Сегодня такие ворота действительно востребованы среди владельцев гаражных помещений, но часто их можно встретить и на производственных, складских помещениях.
Рулонные автоматические ворота
Если говорить о такой конструкции, то cтоит отметить, что сфера их применения не ограничивается лишь гаражными помещениями, это означает, что ворота распространены и популярны.
Применение рулонных ворот для гаража
- Такие ворота, как правило, оснащены специальным электрическим приводом, он способен выполнять функцию автоматического подъема конструкции.
- Вы оцените простой монтаж, пользование такой конструкцией и демократичную стоимость, а управлять ею можно с легкостью, ведь для этого есть дистанционный пульт.
- Но вот низкие показатели прочности и гидроизоляции считаются серьезными недостатками такой конструкции, так что, не забывайте о них, когда вы пожелаете приобрести такие ворота.
- Рулонные ворота, действительно, смогли приобрести особую популярность среди потребителей, ведь часто их можно встретить как на производственных, так и промышленных площадках.
Подъемно – поворотные ворота
Эти гаражные ворота могут похвастаться отличными качественными показателями, если сравнивать их со всеми остальными видами ворот, о которых нами было сказано.
Схема работы подъемно-поворотной конструкции
Итак:
Такие ворота принято изготавливать из цельнометаллического листа, а это значит, что они отличаются высоким уровнем тепло – и гидроизоляции, что немаловажно.
Нельзя не оценить и простоту монтажа, которая серьезно влияет на скорость выполнения работы. Такие ворота отличаются надежностью и долговечностью
Вы можете быть уверены, что они способны служить долгое время, а ведь это не может не радовать.
Несмотря на то, что такие конструкции стоят недешево, помните, что цена вполне оправдывает себя, ведь конструкция будет служить долгие годы.
Дополнительные элементы для расширения функционала
Каждый покупатель может дополнить конструкцию ворот на свое усмотрение, чтобы использование стало еще более комфортным. Один из таких дополнительных элементов – калитка.
Калитки открываются только наружу и могут комплектоваться линейными доводчиками, вмонтированными датчиками положения, козырьками для защиты от дождя, антивандальными ручками из металла, устройствами для исключения провисания створок. Калитка может быть с плоским порогом (высота 20 м), высоким или в стандартном исполнении (145 и 100 мм соответственно). От попадания пыли внутрь помещения надежно защитит двойная щетка, установленная в нижней секции калитки.
Секционные ворота с калиткойКалитка с высоким порогом
«Умная» автоматика не позволит открыть ворота, если будет распахнута дверь калитки. Это гарантирует дополнительную безопасность и надежность всей конструкции в целом.
Калитка в гаражные ворота
Калитка позволяет экономить ресурсы секционных ворот (у каждой заводской конструкции есть определенный запас прочности, выражающийся в гарантированном числе подъемов и опусканий створки). Если необходимо просто попасть внутрь гаража, не обязательно приводить в движение подъемный механизм ворот. Таким образом, не только экономится электроэнергия, но и тепло остается внутри помещения.
Гараж на два автомобиля. Ворота с калиткой и без
Обрамление калитки обычно предлагается в двух оттенках: серебристом и сером. Впрочем, всегда можно заказать окрашивание в любимый цвет.
Встроенная калитка, вид изнутри
Не нравится калитка? Смело устанавливайте боковую дверь. Входная конструкция монтируется в отдельный проем рядом с воротами. Выгодные преимущества двери:
- многообразие типов монтажа;
- широкая цветовая палитра дверей, коробок, фурнитуры;
- возможность дополнить дверное полотно классическими или панорамными окнами, доводчиком, вентиляционными решетками.
Тандем ворот и двери дополнит и украсит фасад здания.
Секционные ворота и боковая дверь
В классическом варианте секционное полотно глухое, но если необходимо снизить расходы на освещение гаража в дневное время, то стоит выбрать ворота с окнами.
Так, например, компания «Алютех» предлагает круглые (диаметр 322 мм), квадратные (322х322 мм) и прямоугольные (522х322 мм) окна с акриловым однокамерным стеклопакетом толщиной 18 мм.
Дополнительные декоративные элементы для прямоугольных окон:
- комплект вставок «рассвет»;
- вставка «прямой крест».
Оконные рамы и вставки изготавливаются белого и коричневого оттенков.
Цены на ворота
ворота
Декоративные накладки на окнаВоротное полотно и дополнительная дверь оснащены окнами. Для декорирования применены вставки «рассвет»
Не стоит забывать о замках. Элемент, который часто входит в базовую комплектацию – задвижка. Актуально при наличии дополнительного входа в гараж, так как задвижку можно закрыть и открыть только изнутри помещения.
Задвижка для запирания ворот изнутри
Замок «Антипаника» для калитки позволит открывать ее изнутри простым нажатием ручки, даже если снаружи замок был закрыт на все обороты.
Устройство экстренного открывания дверей для секционных ворот
Чтобы открывать и закрывать ворота, находясь на улице, лучше выбрать замок ригельного типа или установить комплект автоматики. Например, комплект автоматики Alutech An-Motors серии ASG обойдется в 9360 – 10 490 рублей.
Замок ригельного типаПривод AnMotors ASG 600 3KIT-L
Современная автоматика работает даже при температуре минус 20 градусов.
Если в регионе наблюдаются частые перебои с электроснабжением, рекомендуется установить внешнюю разблокировку электропривода (например, «Алютех» предлагает комплект механизма разблокировки в качестве дополнительно опции всего за 915 рублей). Установив этот элемент, можно быть полностью уверенным, что ворота не будут заблокированы при очередных перебоях электроэнергии. Впрочем, если в гараж есть дополнительный вход, то открыть ворота будет легко с внутренней стороны.
Механизм разблокировки электропривода
Типы подъемных ворот
Все представленные на сегодняшний день гаражные ворота подъёмного типа можно разделить на два вида:
- поворотные;
- секционные.
Установка подъемно-поворотных ворот представляется наиболее разумным решением в ситуации, когда:
- уровень размещения притолоки гаражного проема слишком занижен или же она вообще отсутствует;
- перед владельцем стоит задача обеспечить конструкции ворот повышенную надежность;
- у владельца возникло желание оборудовать свой гараж более современным в плане оформления вариантом ворот.
Разумно задуматься о монтаже секционных ворот тогда, когда в гараже имеется достаточное пространство, чтобы переводить конструкцию из вертикального положения в горизонтальное. По технологии монтажа они схожи с поворотными: в качестве места их размещения выступает внутренняя часть проема. Основу конструкции полотнища ворот образует несколько секций, которые сохраняют подвижность относительно друг друга. При использовании подобной конструкции доступ к гаражу открывается за счет перемещения секций вверх по направляющим, установленным на поверхности стен и потолка гаража.
Установка секционных ворот
Если у вас возникла идея сделать секционные ворота своими руками полностью с самого начала, то рекомендуем отказаться от этого замысла. Их отличает наличие сложной конструкции, а потому вы вряд ли сможете изготовить эти ворота так, как необходимо в соответствии с технологией. Вам будет гораздо проще, если вы купите уже готовые ворота, установить которые самостоятельно способен любой владелец. Во избежание проблем во время выполнения этой работы следует помнить о некоторых важных моментах:
- работы по установке следует выполнять с использованием заводских расходных материалов. Применение же более дешевых аналогов неизвестного качества может негативно отразиться на качестве установки;
- во время монтажа следует ориентироваться на оригинальные чертежи изготовителя;
- позаботьтесь о том, чтобы все элементы оказались на своем месте. Погрешности их размещения могут повлиять на эксплуатацию устанавливаемых ворот.
https://youtube.com/watch?v=Z–6UwrU5Z4
Процесс монтажа секционных ворот
Начинают работы с подготовки проема, следуя требованиям изготовителей секционных ворот. Следует помнить, что согласно их заверениям, купленные у них изделия будут демонстрировать безотказную работу при условии, что притолока и заплечники проема располагаются точно в одной плоскости. При этом недопустимым является перекашивание вертикали и горизонтали указанных элементов, которые должны образовывать правильный прямоугольник. Чтобы было проще соблюсти требование перпендикулярности и параллельности следует использовать измерительный уровень.
Нужно удостовериться, что в гараже при полном открытии проема будет достаточно места для установки полотнища. Подобную проверку следует выполнять еще тогда, когда вы будете определяться с вариантом конструкции.
Важно помнить и о том, что ворота своим весом будут оказывать давление на потолок и притолоку. По этой причине для их изготовления следует использовать материалы повышенной прочности
Этими же свойствами должен обладать и материал заплечников, поскольку они будут выступать местом установки направляющих ворот.
Вы легко справитесь с установкой автоматических ворот своими руками, если имеете опыт в работе с электрооборудованием. Если же вы еще не успели обзавестись на своем участке гаражом, то в качестве альтернативы можно рассмотреть раздвижные ворота, которые также могут быть оснащены автоматическим приводом.
Закончив работу по подготовке проема, можно выбирать место для крепежных и направляющих элементов.
Очень важно правильно выполнить сборку секции. Первой следует устанавливать нижнюю панель
Старайтесь делать все максимально аккуратно, обращая особое внимание на перекосы и зазоры между отдельными элементами конструкции, которые должны отсутствовать. Запрещается устранять их при помощи подручных средств в виде монтажной пены либо дощечек
Старайтесь в точности выполнять требования инструкции по сборке, так как при нарушении повышается вероятность того, что в какой-то момент в работе ворот возникнет неисправность.
Далее можно переходить к размещению полотна на свое место
Особое внимание уделите тому, чтобы оно максимально плотно прилегало к основанию. Это делается посредством изменения положения регулировочных кронштейнов
Стандартный вариант конструкции подъемно-секционных ворот предусматривает наличие уплотнителей, которые могут быть выполнены на основе резины и полимерного каучука. Местом установки резинового уплотнителя будет выступать сторона полотнища, прилегающая к полу. Что касается каучукового элемента, то его следует крепить по верху и к боковым сторонам.
Завершив работу по установке ворот, можно заняться креплением ручек, замков, засовов, а также иных элементов и системы автоматизации.
Не забывайте, что процедура монтажа своими руками подъемно-поворотных и секционных ворот имеет свои особенности. Чтобы выбрать наиболее подходящий вариант, исходите не только из собственных предпочтений, но и из размеров вашего гаража.
https://youtube.com/watch?v=Ld7D_nxovAQ
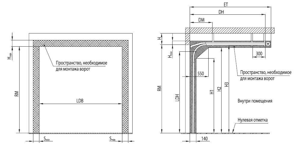
Правило 1. Все решает притолока.
Какая у вас притолока? Так начинается общение с человеком, решившим заказать секционные ворота. Дело в том, что для размещения конструкции ворот требуется место справа, слева, и больше всего, над проемом. И да, это место над проемом ворот и есть притолока.
Та самая пресловутая притолока.
Какая она должна быть, зависит от следующих параметров
У вас проем до 8м2
Для небольших бытовых гаражных ворот площадью до 8м2 устанавливаются пружины растяжения. Высота притолоки должна быть не меньше 100мм (для ручного подъема) и 125мм для ворот с приводом. Это в теории. А на практике, что бы не вылавливать миллиметры, делайте 150мм.

Пример ворот с пружинами растяжения. Видно как мало места ворота занимают над проемом.
У вас проем больше 8м2

Пример ворот с торсионными пружинами. Места над проемом требуется значительно больше.
Вы хотите встроить калитку
Для всех ворот с калиткой, независимо от размера, нужна притолока не меньше 210мм, (стандартный монтаж).
Ворота с калиткой всегда идут с торсионными пружинами.
Что делать, если у вас высокая (больше метра) притолока?
Если у вас притолока 500мм и больше, вам сказочно повезло, и вам доступен так называемый высокий монтаж, когда ворота сначала поднимаются максимально к потолку, а уже затем уезжают параллельно потолку. См. рисунок, так понятнее.

Высокий монтаж. Заводской чертеж.
Преимущество: ворота не висят над головой, не нужны длинные подвесы.
Недостатки: высокий подъем доступен не во всех сериях, и за него нужно доплачивать 8% от стоимости ворот.
Что делать, если у вас низкая (меньше 210мм) притолока?
А если у вас притолока меньше 210мм, а нужны ворота больше 8м2, или нужна калитка? Вам поможет низкий монтаж!
Это когда вал с пружинами располагается сзади, в глубине гаража (см. рисунок). В этом случае минимальный размер притолоки будет 100-130мм, в зависимости от типа управления.
Недостаток: доплата 5%.

Низкий монтаж. Заводской чертеж.





































