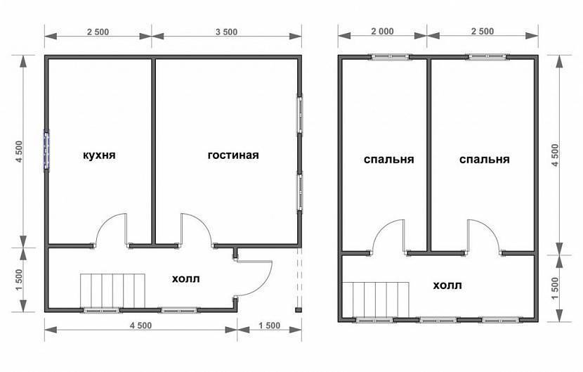
Расчёт материалов и список инструментов
В качестве примера будет рассмотрен расчёт для каркасной бани наиболее распространных размеров. Каркас изготавливается из бруса, размер конструкции — 5х4 м. Основание будет столбчатым армированным.
Для каркасной конструкции можно использовать облегченный фундамент из асбестоцементных труб
Для отделки стен внутри и снаружи применяется вагонка хвойных пород деревьев. Крыша будет двускатной, покрытие — металлочерепица.
Актуальным моментом является выбор древесины. Материал дложен быть просушенным. Больше всего подойдут липа, лиственница или осина. Данные породы имеют невысокую теплопроводность, они способны длительный период времени сохранять первоначальную форму строения. Стены возводятся из досок толщиной 2—3 см. Для внешней обшивки подходят рейки из лиственницы или сосны.
Столбчатое армированное основание по стоимости и надёжности является оптимальным вариантом для каркасной постройки.
Столбчатый армированный фундамент подходит для возведения каркасных бань в большинстве регионов
Его можно использовать в большинстве регионов. Понадобится подготовить материалы в следующем количестве:
- бетон — 2 м3;
- обрезные доски для каркаса — 0,3 м3;
- арматурные прутья — 80 м.пог.
Каркас можно изготовить из досок, кусков фанерных листов или ОСП. Если грунт на территории строительства глинистый, то опалубку делать не нужно.
Самой сложной и финансово затратной деталью бани является каркас. К приобретению материалов на данном этапе нужно подходить взвешенно. Список необходимых материалов:
- брус 120х120 мм — 5,3 м3;
- минеральная вата толщиной 10 см — 36 м2;
- материал для пароизоляции — 40 м2;
- вагонка из дерева — 70 м2;
- материал для гидроизоляции — 40 м2.
Чтобы сэкономить, вместо брусков можно приобрести доски 50х100 мм.
Для экономии финансов можно использовать обрезные доски 50х100 мм в процессе изготовления каркаса
Брус должен быть второго сорта и ниже, доска может быть исключительно первого сорта. Обшивку стен с внешней стороны можно сделать не деревянной вагонкой, а пластмассовыми листами или профнастилом.
Пол изготавливается из обрезной шпонированной доски. Потолок следует обить вагонкой. Если есть желание сэкономить, для теплоизоляции можно использовать минеральную вату. Список материалов:
- обрезные доски — 1,8 м3;
- доски 150х50 мм — 0,2 м3;
- плинтус — 20 м.пог.;
- минеральная вата — 20 м2;
- вагонка из дерева — 20 м2.
Сэкономить удастся на настиле покрытия чердака. Если не планируется его использовать, то минеральная вата может быть закрыта необрезной доской или отрезками плит.
Крыша двускатная, чердак можно использовать для хранения инструментария.
Оптимальным вариантом каркасной конструкции является двускатная крыша
Утеплять крышу не нужно. Стропила будут висячими. Понадобятся такие материалы:
- водосточная система — 1 комплект;
- рейки для стропил — 0,2 м3;
- планки для обрешётки — 0,1 м3;
- карнизные рейки — 0,1 м3;
- металлочерепица — 20 м2.
В бане довольно часто вместо водостока оборудуют отмостку по периметру с помощью цементно-песчаного раствора.
Список материалов, которые также будут необходимы:
- трубы из асбеста;
- саморезы;
- гвозди;
- скобы;
- цемент;
- гравий или песок.
Понадобятся такие инструменты:
- угольник;
- строительный уровень;
- рулетка;
- электродрель;
- набор отвёрток;
- молоток;
- плоскогубцы.
Важно продумать все архитектурные и строительные задачи, к которым можно отнести:
- внутреннюю обшивку банной постройки;
- выбор оптимальных материалов для строительных работ;
- действия, которые требуются для обеспечения безопасного использования конструкции.
После подготовки инструментов и материалов можно переходить к строительным работам.
Вальмовая крыша
Как только возведен основной несущий каркас каркасного садового домика, можно приступать к строительству стропильной системы крыши.
Конек вальмовой крыши с центральными стропилами.
С типом крыши и ее уклоном мы определились еще на стадии составления проекта будущего дома. Маленький каркасный домик будет иметь вальмовую крышу, с минимальным уклоном для того типа крыши в 20 градусов. В вальмовой крыше два ската имеют трапециевидную форму, два других – треугольную форму.
Каркасный летний домик имеет вальмовую крышу, что обеспечивает дополнительную защиту всей конструкции за счет того, что все скаты наклонные.
На первом этапе возведения стропильной системы производится монтаж мауэрлата – специального деревянного бруса или доски, который устанавливается по всему периметру каркасных стен. В данном случае мы обошлись без муэрлата, а нагрузку распределили по верхней обвязке, которая имеет хорошую жесткость из-за того, что стоит на торцевой части доски.
Силовой каркас вальмовой крыши.
На следующем этапе монтируется коньковый прогон, размер которого должен быть рассчитан правильно, так как именно на эту составную часть крыши приходится основная нагрузки. Коньковый прогон длиной два метра и центральные стропила собирались на земле, и только потом поднимались наверх и монтировались.
После фиксации конькового прогона занимаются монтажом диагональных стропил, которые, как и сам конек, сделаны из доски 150 на 50 мм. Диагональные стропила упираются одним краем в конек, а другим краем в угол, где сходится верхняя обвязка дома. Все крепления производятся с помощью обычных металлических гвоздей, что никак не сказывается на прочности конструкции.
Когда силовой каркас вальмовой крыши готов можно продолжать строить крышу дальше. Крепятся промежуточные стропила и нарожные стропила, которые мы сделали из двух сколоченных между собой дюймовок.
Стропильная система вальмовой крыши.
После установки стропильной системы, необходимо монтировать обрешетку вальмовой крыши. Мы ее выполнили из дюймовки и начали прибивать с карнизного свеса по направлению вверх к коньку, с одинаковым расстоянием между досками обрешетки.
Обрешетка стропильной системы крыши.
Одноэтажный каркасный домик можно накрыть кровельным покрытием и использовать обычный металлопрофиль. С таким кровельным материалом легко работать, он покрыт специальными веществами, защищающими от коррозии и преждевременного разрушения. К другим преимуществам данного кровельного материала можно отнести небольшой вес, доступную стоимость и огромный цветовой ассортимент.
Перед установкой материала необходимо побеспокоиться о дополнительной защите конструкции. Для этих целей можно использовать гидроизоляционный материал, который крепится непосредственно к стропильной системе металлическими скобами. Но мы его не применяли по той причине, что каркасный дом не будет утепляться.
Крыша из металлопрофиля.
Установка металлопрофиля начинается с торца крыши. Главное правильно установить первый лист, именно от него зависит расположение всех последующих. Первый лист металлопрофиля прикрепляется к коньковому прогону с помощью саморезов, все последующие укладываются внахлест с предыдущими листами и соединяются саморезами между собой.
Возведение дома
Для работы потребуются инструменты:

Инструменты для возведения каркасного дома.
- строительный уровень и рулетка;
- перфоратор;
- болгарка;
- дрель;
- молоток;
- гвоздодер;
- отвертки;
- лестница;
- лом.
Материалы:
- асбестовые трубы (высота 1,5 м);
- обработанный антипиренами и антисептиками брус (100х150х600 мм) длиной 6 м;
- брус 50х150 мм;
- доски;
- бетон;
- рубероид;
- анкерные болты;
- гвозди;
- нагели;
- плиты OSB;
- ДСП;
- утеплительные и гидроизолирующие материалы;
- гипсокартон;
- сайдинг;
- металлочерепица;
- коммуникации.
Строя каркасный дом своими руками, нужно придерживаться следующего порядка:
Статья по теме: Утепление пола пенопластом в деревянном доме с армированием

Установка стен каркасного дома.
- Для создания столбового фундамента каркасного дома в почве с шагом 70 см выполняют отверстия для труб (диаметр 20 см, глубина 1 м).
- Трубы вставляют в скважины, засыпая землей и хорошо ее утрамбовывая, затем внутрь каждой трубы заливают бетон.
- После высыхания бетона на фундамент в качестве основы каркаса укладывают брус, изолируя его рубероидом. Положение бруса контролируют при помощи уровня, закрепляют брусья анкерными болтами.
- На брус настилают доски базового пола.
- На пол с шагом 50 см устанавливают лаги, между которыми помещают маты утеплителя.
- Выполняют нижнюю обвязку, используя имеющие пазы (шаг 50 см, длина 10 см) брусьев. Края брусьев также соединяют с помощью пазов.
- Устанавливают нагели для крепления вертикальных стоек, высверливая под них отверстия в пазах. Затем на штыри надевают брусья (150х50 мм), начиная с монтажа угловых стоек.
- Вертикальные брусья последовательно связывают временными укосинами, сами стойки тщательно закрепляют.
- После установки всех вертикальных стоек аналогично верхней выполняют нижнюю обвязку, располагая пазы идентично. Верхнюю обвязку фиксируют гвоздями, длина которых на 10 см больше толщины брусьев обвязки.
- Временные укосы заменяют постоянными, которые, принимая на себя часть нагрузки, делают каркасный дом прочным.
Теперь основной каркас дома построен.
Завершают работу возведением крыши и отделкой здания:
- Потолочные балки (из бруса 150х50 мм) крепят к каркасу, располагая их над вертикальными стойками и стыкуя на торцах под углом в 50 градусов. Стропила сбивают гвоздями.
- Окончательно конструкцию укрепляют А-образной горизонтальной доской.
- Внутри дом 6х6 м оборудуют подпирающими балки перегородками, обозначающими границы внутренних помещений.
- С шагом в 10 см к потолочным балкам прикрепляют доски обрешетки двускатной крыши, которые должны выступать за стропила на 20 см.
- На обрешетку настилают гидроизоляцию, древесно-стружечные плиты и монтируют кровельный материал.
- Каркас снаружи обшивают OSB, производят его гидроизоляцию и отделку сайдингом.
- Прокладывают коммуникации, производят гидроизоляцию и стяжку пола.
- Утепляют чердак и устанавливают окна.
Статья по теме: Как штукатурить откосы на окнах: практические советы
Теперь можно оборудовать устройство стока дождевой воды и выполнить внутреннее обустройство каркасного дома.
Особенности, которыми отличаются каркасно-щитовые дома
Для того чтобы понять, что делает такими популярными среди застройщиков чертежи каркасных домов, необходимо разобрать некоторые их особенности:
Маленький вес, которым обладает дачный каркасный дом 4 на 6 метров, даже если он будет двухэтажным коттеджем или с мансардой. Ни для кого не секрет, что при возведении частных домов, львиную долю стоимости сметы на строительство занимает заложение фундамента. Как утверждают специалисты в области ценообразования и строители, стоимость основания под дом может достигать и тридцати процентов от стоимости всего строительства. Но такие затраты ждут лишь тех, кто собирается возводить капитальные строения, к примеру, дом из кирпича. А вот что касается каркасных коттеджей, то здесь дела обстоят более обнадеживающе.
Проекты и чертежи каркасных домов с мансардой, как правило, предполагают возведение облегченных типов фундаментов. Это соответственно будет способствовать тому, что цена на строительство уменьшится. Обычно в проекты закладывается свайный фундамент. Кроме этого, легкий вес каркасных домов способствует тому, что нагрузки на грунт будут минимальными. Следовательно, двухэтажный каркасный дом или одноэтажный коттедж с мансардой могут быть возведены на участках с любым типом грунта. Несмотря на это, если есть неблагоприятные условия на участке, необходимо заказать чертеж и проект для того, чтобы специалисты оценили все возможные риски. Цена строительства из-за этого, конечно же, возрастет, однако, можно будет не беспокоиться о проблемах в будущем;
- Простота монтажных работ. Возведение каркасных домов производится по очень простой технологии, исключающей любые мокрые процессы, соответственно цена на монтаж будет низкой. Монтаж заключается в конструировании каркаса, на который впоследствии крепится обшивка. Эти работы могут быть выполнены бесплатно своими руками, и совсем необязательно для этого нанимать профессиональных строителей. Пошаговая инструкция по строительству может быть легко найдена в интернете. Собирать такие дома можно на ограниченной площади, что очень привлекает строителей, занимающихся продажей каркасных домов. Такая технология строительства домов позволяет выполнять любые желания застройщика, и постройка может быть практически любой формы;
Дачный двухэтажный дом или одноэтажный дом с мансардой не дает усадки. Усадка происходит из-за наличия в деревянных строительных материалах влаги, что является серьезным недостатком жилых домов из дерева. Из-за этого отделочные работы могут начинаться лишь по прошествии некоторого времени, которое в определенных случаях может достигать и одного года.
Что касается каркасных домов, то здесь отделочные работы могут начинаться почти сразу;
Отличные эксплуатационные качества и долгий срок службы. Каркасные дома очень хорошо держат тепло, что способствует экономии тепловой энергии. Отапливать каркасные дома можно в экономичном режиме, то есть основное время лишь поддерживать тепло. Стены каркасных домов «дышат», поэтому микроклимат в жилище будет очень комфортным для домочадцев. Благодаря этому, теплоноситель может сильно не нагреваться, а также может быть снижено время работы кондиционеров в жаркую погоду. Отделка стен может проводиться любым отделочным материалом. Каркасная конструкция не предполагает деформации при движении грунта или при просадке под собственным весом. Если производится перепланировка в каркасном доме, можно не опасаться за неравномерность распределения нагрузки на фундамент;
- Низкая стоимость монтажа. Как уже отмечалось выше, для свайного фундамента необязательно тщательно изучать свойства грунта, отчего повышается цена строительства. Кроме этого, трудозатраты возведения каркасного дома гораздо меньше по сравнению, к примеру, с кирпичными постройками. Также стоит отметить низкую стоимость строительных материалов, из которых собирается фундамент и каркас строения. Каркасные здания можно без труда отремонтировать. Например, при необходимости добавления в конструкцию основания дополнительной сваи можно с минимальными затратами выполнить эту процедуру, что не скажешь о ремонте ленточных фундаментов, где цена ремонта ощутимо бьет по карману. Что касается ремонта стен, то здесь дела также обстоят гораздо проще, нежели в случае с ремонтом домов из сруба или кирпичных домов.
Каркасные дома 6 на 6 с мансардой
Основным преимуществом каркасного дома 6х6 с мансардой является увеличение полезной площади практически при одинаковых затратах с одноэтажным жильем. Мансарда не является полноценным этажом, а ее ограждающие конструкции объединены с кровлей. Большая часть расходов уйдет лишь на увеличение площади кровли и на отделку внутренних стен.
Пример планировки каркасного дома 6х6 с мансардойИсточник karkasnik-stroy.ru
Как эффективно составить планировку каркасного дома 6х6 с мансардой
Зачастую дом 6 на 6 с мансардой, также как и двухэтажный, предусматривает, что все помещения общего пользования будут располагаются на первом этаже, включая санузел, а комнаты для отдыха – на втором. Недостатком является высота потолков в помещениях, расположенных на мансардном этаже, она будет ниже, чем в основной части дома.
Профессиональный проект
- Схема фундамента;
- Разворот перекрытий и стен каркасного дома;
- План установки стоек и стропил;
- Схема местоположения оконных и дверных проемов;
- Мансарда или план второго этажа;
- Схема разводки электричества, систем водоснабжения, канализации, вентиляции и отопления во всем доме.

Планировка каркасника 6×6 с террасой.
Планировка дома 6 на 6 метров может быть как свободной с дополнительными стойками укрепления, так и покомнатной. Оптимальным считается создание на первом этаже дома помещений гаража в дополнительной пристройке или полуподвальном помещении, большой кухни-столовой и гостиной зоны.
Можно предусмотреть санузлы на первом или мансардном этажах, скрытые системы хранения – кладовые, гостевые комнаты. Второй этаж или мансарда дома 6 на 6 зачастую используется как спальная зона из одной или двух комнат.
На заметку
При создании проекта постарайтесь придерживаться прямых линий, возведение эркеров или домов с “косыми углами” может нести дополнительную нагрузку на фундамент и создаст сложности при закладке утеплителя. Меньше углов и скосов – меньше возможных щелей в каркасного доме.
Как построить каркасный второй этаж

Продолжаем цикл статей на тему “Как построить дом”. Вот мы и добрались до второго этажа каркасного дома. Мы уже определили в прошлых статьях, что первый этаж каркасного дома вместе с фундаментом нам обойдётся максимум в 350 000 рублей.
На этом этапе строительство основной части дома в принципе можно было бы и закончить, осталось бы добавить односкатную крышу, а это ещё 30000 рублей, вставить окна и двери, и можно заниматься благоустройством, живя в этом доме, и по мере сил и возможностей доделывать всякие разные мелочи.
Хотя в этом есть и своё рациональное зерно. Зачем городить два этажа сразу при дефиците денег, когда можно построить один этаж но капитально, то есть до конца, а уж потом по мере необходимости и возможностей построить второй этаж. Причём, при строительстве дома, я взял не самый экономичный вариант по расходу материалов. Можно было бы примерно тысяч 50 сэкономить как минимум, и на эти деньги построить двускатную крышу или мансарду.
Стены второго этажа каркасного дома
Строительство стен второго этажа не чем не отличается с строительства стен первого этажа.
Второй этаж каркасного дома
К тому же задача у нас намного упростилась, мы закончили гараж.
Также как и на первом этаже мы сделаем верхнюю обвязку каркаса стен.
Итого на стены мы потратим 19500 рублей.
Утепление стен и потолка каркасного дома
Итак площадь стен второго этажа у нас составляет порядка 100 кв/м. Площадь потолка составляет 60 кв/м.
Второй этаж каркасного дома своими руками
Как мы выяснили ранее, цена утеплителя толщиной 150 мм стоит порядка 250 рублей за кв/м. Итого мы потратим на утеплитель 40 000 рублей.
Общая статья расходов на утепление стен и потолка составляет 46000 рублей.
OSB на фасад потолок и черновую крышу
Площадь стен второго этажа у нас составляет 100 кв/м, цена osb составляет 200 рублей за кв/м. Получаем 20000 рублей.
Площадь потолка и черновой крыши в общей сложности 120 кв/м. Итого на osb потратим 24 000.
Итог затраты на осб 44000 рублей.
Односкатная крыша каркасного дома
В принципе, на этом этапе опять можно сэкономить, сделать крышу прямой. Но экономия тут довольно призрачна поэтому сделаем как по проекту. Хотя мне нравятся дома с прямой крышей и мы обязательно сделаем такой дом. И так, нам понадобится 34 доски на фермы по 300 рублей. Получим расходов 10200 рублей.
Второй этаж каркасного дома
Второй этаж каркасного дома
Кровля 170 рублей кв/м. на кровлю нам понадобится порядка 72 кв/м. металлочерепицы. Итого на металлочерепицу нам понадобится 12240 рублей.
Крыша нам обойдётся в 35 000 рублей.
Итог на возведение второго этажа у нас получается на материалы 155440 рублей.
Второй этаж каркасного дома ИТОГ
Итого 524 000 рублей. что в принципе не далеко от заявленной стоимости. Как я же говорил, что можно ещё было с экономить и мы смело уложимся в эту сумму. Но кривить душой мы не будем, и признаем что 500 тысяч для такого дома это конечно мало. Тут следует прибавить ещё окна и двери это порядка ещё тысяч 50. Отделка внутренних стен гипсокартоном это ещё приблизительно тысяч 30. Покраска фасада, тут цены варьируются.
Электрика. Как показал подсчёт, что такой дом по скромным прикидкам обойдётся в тысяч 700. Но смысл в том, что бы начать строить такой дом при ограниченном бюджете, нужно иметь на руках 500 000 рублей. И не платить огромные проценты банку а достраивать по мере возможности уже живя в этом доме. Достаточно построить один этаж под ключ, а второй пристроить по мере возможности.
И всё таки не будем забывать что площадь дома будет 130 кв/м.
Как сделать фундамент под каркасный дом своими руками
Деревянный каркасный дом с мансардой без подвала, утепленный минеральной ватой, — довольно легкое сооружение. При таком весе конструкции можно применить морозоустойчивый фундамент мелкого заложения.
Перед тем как сделать фундамент под каркасный дом, на площадке, предназначенной под застройку, снимают растительный слой грунта и размечают положение продольных и поперечных стен. Затем отрывают траншеи для устройства противопучинной подушки и вводов водопровода и канализации.
Подушку под заливку фундамента для каркасного дома своими руками засыпают песком с тщательным уплотнением. Последний слой толщиной около 20 см засыпают смесью гравия с песком в соотношении 3:2.
После укладки труб инженерных коммуникаций их засыпают песком слоями толщиной 10—15 см с тщательным трамбованием. При необходимости укладывают дренажные трубы в слой гравия за внешним контуром фундамента с уклоном в сторону водоотвода. После этого можно приступать к установке опалубки для заливки фундамента.
Сечение лент фундамента и сортамент арматуры для строительства каркасного дома с мансардой рассчитывают в соответствии с весом будущей постройки и конфигурацией ее основания. Затем устанавливают арматуру, заливают бетон и через несколько дней, когда он наберет необходимую прочность, снимают щиты опалубки. Наружные поверхности и верхний обрез фундамента защищают гидроизоляцией и засыпают пазухи песком или каким-либо другим непучинистым грунтом.
Особенности надстройки мансарды
Надстраивать ли мансарду, решают, исходя из двух факторов:

- наличие технической возможности;
- целесообразность.
Основной вопрос – выдержат ли стены пожившего дома вес предполагаемой конструкции, даже если речь о самом облегченном, каркасном варианте. Поэтому первым делом следует составить план и сделать приблизительный расчет несущей способности стен и фундамента. Тут будет играть роль не столько тип стенового материала, сколько состояние стен. Иные срубы с полувековой историей значительно крепче относительно «моложавых» каменных построек.

Целесообразность такой глобальной реконструкции зависит от габаритов дома – если он чересчур компактный, то и жилая мансарда с учетом конструктивных особенностей получится крохотная. Если ширина дома меньше пяти метров, то такое сооружение, как мансардный этаж, надстраивать бессмысленно. Однако при всех ограничениях иногда маленькая интересная мансардная комната лучше, чем ничего, главное, чтобы стены выдержали и кошелек потянул.
Но даже если стены крепкие, увеличившуюся многократно нагрузку необходимо равномерно распределить, для чего по периметру каменного основания заливается армопояс.

При заливке армопояса в него сразу закладывается крепеж под мауэрлат (шпильки), который будет прочно фиксировать всю конструкцию на месте.
Без достаточного утепления невозможно построить мансарду даже для сезонного пребывания, так как без изоляции летом в чердачном помещении будет парная. Мансарда в жилом доме утепляется по всему периметру, чтобы образовался замкнутый контур – перекрытия, наклонные и вертикальные стены, фронтоны. Сегодня изоляция может быть какой угодно – от типичных плит, рулонов и матов до задувки, засыпки и напыления. Однако независимо от разновидности, ее толщина должно быть достаточной для обеспечения нормативного коэффициента теплосопротивления стены (табличные данные по регионам).

Если речь о минеральных плитных теплоизоляторах, используемых чаще всего, то для большинства регионов достаточно 150-200 мм. Эффективнее уложить эту толщину в несколько слоев с перехлестом швов, чтобы минимизировать утечки тепла. Так как мансарда относится к отапливаемым помещениям, большое значение уделяется устройству пароизоляционного барьера, чтобы теплый воздух не провоцировал выпадение конденсата в утеплителе или кровельном пироге.
Для свободного вывода влаги, которая, несмотря на все барьеры, будет скапливаться между утеплителем и кровельным покрытием мансардного этажа, необходим вентиляционный зазор не менее 5 см, а в идеале – и коньковый аэратор.

Самый простой вариант – вертикальное окно, устанавливаемое во фронтонах, но для полноценного освещения необходимы и специальные, мансардные окна, монтируемые непосредственно в кровлю.
Количество окон рассчитывается, исходя из допустимого минимума – на каждые 10 м² площади 1 м² стекла.

Если в планах – мансардные окна, то еще при сборке стропильной системы стоит рассчитать шаг стропил под их габариты с учетом шва.
В большинстве случаев надстраивают каркасные и брусовые мансарды, так как они и легче, и дешевле, и строительный процесс быстрее. Учитывая, что дом жилой, чем быстрее он будет снова под кровлей после демонтажа старой, тем лучше. Если же выбирают более капитальный, каменный вариант, то отдают предпочтение облегченным материалам (газоблок, пеноблок, керамзитобетон).
Перекрытия, полы
Конструктивно перекрытия состоят из несущих балок, чернового и чистового пола, подвесного или подшитого потолка.
Главные балки опирают на горизонтальную обвязку. Их расчет проводят, исходя из нагрузки. Доску 50х150 или 50х 200 мм укладывают с шагом 35-80 см в зависимости от ширины перекрываемого пролета и материала обшивки. Чаще всего применяют интервал 40-60 см, что согласуется с размерами листов облицовки и утеплителя. В зданиях до 2 этажей в качестве несущих ригелей можно использовать стальные профили.
Жесткость перекрытий достигается установкой горизонтальных распорок, подшивкой потолка листами, устройством чернового пола из плитных материалов.
Определение типа грунта
Каждый дом стоит на фундаменте, который опирается на грунт. На большой части территории нашей страны – глинистые почвы, обладающие пучинистостью – свойством увеличиваться в объеме при зимнем замерзании.
Пучинистость характерна для глинистых, суглинистых и супесчаных грунтов, а также гравелистых песков и крупнообломочных пород с содержанием глины от 10 %.
В большой степени морозное пучение зависит от влажности почвы. При высоком УГВ вода по мельчайшим капиллярам поднимается к поверхности земли, где зимой превращается в лед.
Поверхностные талые и дождевые воды также насыщают грунта влагой. Они способны при замерзании выдавить из земли фундамент или его часть. В конструкциях появляются трещины и деформации, что приводит к преждевременному разрушению строения.
Каркасный дом намного легче кирпичного или бетонного. Он не требует возведения мощных фундаментов, опирающихся на глубокие плотные слои земли ниже уровня промерзания. Но противостоять силам пучения, создавая встречное давление большой массой, он не может.
Чтобы построить каркасный легкий дом 6 на 6 своими руками и избежать его преждевременного разрушения, на этапе проектирования, возведения и эксплуатации применяют методы борьбы с пучением:
Конструкция фундамента должна обеспечивать подвижку строения вместе с сезонными колебаниями грунта или не реагировать на них. В первом случае это плита, во втором – винтовые сваи;
Не допускать переувлажнения подстилающих слоев почвы. Это достигается дренажом, устроенным под подошвой фундамента, отмосткой вокруг строения, отведением дождевых вод и стоков с помощью ливневки;
Утепление отмостки, цоколя и фундамента поможет избежать замерзания воды в прилегающих слоях земли;

Пошаговые советы по закладке фундамента
Для каркасных домов пошаговая инструкция предусматривают один из следующих типов фундамента:
- ленточно-столбчатый;
- ленточный;
- свайный;
- монолитный.
Первый вариант фундамента каркасного дома 6х6 связан с вбиванием свай и применяется в местности, где летом появляются грунтовые воды, а зимой почва сильно промерзает. Устанавливайте этот тип фундамента в 3 этапа.
- Сделайте траншеи по всему периметру будущего дома.
- Поставьте железобетонные столбы с определённым интервалом, забивая их на всю глубину промерзания.
- Залейте траншеи цементом.
Если вы предпочли второй вариант, сделайте траншеи и укрепите их железными прутьями. Для третьего вида фундамента — монолитного — нужно установить цементную платформу.
Постройка каркасного дома своими руками. Поэтапная подробная схема
Самые главные правила строительства – это ни в чем не ошибаться и ничего не упускать. Если взглянуть на процесс возведения здания в общем, то выделяются 4 основных этапа инструкции по строительству:
- Проектирование. Сюда входят расположение и дизайн будущего дома, выбор материалов и их свойств, размещение комнат и инженерных коммуникаций. Рекомендуется сначала составить графическую схему целого здания, а в процессе строительства – делать рабочие чертежи отдельных этапов и частей.
- Грунтовые работы. На данном этапе размечают место для фундамента (например, «рисуют» периметр натянутой леской или веревкой), копают котлован (если он нужен для выбранного типа фундамента), подготавливают землю. Требуется выкорчевать растения, засыпать и утрамбовать неровности.
- Строительные работы. Сюда входит всё, начиная от заливки фундамента и заканчивая размещением коммуникационных систем.
- Отделка. Как внешние, так и внутренние отделочные работы оставляют напоследок. На этом завершающем этапе пошагового строительства появляется возможность экспериментировать. Выбор покрытий, дизайнерские решения – всё зависит от личных предпочтений.
Тщательно изучив порядок строительства каркасного дома, самостоятельно возвести здание будет не так уж трудно.
Планирование проекта и этапы возведения каркасного дома
Преимуществ строительного процесса дома на каркасной основе много:
- небольшой вес элементов и узлов из дерева, что позволяет обойтись без аренды спецтехники;
- недорогой строительный процесс;
- высокая скорость возведения деревянного дома;
- малый вес дома позволяет построить его на фундаменте облегченного типа, что удешевляет проект и облегчает строительство жилья.
Выбирая тип фундамента, принимают во внимание полный вес дома с мебелью и коммуникациями и состав почвы. На глинистых грунтах рекомендуется обустраивать монолитное основание
При песчаной почве подойдет мелкозаглубленный ленточный или столбчатый фундамент
При этом любой тип фундамента необходимо гидроизолировать и обеспечить хороший дренаж по периметру дома, чтобы подпочвенные воды не проникали в деревянные конструкции дома
При песчаной почве подойдет мелкозаглубленный ленточный или столбчатый фундамент. При этом любой тип фундамента необходимо гидроизолировать и обеспечить хороший дренаж по периметру дома, чтобы подпочвенные воды не проникали в деревянные конструкции дома.
Фундамент каркасного дома
Строится каркасный дом на основе двух распространенных технологий:
- Строительство из заводских блоков;
- Самостоятельное строительство из закупленных стройматериалов.
Проект, эскиз или план каркасного здания, смета и учет непредвиденных расходов – обязательное условие успешного строительства. Проектирование учитывает параметры дома и фундамента, почвы и участка, кровли и перекрытий, свойства стройматериалов и требования к ним по влагозащищенности, теплоотдаче и шумоподавлению.
Застройщики часто выбирают типовой проект каркасного дома, который изначально предусматривает строительные, технологические и архитектурные нюансы.
При разработке индивидуального проекта лучше обратиться к профессионалам – слишком много можно допустить ошибок и оставить неучтенными «мелочи», влияющие на проживание в доме каркасного типа, на его качество и долговечность конструкции.
Очевидные преимущества каркасного дома таковы:
- Низкая себестоимость строительства.
- Ускоренный процесс возведения каркаса и его обшивки;
- Экономичность строительства, не влияющая на качество и долговечность здания;
- Деревянный каркас — это прокладывание коммуникаций между обшивкой, а значит – экономия внутреннего пространства;
- Облегченный и недорогой фундамент;
- Всесезонность строительства;
- Возведение каркасного дома без использования спецтехники и дорогостоящего оборудования;
- Высокая сейсмоустойчивость за счет упругости древесины;
- Длительный срок службы – больше 80 лет.
Достоинства и недостатки каркасной бани
Каждый строительный материал имеет свои преимущества и недостатки, которые надо учитывать. В последнее время начали пользоваться популярностью каркасные бани, поэтому есть смысл узнать, чем они лучше конструкций из других материалов.
Преимущества подобной бани:
Нет необходимости в изготовлении капитального фундамента. Конструкция имеет небольшой вес, поэтому её можно установить на облегчённое основание.
- Невысокая стоимость. Им отдают предпочтение те, кто желает за маленькую цену получить качественную конструкцию.
- Возможность изготовления в кратчайшие сроки. Вместе с отделочными и утеплительными работами изготовление займёт 1–2 недели. Конструкция собирается в 3 раза быстрее, чем каменная или брусовая.
- Сохранение тепла. По данным показателям каркасная постройка не уступает бревенчатому или брусовому строению.
- Экологичность. Эта баня изготавливается из натуральных материалов, которые не способны нанести вред человеческому здоровью.
- Возможность изготовления в любое время года. Конструкцию можно изготовить даже при температуре -15°С.
- Комфортный микроклимат. Стены могут дышать, так как материал будет впитывать и возвращать воздух.
- Сейсмическая устойчивость. Благодаря данному качеству баню можно изготавливать даже в сейсмоопасном регионе. Она выдерживает колебание до 8 баллов.
Однако важно знать и о том, что каркасная баня имеет значительные недостатки:
- Затраты на утеплительные и отделочные материалы. Сама по себе каркасная постройка обходится дешевле, чем каменная или брусовая парная, однако стоимость возрастает в несколько раз при отделочных и утеплительных работах. Необходимы панели для декорирования и выполнение оштукатуривания.
- Усадка. Процесс занимает минимум 2 года, при этом постройка может просесть на 10 см. Это может повлечь за собой деформацию отделочного слоя. Чтобы уменьшить последствия усадки, в процессе строительства рекомендуется использовать материалы камерной просушки.
- Сложность выбора качественного материала для утепления. Если использовать бюджетную минеральную вату, то баня не сможет полноценно справиться со своими функциями. Использование бюджетного пенополистирола также не допускается, так как материал легко возгорается.





































